+ Lisa oma töö      

Otsid ehitajat "Plaatimistööd" valdkonnast?

Parima pakkumise ja teostaja leidmiseks lisa oma töö.

Ridaelamu vannitoa plaatimine

ID 72809

560 vaatamist

Prindi

  • check Pakkumiste tegemine
    kuni 12.06.2022
  • check Võitja valik kuni
    19.06.2022
  • 3 Töö teostamine
    ja hinnang
Hanke lõpp: P, 12. juuni, 2022
Maakond: Harjumaa
Muu asula: Peetri
Tööde algus: E, 08. august, 2022 (Soovituslik)
Tööde lõpp: N, 01. september, 2022
Ehitusmaterjalid: Töö tegija poolt
Soovin pakkumisi: Summa kogu projektile

Töö sisu

Soovin pakkumist plaatimistöödele.
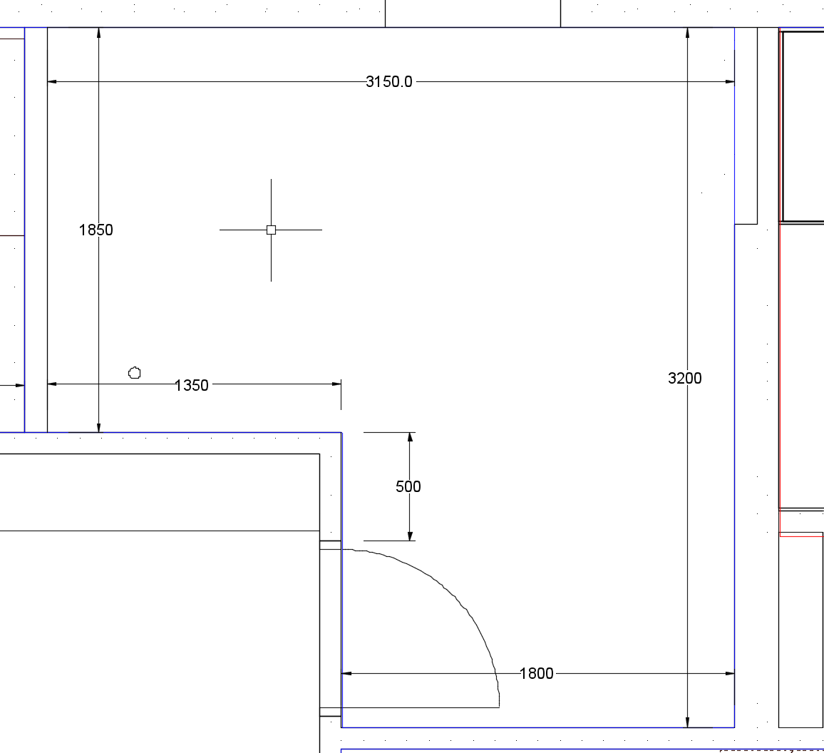
Põrand 20x20 mustriga keraamiline plaat 8.5 m2 (tellitud 10.8)
Sein 20x10 Bisello 30m2 (tellitud 30+5)

Pinnad ehitaja poolt ette valmistatud. Olemas renntrapp, hüdroisolatsioon.
Avad: dušš (2 ava); valamu (3 ava); WC (nupp + 4 ava); pistikupesad jm vooluotsad (5 ava)

Lisahinnana võiks välja tuua WEDI nišši paigalduse koos materjalidega. Siis otsustan kas võtta või jätta :)

Pildid, video ja failid

Hanke korraldaja: eraisik ID57085

Pakkumised

Pakkumisi kokku: 1

Ettevõte Summa Käibemaks Lisatud Vestlus
Kasutaja ikoon ID63801
Pakkuja profiil Väike nool paremale
4 200€ Sisaldab KM Sisaldab KM 07.06.2022 Vestlus (0)

Pakkumise kirjeldus:

Tere

Hind sisaldab pakkumises kirjeldatud. Kui on huvi siis saadan teile pildid keerukamatest töödest kus plaadid on lõigatud 45 kraadi alla välisnurkadesse.
Töödega saab veel alustada koheselt.
Palun mitte võitjaks kuulutada ennem objekti nägemata.

Parimat

Küsimused hanke korraldajale

Küsimus: private ID31957   29.05.2022 10:56
Tere,

- Kas vuukimine epoga või tavaseguga?
- välisservade lahendus? Kas eerung või liist?
- Kas wedi niššist võimalik pilt/lahendus saata?

Lugupidamisega

Teavita reeglite rikkumisest

Korraldaja vastus: 30.05.2022 10:04

Tere!

Põrandal epovuuk, seinas tavaline
Välisnurk Al. Liistuga. Fassetiga bisello eerungis võib olla äge aga selleks on vaja palju osavust.

Lahendusest pilti saata ei ole aga tuleks paigaldada nii, et serv ühtiks plaadivuugiga. Plaatimist ei vaja! Läheb sisse valmis kivist nö karp.

Teavita reeglite rikkumisest

Küsimus: private ID31957   30.05.2022 11:45
Tere,

Nii liistuga kui eerungigs lahendades on môlematel variantidel omad kitsaskohad.
Liistu puhul on probleem seal, kui plaadifaasid. Plaadi tasapind on liistuga tasa ning faasikoht jààb mitu mm madalam.
Eerungi puhul kitsaskohaks selle nikerdamise hind! Vaeva peab palju nàgema.
Palju teil reaalselt plaaditavaid välianurkasid oleks?

Mis tooni seinavuuk tuleb? Kui tuleb samuti hele, soovitan kaaluda ka sinna epo paigaldust.

Lugupidamisega,
R

Teavita reeglite rikkumisest

Korraldaja vastus: 30.05.2022 11:59

Tere!
Joonise järgi on ainult üks välimine seinanurk + akna paled.
Variant on tellida juure ka 10x10 plaat millega alustada/lõpetada. Nii saaks välisnurgad paremad.

Seina- ja põrandavuuk helehall.

Teavita reeglite rikkumisest

Lisa küsimus

Lisa küsimus

Minu pakkumine

Reeglid

Pakkumise kirjelduse väli on mõeldud pakkumise detailsemaks lahti kirjutamiseks. Pikema teksti mugavaks sisestamiseks klikkige kasti paremal ülaservas oleval ikoonil.
Pakkumist tehes on keelatud postitada enda kontaktandmeid (nimi, telefon, aadress jne). Me jälgime ja analüüsime pakkumisi, et vältida pettuseid ja reeglite rikkumisi.
Rikkumise puhul kasutajakonto blokeeritakse.

 

Teisi töid samas valdkonnas

Valdkonnas "Plaatimistööd" on 2 aktiivset tööd

Trepikoja plaatimine

Asukoht: Tartumaa, Ülenurme
Aega jäänud: 4p 16h
Tehtud pakkumisi: 2

Pesuruumi plaatimine 12.6 m2

Asukoht: Tartumaa, Teedla
Aega jäänud: 1p 16h
Tehtud pakkumisi: 0

Vanemad teated:

Vaata kõiki

Sellel veebilehel kasutatakse küpsiseid. Kasutamist jätkates nõustute küpsiste kasutamisega.

Sulge
 
Minu pakkumine

Reeglid

Pakkumise kirjelduse väli on mõeldud pakkumise detailsemaks lahti kirjutamiseks. Pikema teksti mugavaks sisestamiseks klikkige kasti paremal ülaservas oleval ikoonil.
Pakkumist tehes on keelatud postitada enda kontaktandmeid (nimi, telefon, aadress jne). Me jälgime ja analüüsime pakkumisi, et vältida pettuseid ja reeglite rikkumisi.
Rikkumise puhul kasutajakonto blokeeritakse.