+ Lisa oma töö      

Otsid ehitajat "Siseviimistlustööd" valdkonnast?

Parima pakkumise ja teostaja leidmiseks lisa oma töö.

Seinte pahteldamine ja lihvimine

ID 72695

416 vaatamist

Prindi

  • check Pakkumiste tegemine
    kuni 01.06.2022
  • check Võitja valik kuni
    08.06.2022
  • 3 Töö teostamine
    ja hinnang
Hanke lõpp: K, 1. juuni, 2022
Maakond: Harjumaa
Muu asula: Suuresta
Tööde algus: E, 06. juuni, 2022 (Soovituslik)
Tööde lõpp: E, 20. juuni, 2022 (Soovituslik)
Ehitusmaterjalid: Töö tellija poolt
Soovin pakkumisi: Summa kogu projektile

Töö sisu

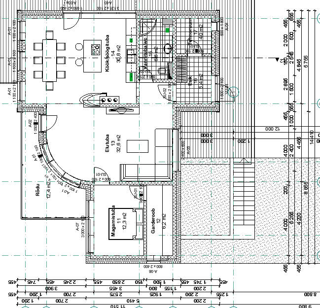
Krohvitud seinte ja betoonlae pahteldamine jäme ja peenpahtliga ning lihvimine enne värviga katmist. Tegemist on uuselemuga, 3-korruseline eramaja. Tööobjektiks on 1 korrus. Pahteldatava korruse põranda pind ca 100m2 ja lae kõrgus põrandast 2,7m.
Korraliku kvaliteedi korral võimalik lisatasu eest teha ka teised korrused,

Pildid, video ja failid

Hanke korraldaja: eraisik ID64839

Pakkumised

Pakkumisi kokku: 1

Ettevõte Summa Käibemaks Lisatud Vestlus
Kasutaja ikoon ID68724
Pakkuja profiil Väike nool paremale
4 000€ Ei ole KMKR Ei ole KMKR 26.05.2022 Vestlus (0)

Küsimused hanke korraldajale

Hanke korraldajale ei ole veel küsimusi esitatud.

Lisa küsimus

Lisa küsimus

Minu pakkumine

Reeglid

Pakkumise kirjelduse väli on mõeldud pakkumise detailsemaks lahti kirjutamiseks. Pikema teksti mugavaks sisestamiseks klikkige kasti paremal ülaservas oleval ikoonil.
Pakkumist tehes on keelatud postitada enda kontaktandmeid (nimi, telefon, aadress jne). Me jälgime ja analüüsime pakkumisi, et vältida pettuseid ja reeglite rikkumisi.
Rikkumise puhul kasutajakonto blokeeritakse.

 

Teisi töid samas valdkonnas

Valdkonnas "Siseviimistlustööd" on 20 aktiivset tööd

Seinte pahteldus ja värvimine

Asukoht: Harjumaa, Türisalu
Aega jäänud: 2p 22h
Tehtud pakkumisi: 7

Korteri seinte ja lagede värvimine, osaline pahteldamine

Asukoht: Harjumaa, Tallinn
Aega jäänud: 22h 59 min
Tehtud pakkumisi: 4

Vanemad teated:

Vaata kõiki

Sellel veebilehel kasutatakse küpsiseid. Kasutamist jätkates nõustute küpsiste kasutamisega.

Sulge
 
Minu pakkumine

Reeglid

Pakkumise kirjelduse väli on mõeldud pakkumise detailsemaks lahti kirjutamiseks. Pikema teksti mugavaks sisestamiseks klikkige kasti paremal ülaservas oleval ikoonil.
Pakkumist tehes on keelatud postitada enda kontaktandmeid (nimi, telefon, aadress jne). Me jälgime ja analüüsime pakkumisi, et vältida pettuseid ja reeglite rikkumisi.
Rikkumise puhul kasutajakonto blokeeritakse.