+ Lisa oma töö      

Otsid ehitajat "Ventilatsioonitööd" valdkonnast?

Parima pakkumise ja teostaja leidmiseks lisa oma töö.

Eramaja ventilatsioonisüsteemi ehitamine

ID 72517

607 vaatamist

Prindi

  • check Pakkumiste tegemine
    kuni 04.06.2022
  • check Võitja valik kuni
    11.06.2022
  • 3 Töö teostamine
    ja hinnang
Hanke lõpp: L, 4. juuni, 2022
Maakond: Harjumaa
Linn: Tallinn
Tööde algus: K, 01. juuni, 2022 (Soovituslik)
Tööde lõpp: E, 15. august, 2022 (Soovituslik)
Ehitusmaterjalid: Töö tellija poolt
Soovin pakkumisi: Summa kogu projektile

Töö sisu

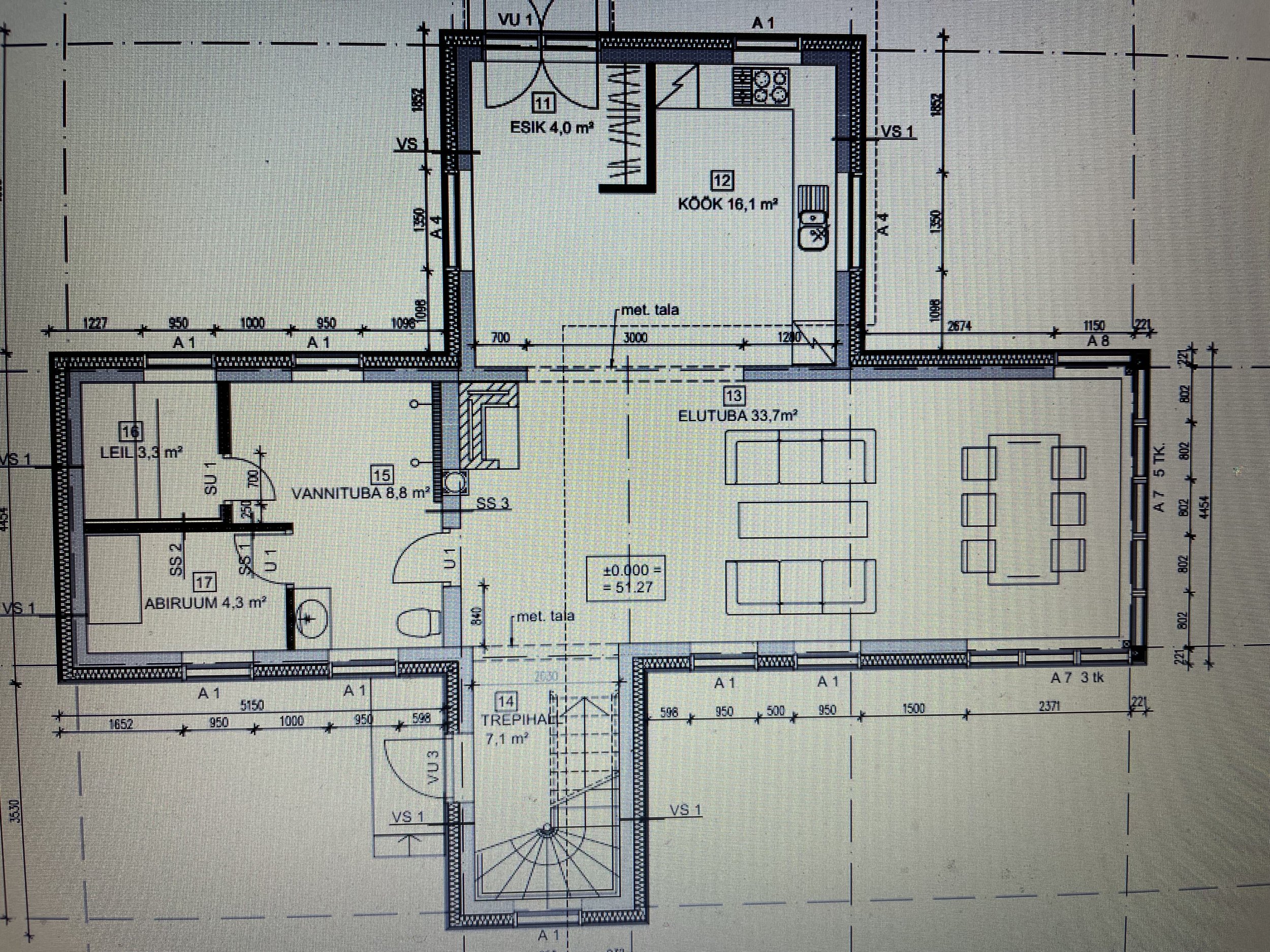
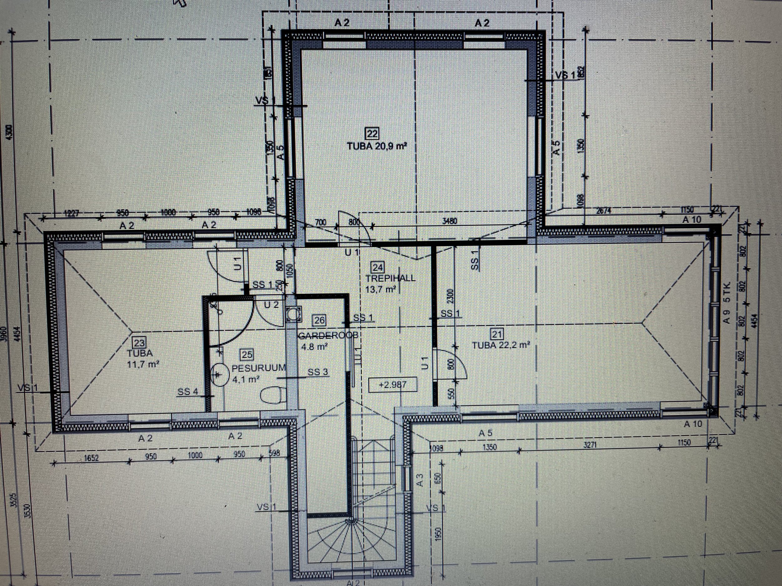
Ehitatavasse eramajja Tallinnas oleks vaja ehitada sundventilatsioonisüsteem koos seadmega Komfovent või analoog. Hoonet kütab maasoojuspump, vesipõrandaküte mõlemal korrusel. Esimese korruse tehnoruumis ja vannitoas saab torud vedada ripplae alt suurde tuppa läbi seina, teisele korrusele lähevad torud püstikust ülesse külmale pööningule ja hargnevad tubadesse. Projekti pole.

Pildid, video ja failid

Hanke korraldaja: eraisik ID38915

Pakkumised

Pakkumisi kokku: 3

Ettevõte Summa Käibemaks Lisatud Vestlus
Kasutaja ikoon ID48517
Pakkuja profiil Väike nool paremale
8 989€ KM lisandub KM lisandub 22.05.2022 Vestlus (0)

Pakkumise kirjeldus:

Hinnapakumine sisaldab kõiki materjale ja ventilatsiooniseadet

Kasutaja ikoon ID67121
Pakkuja profiil Väike nool paremale
6 500€ KM lisandub KM lisandub 24.05.2022 Vestlus (0)

Pakkumise kirjeldus:

Pakkumine sisaldab:

1.Ventilatsiooni süsteemi täislahenduse väljaehitamist.
2.Ventilatsiooni seade Vallox 110 MV
3.Mõõdistuspassi
4.Tööst teostusjoonised/projekt DWG/PDF

Kasutaja ikoon ID51879
Pakkuja profiil Väike nool paremale
8 000€ KM lisandub KM lisandub 24.05.2022 Vestlus (0)

Pakkumise kirjeldus:

Pakumine sisaldab :

Ventilatsioonijoonis,ventilatsioonimaterjalid,plafoonid,restid,isolatsioonid vastavalt joonisele. abimaterjalid,kinnitusvahendid,ventilatsiooniseade komfovent +puutetundlik paneel.
Ventilatsioonijoonis mille põhjal saate kanda ventilatsioonisüsteemi registrisse energiamärgise tarbeks.

Meil on 18 aastat kogemust ventilatsiooni e ... Rohkem

Küsimused hanke korraldajale

Hanke korraldajale ei ole veel küsimusi esitatud.

Lisa küsimus

Lisa küsimus

Minu pakkumine

Reeglid

Pakkumise kirjelduse väli on mõeldud pakkumise detailsemaks lahti kirjutamiseks. Pikema teksti mugavaks sisestamiseks klikkige kasti paremal ülaservas oleval ikoonil.
Pakkumist tehes on keelatud postitada enda kontaktandmeid (nimi, telefon, aadress jne). Me jälgime ja analüüsime pakkumisi, et vältida pettuseid ja reeglite rikkumisi.
Rikkumise puhul kasutajakonto blokeeritakse.

 

Teisi töid samas valdkonnas

Valdkonnas "Ventilatsioonitööd" on 3 aktiivset tööd

Eramaja ventilatsioonitööd

Asukoht: Tartumaa, Soinaste
Aega jäänud: 6p 1h
Tehtud pakkumisi: 1

no-img Pilt puudub

Ventilatsiooni paigaldamine

Asukoht: Tartumaa, Tartu
Aega jäänud: 3p 1h
Tehtud pakkumisi: 0

Vanemad teated:

Vaata kõiki

Sellel veebilehel kasutatakse küpsiseid. Kasutamist jätkates nõustute küpsiste kasutamisega.

Sulge
 
Minu pakkumine

Reeglid

Pakkumise kirjelduse väli on mõeldud pakkumise detailsemaks lahti kirjutamiseks. Pikema teksti mugavaks sisestamiseks klikkige kasti paremal ülaservas oleval ikoonil.
Pakkumist tehes on keelatud postitada enda kontaktandmeid (nimi, telefon, aadress jne). Me jälgime ja analüüsime pakkumisi, et vältida pettuseid ja reeglite rikkumisi.
Rikkumise puhul kasutajakonto blokeeritakse.