+ Lisa oma töö      

Otsid ehitajat "Siseviimistlustööd" valdkonnast?

Parima pakkumise ja teostaja leidmiseks lisa oma töö.

Ehitus ja viimistlus

ID 72343

465 vaatamist

Prindi

  • check Pakkumiste tegemine
    kuni 20.05.2022
  • check Võitja valik kuni
    27.05.2022
  • 3 Töö teostamine
    ja hinnang
Hanke lõpp: R, 20. mai, 2022
Maakond: Harjumaa
Linn: Tallinn
Tööde algus: K, 18. mai, 2022 (Soovituslik)
Tööde lõpp: L, 18. juuni, 2022 (Soovituslik)
Ehitusmaterjalid: Töö tegija poolt
Soovin pakkumisi: Summa kogu projektile

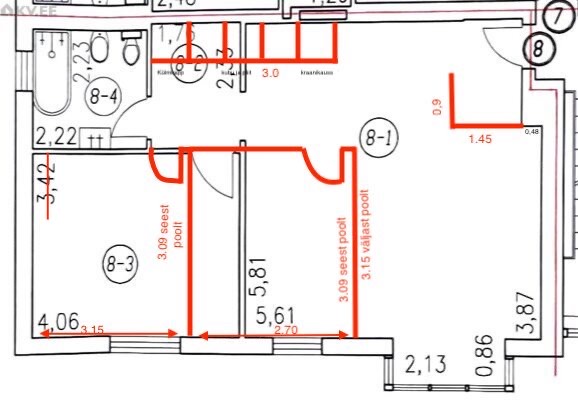
Töö sisu

Tarvis on ehitust ja viimistlust tegevat inimest.
• seinad lammutada
• vana laminaadi eemaldus
• uue vaheseinad ehitada
• elektritööd.(elektrijuhtmestik uutesse seinadesse)
•torutööd (köögi asukoha muutmiseks).
• 3 ukse paigaldus.
• olemasolevatelt kipsseintelt tapeet maha ning kogu korter värvi alla.
(Joonisel punasega uued mõõdud, millega ehitaja pakkumise tegemisel arvestada saab).

Pildid, video ja failid

Hanke korraldaja: eraisik ID69155

Pakkumised

Pakkumisi kokku: 2

Ettevõte Summa Käibemaks Lisatud Vestlus
Kasutaja ikoon ID49082
Pakkuja profiil Väike nool paremale
18€ KM lisandub KM lisandub 18.05.2022 Vestlus (2)

Pakkumise kirjeldus:

Saame teha need tööd tunnihinnaga 18€/h +km

Kasutaja ikoon ID58038
Pakkuja profiil Väike nool paremale
14 280€ Sisaldab KM Sisaldab KM 20.05.2022 Vestlus (1)

Pakkumise kirjeldus:

Tere.
Kõik töötavad materjaliga.
Lgp.

Küsimused hanke korraldajale

Küsimus: private ID58038   20.05.2022 10:26
Tere.
Jah,täpselt.
Lgp.

Teavita reeglite rikkumisest

Korraldaja vastus:
Hanke korraldaja ei ole küsimusele veel vastanud

Lisa küsimus

Lisa küsimus

Minu pakkumine

Reeglid

Pakkumise kirjelduse väli on mõeldud pakkumise detailsemaks lahti kirjutamiseks. Pikema teksti mugavaks sisestamiseks klikkige kasti paremal ülaservas oleval ikoonil.
Pakkumist tehes on keelatud postitada enda kontaktandmeid (nimi, telefon, aadress jne). Me jälgime ja analüüsime pakkumisi, et vältida pettuseid ja reeglite rikkumisi.
Rikkumise puhul kasutajakonto blokeeritakse.

 

Teisi töid samas valdkonnas

Valdkonnas "Siseviimistlustööd" on 24 aktiivset tööd

Korteri remont

Asukoht: Harjumaa, Muraste
Aega jäänud: 2p 16h
Tehtud pakkumisi: 15

no-img Pilt puudub

Laminaatparketi paigaldus

Asukoht: Harjumaa, Tallinn
Aega jäänud: 4p 16h
Tehtud pakkumisi: 7

Vanemad teated:

Vaata kõiki

Sellel veebilehel kasutatakse küpsiseid. Kasutamist jätkates nõustute küpsiste kasutamisega.

Sulge
 
Minu pakkumine

Reeglid

Pakkumise kirjelduse väli on mõeldud pakkumise detailsemaks lahti kirjutamiseks. Pikema teksti mugavaks sisestamiseks klikkige kasti paremal ülaservas oleval ikoonil.
Pakkumist tehes on keelatud postitada enda kontaktandmeid (nimi, telefon, aadress jne). Me jälgime ja analüüsime pakkumisi, et vältida pettuseid ja reeglite rikkumisi.
Rikkumise puhul kasutajakonto blokeeritakse.