+ Lisa oma töö      

Otsid ehitajat "Vundamenditööd" valdkonnast?

Parima pakkumise ja teostaja leidmiseks lisa oma töö.

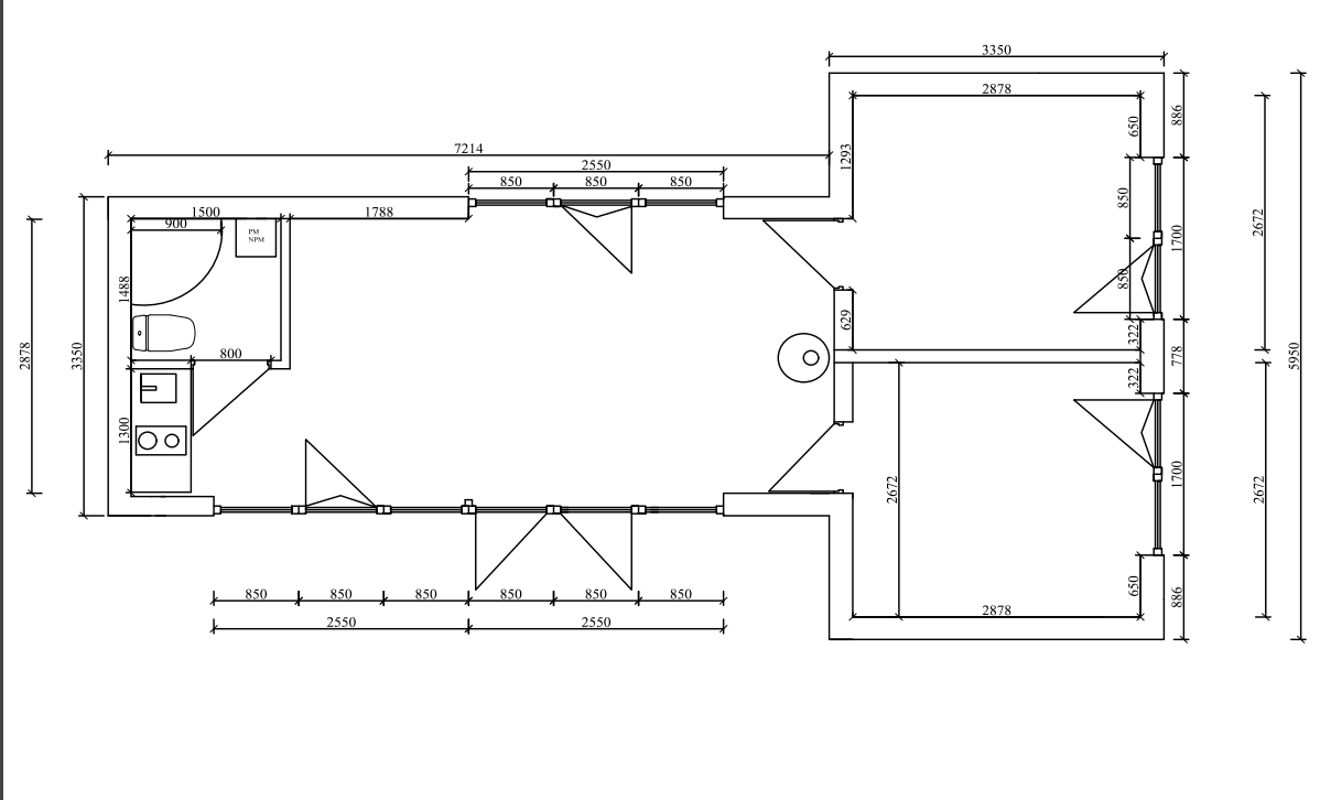
Postvundament 45m2 väikemajale

ID 72216

366 vaatamist

Prindi

  • check Pakkumiste tegemine
    kuni 16.05.2022
  • check Võitja valik kuni
    23.05.2022
  • 3 Töö teostamine
    ja hinnang
Hanke lõpp: E, 16. mai, 2022
Maakond: Valgamaa
Muu asula: Purtsi
Tööde algus: E, 25. juuli, 2022 (Soovituslik)
Tööde lõpp: P, 31. juuli, 2022 (Soovituslik)
Ehitusmaterjalid: Töö tegija poolt
Soovin pakkumisi: Summa kogu projektile

Töö sisu

Tellime postvundamendi 45m2 maja tarbeks. Maja plaan on lisatud manusesse.

Pildid, video ja failid

Hanke korraldaja: eraisik ID55668

Pakkumised

Pakkumisi kokku: 0

Küsimused hanke korraldajale

Küsimus: private ID69079   14.05.2022 18:37
Tere
Pinnas (liivane,savi,endine jõepõhi,tõstetud pinnas),ehitusprojekti olemasolu?
Parimatega

Teavita reeglite rikkumisest

Korraldaja vastus: 14.05.2022 20:55

Tere! Ehitusprojekti saame lähiajal. Tellime Cubehouse-ist maja ja saame selle sealt. Pinnas on liivane ja kruusane, jõgi asub alale lähedal.

Teavita reeglite rikkumisest

Lisa küsimus

Lisa küsimus

Minu pakkumine

Reeglid

Pakkumise kirjelduse väli on mõeldud pakkumise detailsemaks lahti kirjutamiseks. Pikema teksti mugavaks sisestamiseks klikkige kasti paremal ülaservas oleval ikoonil.
Pakkumist tehes on keelatud postitada enda kontaktandmeid (nimi, telefon, aadress jne). Me jälgime ja analüüsime pakkumisi, et vältida pettuseid ja reeglite rikkumisi.
Rikkumise puhul kasutajakonto blokeeritakse.

 

Vanemad teated:

Vaata kõiki

Sellel veebilehel kasutatakse küpsiseid. Kasutamist jätkates nõustute küpsiste kasutamisega.

Sulge
 
Minu pakkumine

Reeglid

Pakkumise kirjelduse väli on mõeldud pakkumise detailsemaks lahti kirjutamiseks. Pikema teksti mugavaks sisestamiseks klikkige kasti paremal ülaservas oleval ikoonil.
Pakkumist tehes on keelatud postitada enda kontaktandmeid (nimi, telefon, aadress jne). Me jälgime ja analüüsime pakkumisi, et vältida pettuseid ja reeglite rikkumisi.
Rikkumise puhul kasutajakonto blokeeritakse.