+ Lisa oma töö      

Otsid ehitajat "Küttesüsteemid" valdkonnast?

Parima pakkumise ja teostaja leidmiseks lisa oma töö.

Betoonpõranda freesimine põranda kütte paigaldamiseks

ID 72204

744 vaatamist

Prindi

  • check Pakkumiste tegemine
    kuni 12.06.2022
  • check Võitja valik kuni
    19.06.2022
  • 3 Töö teostamine
    ja hinnang
Hanke lõpp: P, 12. juuni, 2022
Maakond: Viljandimaa
Muu asula: Viiratsi
Tööde algus: E, 11. juuli, 2022 (Soovituslik)
Tööde lõpp: P, 24. juuli, 2022 (Soovituslik)
Ehitusmaterjalid: Töö tegija poolt
Soovin pakkumisi: Summa kogu projektile

Töö sisu

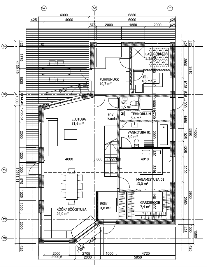
Olemasolevasse betoonpõrandasse tuleks sisse freesida sooned põrandakütte torude jaoks. Torud tuleks vedada tehnoruumist, pärast tuleks tasandusseguga sooned kinni valada. Märkida tuleks põrandakütte kontuur uutesse kohtadesse. Kokku on põrandapinda 30 m2. Põrandakatted (plaadid/parkett) võtan ise üles. 20mm toru kasutatud.

Tööd tuleks teha vannitoas, magamistoas, sauna eelruumis, sauna pesuruumis, wc-s. Töö tegemine võiks jääda millalgi juuli kuusse.

Asukoht Viljandis.

Pildid, video ja failid

Hanke korraldaja: eraisik ID60725

Pakkumised

Pakkumisi kokku: 0

Küsimused hanke korraldajale

Küsimus: private ID56040   26.05.2022 16:12
Freesimine on suur töö ja kallis.
Pakuks soodsama 12mm küttekontuuri ja tasandusvalu 20mm.

Teavita reeglite rikkumisest

Korraldaja vastus: 27.05.2022 08:01

Tere !

Palun pakkuda mõlemat varianti.

Teavita reeglite rikkumisest

Küsimus: private ID68473   11.06.2022 19:02
Kui põrandapinda tõsta 2 cm siis peaksite kõik uksed välja vahetama .

Teavita reeglite rikkumisest

Korraldaja vastus:
Hanke korraldaja ei ole küsimusele veel vastanud

Lisa küsimus

Lisa küsimus

Minu pakkumine

Reeglid

Pakkumise kirjelduse väli on mõeldud pakkumise detailsemaks lahti kirjutamiseks. Pikema teksti mugavaks sisestamiseks klikkige kasti paremal ülaservas oleval ikoonil.
Pakkumist tehes on keelatud postitada enda kontaktandmeid (nimi, telefon, aadress jne). Me jälgime ja analüüsime pakkumisi, et vältida pettuseid ja reeglite rikkumisi.
Rikkumise puhul kasutajakonto blokeeritakse.

 

Teisi töid samas valdkonnas

Valdkonnas "Küttesüsteemid" on 2 aktiivset tööd

no-img Pilt puudub

Küttesüsteemi püstakute vahetus ja radiaatoritega ühendamine

Asukoht: Järvamaa, Paide
Aega jäänud: 3p 9h
Tehtud pakkumisi: 2

Cooper&Hunter Consol Inverter 18

Asukoht: Harjumaa, Tallinn
Aega jäänud: 9h 49 min
Tehtud pakkumisi: 1

Vanemad teated:

Vaata kõiki

Sellel veebilehel kasutatakse küpsiseid. Kasutamist jätkates nõustute küpsiste kasutamisega.

Sulge
 
Minu pakkumine

Reeglid

Pakkumise kirjelduse väli on mõeldud pakkumise detailsemaks lahti kirjutamiseks. Pikema teksti mugavaks sisestamiseks klikkige kasti paremal ülaservas oleval ikoonil.
Pakkumist tehes on keelatud postitada enda kontaktandmeid (nimi, telefon, aadress jne). Me jälgime ja analüüsime pakkumisi, et vältida pettuseid ja reeglite rikkumisi.
Rikkumise puhul kasutajakonto blokeeritakse.