+ Lisa oma töö      

Otsid ehitajat "Siseviimistlustööd" valdkonnast?

Parima pakkumise ja teostaja leidmiseks lisa oma töö.

Siseseinte värvimine ja viimistlemine

ID 71935

721 vaatamist

Prindi

  • check Pakkumiste tegemine
    kuni 09.05.2022
  • check Võitja valik kuni
    16.05.2022
  • 3 Töö teostamine
    ja hinnang
Hanke lõpp: E, 9. mai, 2022
Maakond: Harjumaa
Muu asula: Harkujärve
Tööde algus: N, 12. mai, 2022 (Soovituslik)
Tööde lõpp: P, 22. mai, 2022 (Soovituslik)
Ehitusmaterjalid: Töö tegija poolt
Soovin pakkumisi: Summa kogu projektile

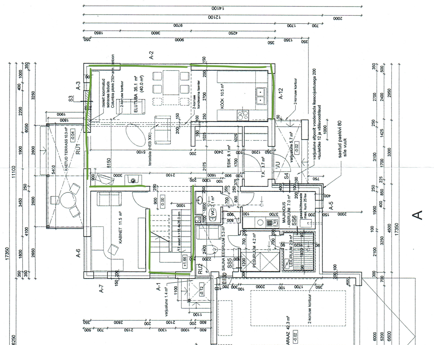
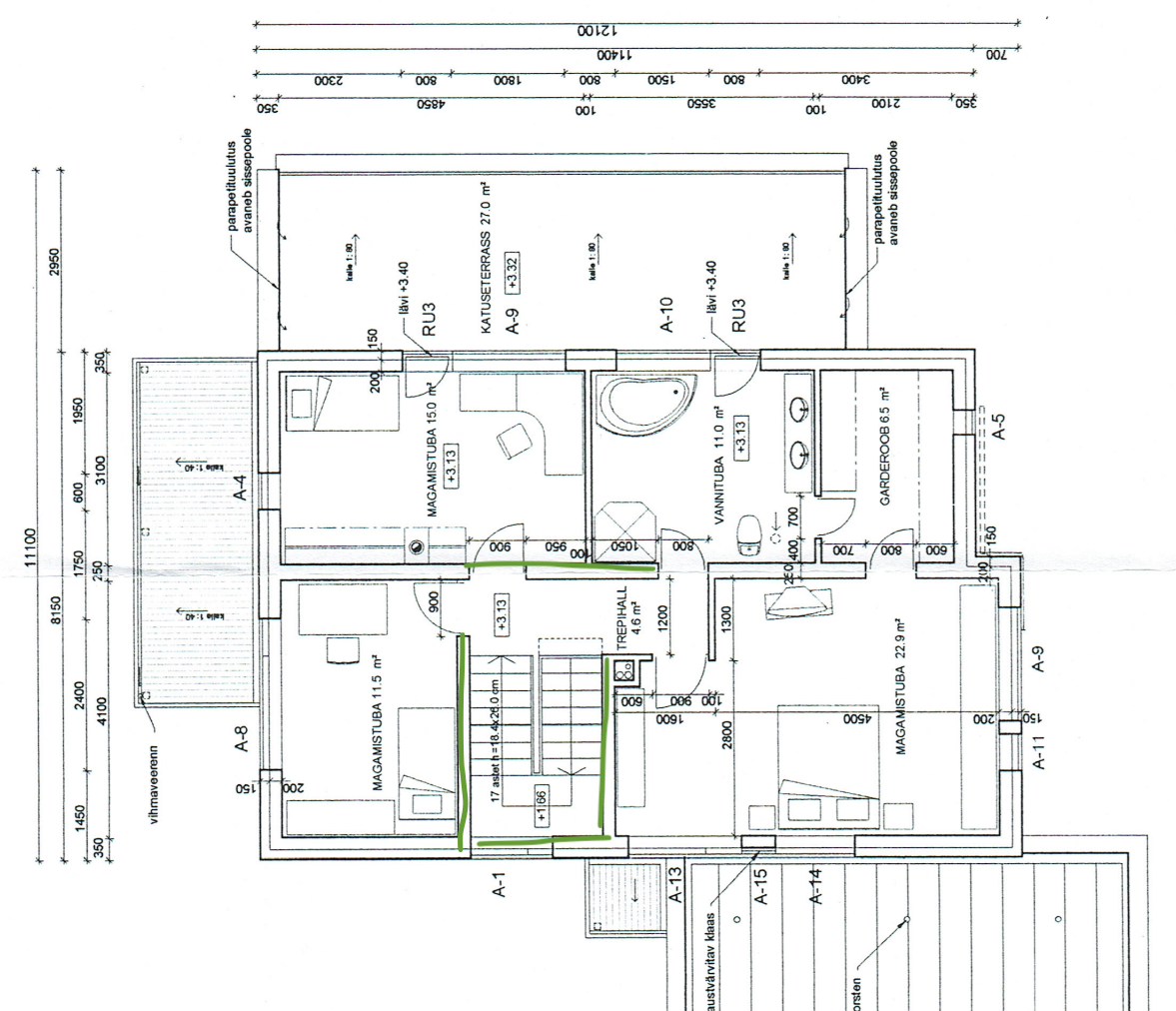
Töö sisu

Põhitöö seinte värvimine, vajadusel pahteldamine ja viimistlemine.

Töö suurus 130 m3 (aknad on sellesse suurusesse sisse arvestatud, reaalsuses on töömaht väiksem).

Manuses on 2 korruse plaan: rohelisega on märgitud alad, mis vajavad viimistlust/värvimist.

NB! Osadel piltidel on aknapaled viimistluseta, need tööd tehakse enne värvimist ära ja selle hanke sisusse see ei kuulu.

Soovin matti valget seinavärvi. Materjalid ehitaja poolt. Palun pakkumine teha nii tööle kui materjalidele.

Pildid, video ja failid

Hanke korraldaja: eraisik ID68193

Pakkumised

Pakkumisi kokku: 3

Ettevõte Summa Käibemaks Lisatud Vestlus
Kasutaja ikoon ID44278
Pakkuja profiil Väike nool paremale
2 600€ Ei ole KMKR Ei ole KMKR 09.05.2022 Vestlus (0)

Pakkumise kirjeldus:

Pakkumine Teie poolt soovitud tööle.
Hind sisaldab ka kõiki vajaminevaid materjale.

Parimate soovidega,
Kati

Kasutaja ikoon ID65467
Pakkuja profiil Väike nool paremale
1 476€ Sisaldab KM Sisaldab KM 09.05.2022 Vestlus (0)

Pakkumise kirjeldus:

Tere

Pakkumine sisaldab seinte osalist pahteldust ja värvimist kahes kihis.
Kogemustega töömees ja tulemus alati kvaliteetne!

Parimatega
Mihkel

Kasutaja ikoon ID56408
Pakkuja profiil Väike nool paremale
1 500€ Ei ole KMKR Ei ole KMKR 09.05.2022 Vestlus (0)

Pakkumise kirjeldus:

Tere,

Pakkumine Teie hankele

Lugupidamisega

Küsimused hanke korraldajale

Hanke korraldajale ei ole veel küsimusi esitatud.

Lisa küsimus

Lisa küsimus

Minu pakkumine

Reeglid

Pakkumise kirjelduse väli on mõeldud pakkumise detailsemaks lahti kirjutamiseks. Pikema teksti mugavaks sisestamiseks klikkige kasti paremal ülaservas oleval ikoonil.
Pakkumist tehes on keelatud postitada enda kontaktandmeid (nimi, telefon, aadress jne). Me jälgime ja analüüsime pakkumisi, et vältida pettuseid ja reeglite rikkumisi.
Rikkumise puhul kasutajakonto blokeeritakse.

 

Teisi töid samas valdkonnas

Valdkonnas "Siseviimistlustööd" on 20 aktiivset tööd

Seinte pahteldus ja värvimine

Asukoht: Harjumaa, Türisalu
Aega jäänud: 2p 22h
Tehtud pakkumisi: 7

Korteri seinte ja lagede värvimine, osaline pahteldamine

Asukoht: Harjumaa, Tallinn
Aega jäänud: 22h 59 min
Tehtud pakkumisi: 4

Vanemad teated:

Vaata kõiki

Sellel veebilehel kasutatakse küpsiseid. Kasutamist jätkates nõustute küpsiste kasutamisega.

Sulge
 
Minu pakkumine

Reeglid

Pakkumise kirjelduse väli on mõeldud pakkumise detailsemaks lahti kirjutamiseks. Pikema teksti mugavaks sisestamiseks klikkige kasti paremal ülaservas oleval ikoonil.
Pakkumist tehes on keelatud postitada enda kontaktandmeid (nimi, telefon, aadress jne). Me jälgime ja analüüsime pakkumisi, et vältida pettuseid ja reeglite rikkumisi.
Rikkumise puhul kasutajakonto blokeeritakse.