+ Lisa oma töö      

Otsid ehitajat "Siseviimistlustööd" valdkonnast?

Parima pakkumise ja teostaja leidmiseks lisa oma töö.

Seinaliistute paigaldus

ID 70950

696 vaatamist

Prindi

  • check Pakkumiste tegemine
    kuni 13.04.2022
  • check Võitja valik kuni
    20.04.2022
  • 3 Töö teostamine
    ja hinnang
Hanke lõpp: K, 13. aprill, 2022
Maakond: Harjumaa
Muu asula: Metsakasti
Tööde algus: T, 12. aprill, 2022 (Soovituslik)
Tööde lõpp: P, 17. aprill, 2022 (Soovituslik)
Ehitusmaterjalid: Töö tellija poolt
Soovin pakkumisi: Tüki- või ühikuhinda

Töö sisu

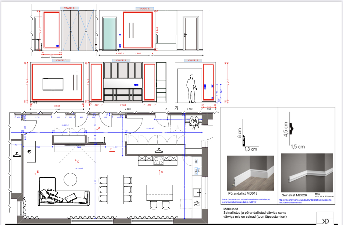
Seinaliistude paigaldamine.

Pildid, video ja failid

Hanke korraldaja: eraisik ID68390

Pakkumised

Pakkumisi kokku: 0

Küsimused hanke korraldajale

Küsimus: private ID68201   11.04.2022 12:09
Mis materjalist seinad on?
Kivi, kips või betoon?

Teavita reeglite rikkumisest

Korraldaja vastus:
Hanke korraldaja ei ole küsimusele veel vastanud

Lisa küsimus

Lisa küsimus

Minu pakkumine

Reeglid

Pakkumise kirjelduse väli on mõeldud pakkumise detailsemaks lahti kirjutamiseks. Pikema teksti mugavaks sisestamiseks klikkige kasti paremal ülaservas oleval ikoonil.
Pakkumist tehes on keelatud postitada enda kontaktandmeid (nimi, telefon, aadress jne). Me jälgime ja analüüsime pakkumisi, et vältida pettuseid ja reeglite rikkumisi.
Rikkumise puhul kasutajakonto blokeeritakse.

 

Teisi töid samas valdkonnas

Valdkonnas "Siseviimistlustööd" on 20 aktiivset tööd

Seinte pahteldus ja värvimine

Asukoht: Harjumaa, Türisalu
Aega jäänud: 2p 23h
Tehtud pakkumisi: 7

Korteri seinte ja lagede värvimine, osaline pahteldamine

Asukoht: Harjumaa, Tallinn
Aega jäänud: 23h 1 min
Tehtud pakkumisi: 4

Vanemad teated:

Vaata kõiki

Sellel veebilehel kasutatakse küpsiseid. Kasutamist jätkates nõustute küpsiste kasutamisega.

Sulge
 
Minu pakkumine

Reeglid

Pakkumise kirjelduse väli on mõeldud pakkumise detailsemaks lahti kirjutamiseks. Pikema teksti mugavaks sisestamiseks klikkige kasti paremal ülaservas oleval ikoonil.
Pakkumist tehes on keelatud postitada enda kontaktandmeid (nimi, telefon, aadress jne). Me jälgime ja analüüsime pakkumisi, et vältida pettuseid ja reeglite rikkumisi.
Rikkumise puhul kasutajakonto blokeeritakse.