+ Lisa oma töö      

Otsid ehitajat "Üldehitus" valdkonnast?

Parima pakkumise ja teostaja leidmiseks lisa oma töö.

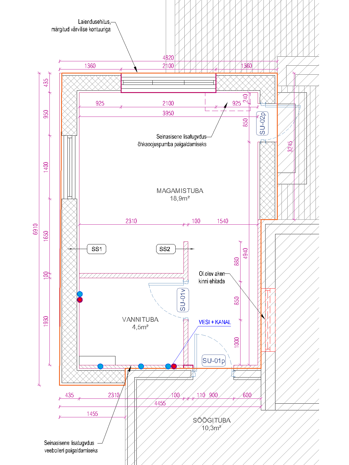
Eramu laiendusehitis 30.7 m2

ID 70518

482 vaatamist

Prindi

  • check Pakkumiste tegemine
    kuni 28.04.2022
  • check Võitja valik kuni
    05.05.2022
  • 3 Töö teostamine
    ja hinnang
Hanke lõpp: N, 28. aprill, 2022
Maakond: Pärnumaa
Muu asula: Tootsi
Tööde algus: P, 01. mai, 2022 (Soovituslik)
Tööde lõpp: P, 10. juuli, 2022
Ehitusmaterjalid: Töö tellija poolt
Soovin pakkumisi: Summa kogu projektile

Töö sisu

Eramu laiendusehitis 30,7m²

Otsime eramule laienduse ehitajat. Laiendus tuleb ehitada olemasoleva veranda jätkuna.
Plaatvundamendi ehitus algusest lõpuni koos kaevetöödega. Fiboplokkidest laduda vundamendi sein ja teostada valamistööd. Seinad laduda vastavalt joonisele, materjal Aeroc 375x200x600.
Pakkujalt ootame ainult üldehitust: ehituskoha ettevalmistus, tasandamine, vundamendi tegemine, seinte ladumine.
Akende/uste paigaldamist, fassaaditöid ja katuse ehitust pakkumisse hetkel ei soovi.

Pildid, video ja failid

Hanke korraldaja: eraisik ID68107

Pakkumised

Pakkumisi kokku: 0

Küsimused hanke korraldajale

Küsimus: private ID34075   30.03.2022 22:53
Tere.

Kas on lisada juurdeehitusest lõige. Kui kõrge vundament, kui kõrged seinad? Kuidas on lahendatud otsaviil ja katus?
Praegu jääb ebaselgeks, mis vundament tuleb. Hanke kirjelduses on juttu plaatvundamendist ja natuke edasi juba Fibo plokkidest vundamendi ladumine. Kui lintvundament, siis kas põrandaplaadivalu on hanke osa? Kas betoon tuleb kaubabetoonina või kohapeal segada?
Kas on plaanis ka soojustust paigaldada? Millest on plaanitud teha põrandaalune tagasitäide? Kas väljakaeve kõrvale hunnikusse, kaugel asuvad puistematerjalid?
Täpsustage välisseina konstruktsioon. Plokk on 375, aga plaanil mõõdud 435. Kuidas seinad välja mõõdetakse?
Kuidas on avade sillused lahendatud?
Kas el, vesi, kanal lahendatakse hilisemate tööde käigus?

Teavita reeglite rikkumisest

Korraldaja vastus: 31.03.2022 10:47

Tere

Rohkem lisa jooniseid ja pilte ei ole. Vundamendi suhtes vôibolla tôesti arusaamatus. Et mis lahenduse teie pakute Vundamendi suhtes. Hetkel soovin pakkumist vundamendi ehitusele ja aeroc ploki ladumisele. 13 rida peaks tulema aeroc plokke siis peaks kôrgus 2.6m pôrandast laeni jààma.

Teavita reeglite rikkumisest

Küsimus: private ID34075   31.03.2022 11:48
Tere

Kui võimalik, siis pange siia paar fotot olemasolevast hoonest. Visualiseeritud vaated ei ütle midagi, sest mõõdud on puudu. Kui neid vaatan, siis kahtlen, kas +2.60 seinakõrgus räästa alla ära mahub seina joonelt 3m välja tõstetud osa puhul.
Kas tehnika juurde pääseb?
Kui sügaval on olemasoleva hoone vundament?

Teavita reeglite rikkumisest

Korraldaja vastus: 31.03.2022 17:14

Tere

Lisasin veel pildid. Juurdeehitus on planeeritud terassi kohale. Terassi likvideerin ja plaan juurde ehitus sinna. Juurdeehitus peaks saama kuidagi siduda kokku Verandaga. Hetkel làbirààkimised kàivad kuidas teha veranda ja juurdeehituse katus. Selge on see Veranda katus tuleb maha vôtta. Olemasoleva vundamendi sügavuse saan teada siis lisan siia.

Teavita reeglite rikkumisest

Lisa küsimus

Lisa küsimus

Minu pakkumine

Reeglid

Pakkumise kirjelduse väli on mõeldud pakkumise detailsemaks lahti kirjutamiseks. Pikema teksti mugavaks sisestamiseks klikkige kasti paremal ülaservas oleval ikoonil.
Pakkumist tehes on keelatud postitada enda kontaktandmeid (nimi, telefon, aadress jne). Me jälgime ja analüüsime pakkumisi, et vältida pettuseid ja reeglite rikkumisi.
Rikkumise puhul kasutajakonto blokeeritakse.

 

Teisi töid samas valdkonnas

Valdkonnas "Üldehitus" on 27 aktiivset tööd

Terassi õlitamine, 13,7 ruutu

Asukoht: Harjumaa, Saue
Aega jäänud: 5p 14h
Tehtud pakkumisi: 4

Eramaja ehitus

Asukoht: Harjumaa, Suurupi
Aega jäänud: 4p 14h
Tehtud pakkumisi: 4

Vanemad teated:

Vaata kõiki

Sellel veebilehel kasutatakse küpsiseid. Kasutamist jätkates nõustute küpsiste kasutamisega.

Sulge
 
Minu pakkumine

Reeglid

Pakkumise kirjelduse väli on mõeldud pakkumise detailsemaks lahti kirjutamiseks. Pikema teksti mugavaks sisestamiseks klikkige kasti paremal ülaservas oleval ikoonil.
Pakkumist tehes on keelatud postitada enda kontaktandmeid (nimi, telefon, aadress jne). Me jälgime ja analüüsime pakkumisi, et vältida pettuseid ja reeglite rikkumisi.
Rikkumise puhul kasutajakonto blokeeritakse.