+ Lisa oma töö      

Otsid ehitajat "Põrandatööd" valdkonnast?

Parima pakkumise ja teostaja leidmiseks lisa oma töö.

Põranda ehitus

ID 70390

850 vaatamist

Prindi

  • check Pakkumiste tegemine
    kuni 25.04.2022
  • check Võitja valik kuni
    02.05.2022
  • 3 Töö teostamine
    ja hinnang
Hanke lõpp: E, 25. aprill, 2022
Maakond: Harjumaa
Muu asula: Laitse
Tööde algus: E, 04. aprill, 2022 (Soovituslik)
Tööde lõpp: L, 30. aprill, 2022 (Soovituslik)
Ehitusmaterjalid: Töö tellija poolt
Soovin pakkumisi: Summa kogu projektile

Töö sisu

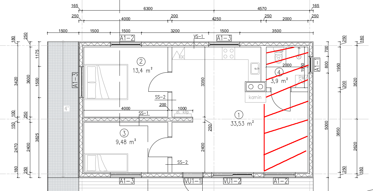
Põrandate ehitus nullist, põranda ettevalmistus küttetorude paigalduseks ja põranda betoonivaluks.
1) Olemasoleva põranda osa eemaldamine (ca 30m2)
2) lammutada 3 seina (vanal plaanil tähistatud numbritega)
3) Sauna osas lammutada korsten, korstnajalg ja katusele uus laineplekk lammutatud korstna osale.
4) Valmistada ette põrandad (ca 60m2 kokku) betoonivaluks, paigaldada küttetorud jmt õhk-vesi soojuspumba paigalduseks. Peno 150mm.
5) Betooni tellimine/valamine.
Pildil punasega viirutatud osas on põrand üles võetud, laagid on veel alles.
Vana garaaži ja sauna osa põrand on madalam (ca 25-30cm) kui eluaseme osas. Sinna tuleb siis midagi täiteks tuua.
Ehitusjäägid mida ahjus põletada ei saa tuleb ära ka vedada selleks ettenähtud kohta.

Pildid, video ja failid

Hanke korraldaja: eraisik ID64684

Pakkumised

Pakkumisi kokku: 1

Ettevõte Summa Käibemaks Lisatud Vestlus
Kasutaja ikoon ID66447
Pakkuja profiil Väike nool paremale
3 300€ Ei ole KMKR Ei ole KMKR 07.04.2022 Vestlus (0)

Küsimused hanke korraldajale

Hanke korraldajale ei ole veel küsimusi esitatud.

Lisa küsimus

Lisa küsimus

Minu pakkumine

Reeglid

Pakkumise kirjelduse väli on mõeldud pakkumise detailsemaks lahti kirjutamiseks. Pikema teksti mugavaks sisestamiseks klikkige kasti paremal ülaservas oleval ikoonil.
Pakkumist tehes on keelatud postitada enda kontaktandmeid (nimi, telefon, aadress jne). Me jälgime ja analüüsime pakkumisi, et vältida pettuseid ja reeglite rikkumisi.
Rikkumise puhul kasutajakonto blokeeritakse.

 

Teisi töid samas valdkonnas

Valdkonnas "Põrandatööd" on 2 aktiivset tööd

Talumaja põrandate valamine/ehitus koos küttetorustiku paigaldusega

Asukoht: Raplamaa, Purila
Aega jäänud: 16p 13h
Tehtud pakkumisi: 2

Põrandakütte paigaldus ja põrandavalu (kips või betoon)

Asukoht: Saaremaa, Muhu vald
Aega jäänud: 13h 34 min
Tehtud pakkumisi: 1

Vanemad teated:

Vaata kõiki

Sellel veebilehel kasutatakse küpsiseid. Kasutamist jätkates nõustute küpsiste kasutamisega.

Sulge
 
Minu pakkumine

Reeglid

Pakkumise kirjelduse väli on mõeldud pakkumise detailsemaks lahti kirjutamiseks. Pikema teksti mugavaks sisestamiseks klikkige kasti paremal ülaservas oleval ikoonil.
Pakkumist tehes on keelatud postitada enda kontaktandmeid (nimi, telefon, aadress jne). Me jälgime ja analüüsime pakkumisi, et vältida pettuseid ja reeglite rikkumisi.
Rikkumise puhul kasutajakonto blokeeritakse.