+ Lisa oma töö      

Otsid ehitajat "Korterite remont" valdkonnast?

Parima pakkumise ja teostaja leidmiseks lisa oma töö.

Korteri remont

ID 70006

590 vaatamist

Prindi

  • check Pakkumiste tegemine
    kuni 18.03.2022
  • check Võitja valik kuni
    25.03.2022
  • 3 Töö teostamine
    ja hinnang
Hanke lõpp: R, 18. märts, 2022
Maakond: Lääne-Virumaa
Linn: Rakvere
Tööde algus: N, 31. märts, 2022 (Soovituslik)
Tööde lõpp: L, 30. aprill, 2022 (Soovituslik)
Ehitusmaterjalid: Töö tegija poolt
Soovin pakkumisi: Summa kogu projektile

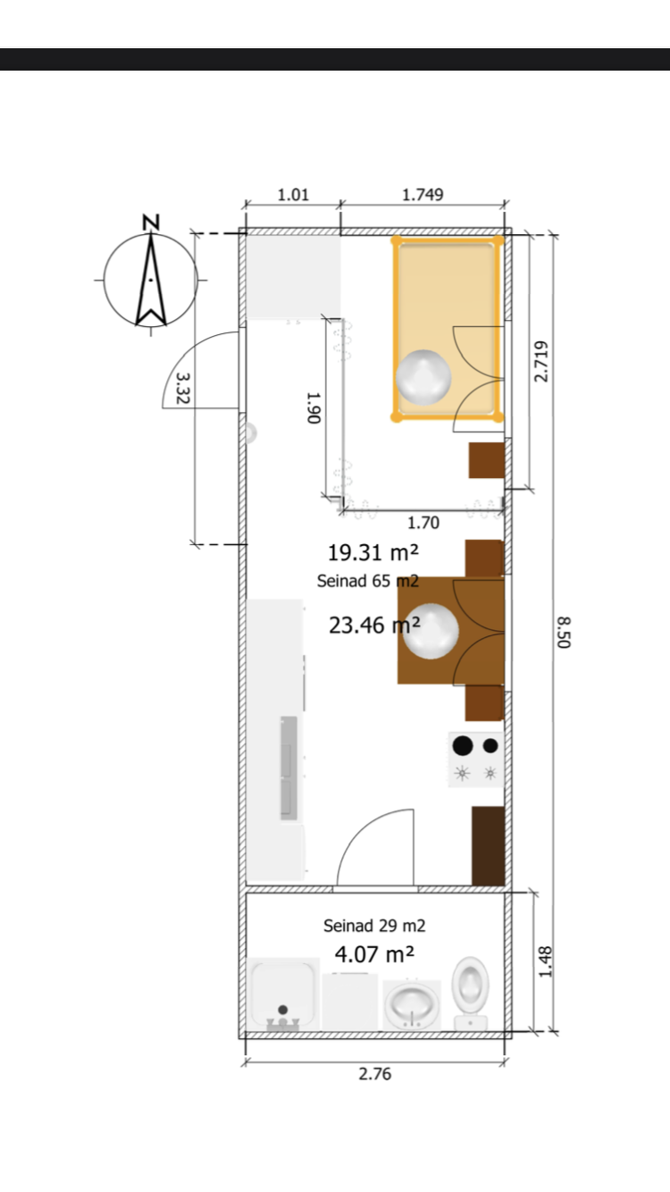
Töö sisu

Töö sisu:

ehitada ja viimistleda kipseinu, dushiruumis peaks paar m2 olema tugevdatud, et saaks panna boileri., Ja köögis kappid rippuma. Kõikides seintes peaks olema ka vähemalt 50mm soojustusvilla.

Paigaldada siseuks ja vahetada välisuks


Paigaldada laminaat koos alusmatiga

Plaatida dushiruumi seinad ja põrand.

Elektritööd-põranda pind 24m2, uus elektrikilp on veetud korteri. Dushiruumis peab olema ka põranda kütte.

Santehnilised tööd, kanalisatsioon on ehitatud, vesi tuleb korteri, vaja ehitada kulma vee valmindus seadmetele/santehnikale.

Ehitada kipslagesi- karkassi ei pea olema, laes on osb, mille külge saab panna kipsplaadi.

Hetkel korteris vaheseina pole ja on riskülikune üks ruum, põrand ja lagi tehtud osbga. Seinad palgist.

Korteris peab olema ka köögikubu ja dushiruumis vent, hetkel pole avasis nendeks.

Kõik materjalid peaksid olema tegia poolt, plaat uksed, valgustid, laminaat tellia poolt

Pildid, video ja failid

Hanke korraldaja: ettevõte ID62644

Pakkumised

Pakkumisi kokku: 0

Küsimused hanke korraldajale

Hanke korraldajale ei ole veel küsimusi esitatud.

Lisa küsimus

Lisa küsimus

Minu pakkumine

Reeglid

Pakkumise kirjelduse väli on mõeldud pakkumise detailsemaks lahti kirjutamiseks. Pikema teksti mugavaks sisestamiseks klikkige kasti paremal ülaservas oleval ikoonil.
Pakkumist tehes on keelatud postitada enda kontaktandmeid (nimi, telefon, aadress jne). Me jälgime ja analüüsime pakkumisi, et vältida pettuseid ja reeglite rikkumisi.
Rikkumise puhul kasutajakonto blokeeritakse.

 

Teisi töid samas valdkonnas

Valdkonnas "Korterite remont" on 2 aktiivset tööd

Vannitoa lampide paigaldus + erinevad pisiparandused korteris

Asukoht: Harjumaa, Tallinn
Aega jäänud: 1p 21h
Tehtud pakkumisi: 3

Korteri kapitaalremont ja ümberehitus (täielik siseviimistlus + elektritööd)

Asukoht: Järvamaa
Aega jäänud: 12p 21h
Tehtud pakkumisi: 0

Vanemad teated:

Vaata kõiki

Sellel veebilehel kasutatakse küpsiseid. Kasutamist jätkates nõustute küpsiste kasutamisega.

Sulge
 
Minu pakkumine

Reeglid

Pakkumise kirjelduse väli on mõeldud pakkumise detailsemaks lahti kirjutamiseks. Pikema teksti mugavaks sisestamiseks klikkige kasti paremal ülaservas oleval ikoonil.
Pakkumist tehes on keelatud postitada enda kontaktandmeid (nimi, telefon, aadress jne). Me jälgime ja analüüsime pakkumisi, et vältida pettuseid ja reeglite rikkumisi.
Rikkumise puhul kasutajakonto blokeeritakse.