+ Lisa oma töö      

Otsid ehitajat "Üldehitus" valdkonnast?

Parima pakkumise ja teostaja leidmiseks lisa oma töö.

Ridaelamu remont

ID 69983

585 vaatamist

Prindi

  • check Pakkumiste tegemine
    kuni 13.04.2022
  • check Võitja valik kuni
    20.04.2022
  • 3 Töö teostamine
    ja hinnang
Hanke lõpp: K, 13. aprill, 2022
Maakond: Harjumaa
Muu asula: Laagri
Tööde algus: E, 25. aprill, 2022 (Soovituslik)
Tööde lõpp: E, 16. mai, 2022 (Soovituslik)
Ehitusmaterjalid: Töö tegija poolt
Soovin pakkumisi: Summa kogu projektile

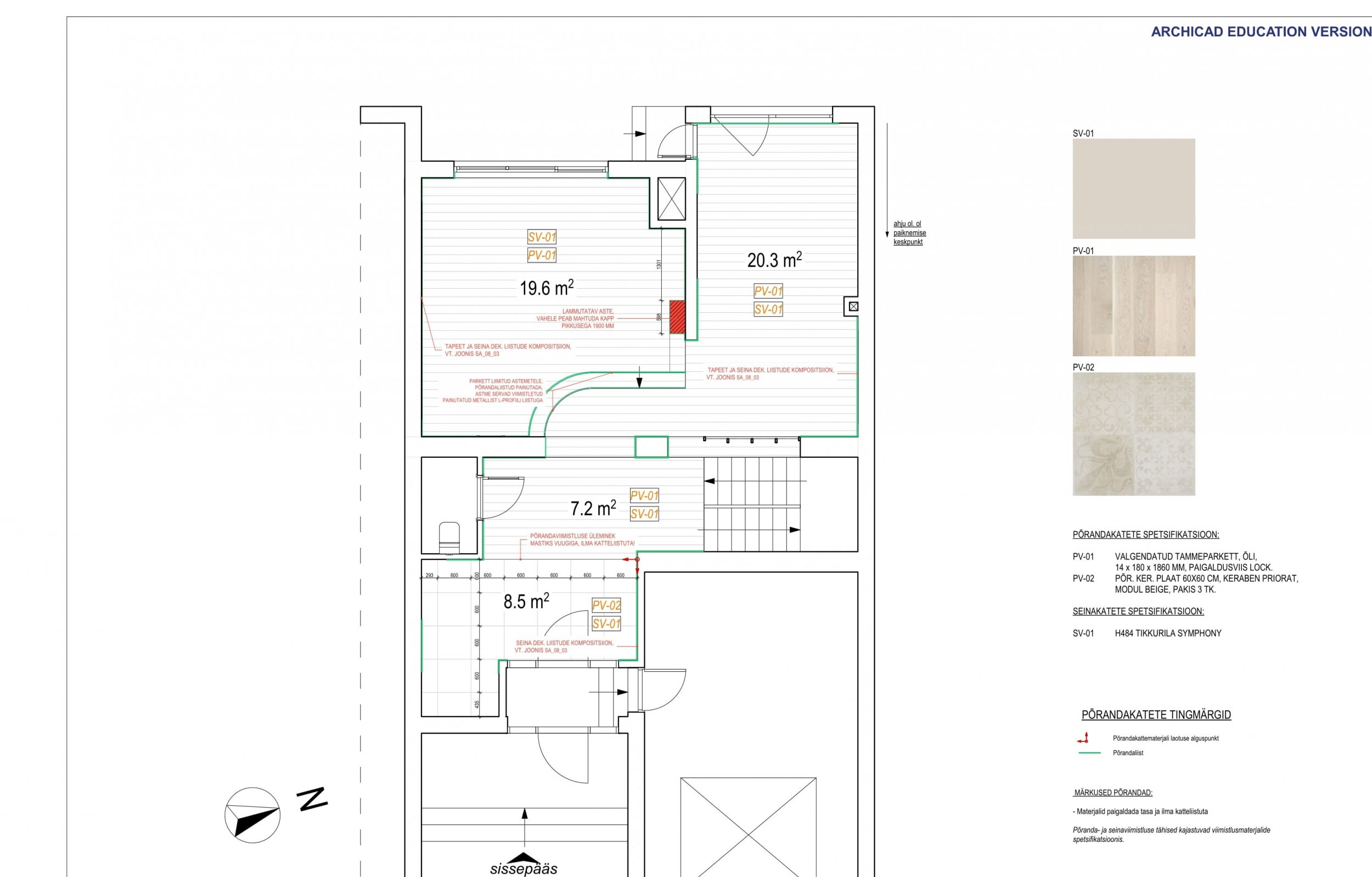
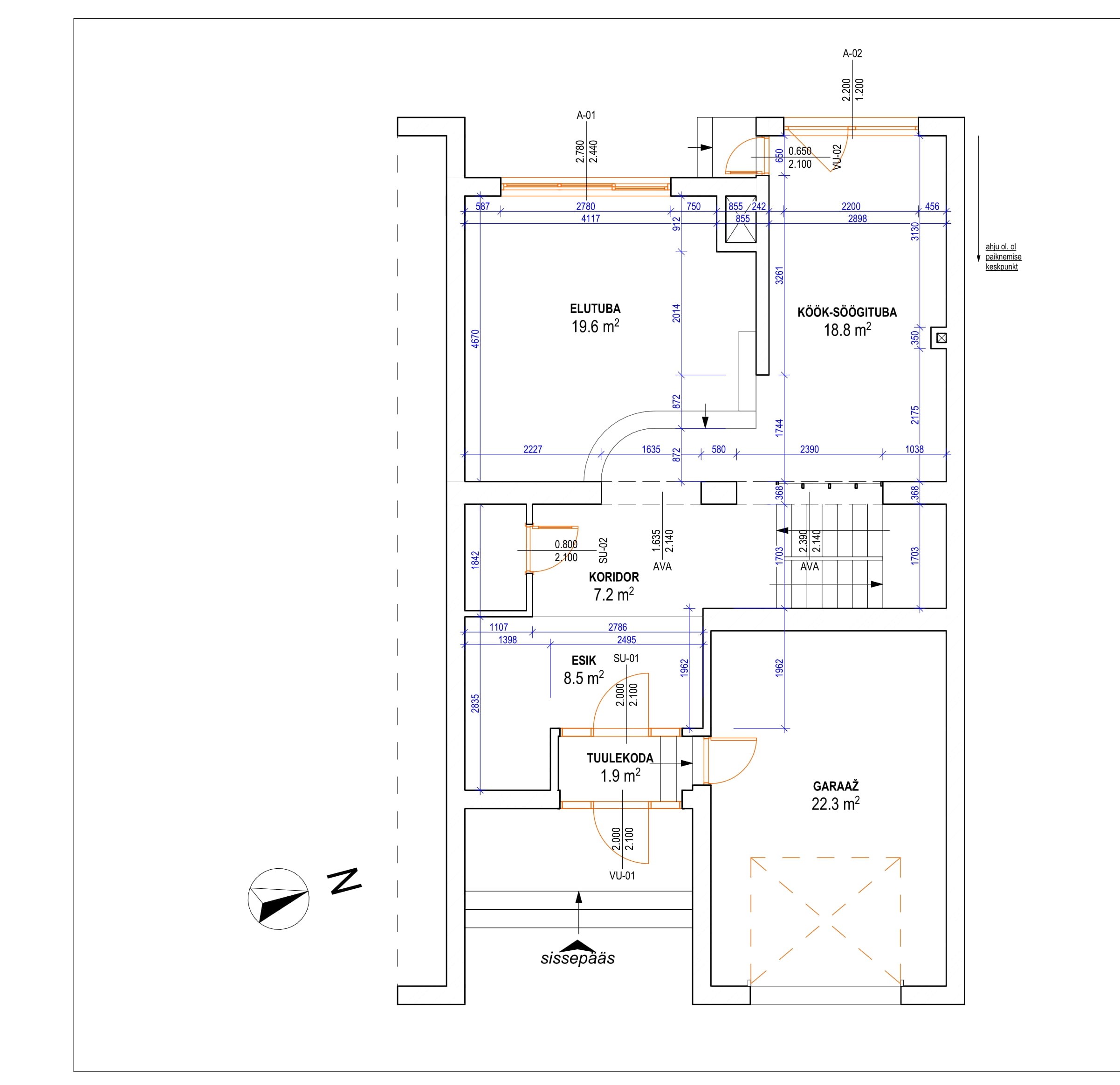
Töö sisu

Palun hinda ridaelamu boxi põhiliselt 1. korruse ja osaliselt 2. korruse remont- ja viimistlustöödele vastavalt sisekujunduse ja planeeritava kütte plaanidele.
Hoonesse planeeritakse rajada radiaator- ja põrandküttesüsteemid ning korrastada 1. korruse siseviimistlus kaasaegsele tasemele ning vajadustele. Praeguse hanke juurde ei kuulu küttetorude ja radiaatorite paigaldus ning elektritööd.
Hankele on lisatud täpsem kirjeldus tubade kaupa ning kütte- ja siseviimistlusplaanid.
Suures osas on viimistlusmaterjalid tellija poolt.
Küsimuste puhul palun need täpsustada.
Hinnapakkumises palun tuua välja, mida see ei sisalda.

Pildid, video ja failid

Hanke korraldaja: eraisik ID57999

Pakkumised

Pakkumisi kokku: 0

Küsimused hanke korraldajale

Küsimus: private ID31957   17.03.2022 16:17
Tere,

Kas saaksite lisada pilte hetkeolukorrast.
Kas hankes märgitud kuupäevad on reaalsed töö planeerimiskuupäevad või need lepib eraldi kokku?

Lugupidamisega

Teavita reeglite rikkumisest

Korraldaja vastus: 18.03.2022 09:00

Tere!
Teen paari päeva jooksul pildid või video hetkeolukorrast.
Kuupäevade osas toodud kuupäevad nn kivisse raiutud ei ole. Kuid kuskil aprilli lõpus või mai alguses võiks töödega alustada.

Parimate soovidega

Teavita reeglite rikkumisest

Küsimus: private ID67947   23.03.2022 23:45
Elektritööde teostaja olemas?

Teavita reeglite rikkumisest

Korraldaja vastus: 25.03.2022 13:44

Tere! See on nii ja naa. Oleme rääkinud, aga sõltub, millal töödega vaja alustada. Elektriprojekt kui selline hetkel veel päris lõplikult paigas ei ole.

Teavita reeglite rikkumisest

Küsimus: private ID67947   25.03.2022 14:11
Võin pakkuda elektritööde teenust teile

Teavita reeglite rikkumisest

Korraldaja vastus: 27.03.2022 11:36

Hästi, aga hetkel ei ole ma seda hankesse pannud ja elektri projekti siin üleval ei ole.
Praegu on soov saada üldehituse pakkumisi.

Teavita reeglite rikkumisest

Lisa küsimus

Lisa küsimus

Minu pakkumine

Reeglid

Pakkumise kirjelduse väli on mõeldud pakkumise detailsemaks lahti kirjutamiseks. Pikema teksti mugavaks sisestamiseks klikkige kasti paremal ülaservas oleval ikoonil.
Pakkumist tehes on keelatud postitada enda kontaktandmeid (nimi, telefon, aadress jne). Me jälgime ja analüüsime pakkumisi, et vältida pettuseid ja reeglite rikkumisi.
Rikkumise puhul kasutajakonto blokeeritakse.

 

Teisi töid samas valdkonnas

Valdkonnas "Üldehitus" on 27 aktiivset tööd

Terassi õlitamine, 13,7 ruutu

Asukoht: Harjumaa, Saue
Aega jäänud: 5p 19h
Tehtud pakkumisi: 4

Eramaja ehitus

Asukoht: Harjumaa, Suurupi
Aega jäänud: 4p 19h
Tehtud pakkumisi: 4

Vanemad teated:

Vaata kõiki

Sellel veebilehel kasutatakse küpsiseid. Kasutamist jätkates nõustute küpsiste kasutamisega.

Sulge
 
Minu pakkumine

Reeglid

Pakkumise kirjelduse väli on mõeldud pakkumise detailsemaks lahti kirjutamiseks. Pikema teksti mugavaks sisestamiseks klikkige kasti paremal ülaservas oleval ikoonil.
Pakkumist tehes on keelatud postitada enda kontaktandmeid (nimi, telefon, aadress jne). Me jälgime ja analüüsime pakkumisi, et vältida pettuseid ja reeglite rikkumisi.
Rikkumise puhul kasutajakonto blokeeritakse.