+ Lisa oma töö      

Otsid ehitajat "Üldehitus" valdkonnast?

Parima pakkumise ja teostaja leidmiseks lisa oma töö.

Hange on lõppenud!

Võitjaks osutus kasutaja ID 67484

Korraldaja hinnang tehtud tööle

1.0
10.05.2022
Töökiirus: 12345
Kvaliteet: 12345
Hind: 12345

Leppisime ehitajaga kokku päeva ja orienteeruva aja objektiga tutvumiseks. Kokkulepitud päeval ta enam meile ei vastanud, hiljem lubas uuesti ühendust võtta, kuid ka veel 2 nädalat hiljem ei ole me temalt midagi kuulnud. Ei soovi koostööd jätkata. - Haana N.

Korteri seinte ümberehitus ning heliisolatsiooni parandus

ID 69718

726 vaatamist

Prindi

  • check Pakkumiste tegemine
    kuni 17.03.2022
  • check Võitja valik kuni
    24.03.2022
  • 3 Töö teostamine
    ja hinnang
Hanke lõpp: N, 17. märts, 2022
Maakond: Harjumaa
Linn: Tallinn
Tööde algus: E, 11. aprill, 2022 (Soovituslik)
Tööde lõpp: T, 10. mai, 2022 (Soovituslik)
Ehitusmaterjalid: Töö tegija poolt
Soovin pakkumisi: Summa kogu projektile

Töö sisu

Tere!

Otsime ehitustööde teostajat ja hinnapakkumist korteri seinte ümberehitamisele, kuna kuuleme hetkel läbi seina naabreid. Korteri kaks otsmist seina (2 seina mõõtudega 5,9m x 2,8m) ei vasta hetkel heliisolatsiooni normidele - 39dB nõutud 55dB asemel. Tööde eesmärgiks on saada heli paremini summutav vastav sein, et naabreid ei oleks läbi kosta. Korter asub Tallinnas Sikupilli asunduses, liftiga majas.


Suure tõenäosusega on hetkel tegemist karkassseinaga, mis on vooderdatud mõlemalt poolt ühe kipsplaadiga või kahe kipsplaadiga ilma villata.

Tööde aluseks on helimõõtmise teostanud ettevõtte soovitused:
-Olemasoleva seina kipsplaadi eemaldamine (ühelt poolt);
-Laepaneeli õõnsuste täitmine vahuga või silikooniga/hermeetikuga ette puuritud aukude kaudu;
-Teise 66-75mm metallkarkassi villaga paigaldamine (20-30mm kaugusel olemasolevast karkassist);
-Uue seina vooderdamine 2xkipsplaadiga (tavaline+erikõva või 2xerikõva).

Juhul, kui olemasolev sein on vooderdatud ainult 1 kipsplaadiga, siis tuleb lisada teiselt poolt veel 1 erikõva kipsplaat.

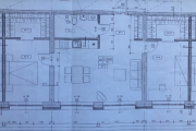
Mõlema seinaga ristub garderoobi seinajupp. (vt korteri plaani) Kuna soovime heli summutavat seina ka garderoobi, tuleb ka ristuvad seinad eemaldada ning hiljem taastada.

See on helimõõtmise teostanud ettevõtte sõnul minimaalne tegevus heliisolatsiooni normi saavutamiseks. Helipidavuse lõplik tulemus sõltub ka siirdehelide levikust teiste konstruktsioonide kaudu (peamiselt põrand ja lagi). Seega, kui selgub, et kahe ruumi vahel on ühine ujuvpõranda plaat, siis see tuleks läbi lõigata kahe karkassi vahel.


Ootame ideid, soovitusi ning hinnapakkumisi! Hinnapakkumisse palume arvestada materjalide maksumus ning töö hinna variandid ilma viimistluseta ja võimalusel ka viimistlusega.

Pildid, video ja failid

Hanke korraldaja: eraisik ID67700

Pakkumised

Pakkumisi kokku: 2

Ettevõte Summa Käibemaks Lisatud Vestlus
Kasutaja ikoon ID67484
Pakkuja profiil Väike nool paremale
3 200€ Sisaldab KM Sisaldab KM 06.03.2022 Vestlus (1)

Pakkumise kirjeldus:

Kogu materjal on hinna sees. Korterite heliisolatsiooni kogemus on olemas, lisaks heliisolatsioonivillale soovitame paigaldada heliisolatsiooniplaadid ( Puithöövellaast-tsementplaat heliisolatsiooniga 1.0mm/25x600x1200mm hall
) , 36 ruutmeetri eest tuleb juurde 1100 eurot.

Kasutaja ikoon ID50594
Pakkuja profiil Väike nool paremale
5 000€ KM lisandub KM lisandub 11.03.2022 Vestlus (0)

Pakkumise kirjeldus:

Tere,

Hinnapakkumine koostatud vastavalt hanke kirjeldusele.
Võimalus tasuda ilma KM.

Lgp. Taivo

Küsimused hanke korraldajale

Hanke korraldajale ei ole veel küsimusi esitatud.

Lisa küsimus

Lisa küsimus

Minu pakkumine

Reeglid

Pakkumise kirjelduse väli on mõeldud pakkumise detailsemaks lahti kirjutamiseks. Pikema teksti mugavaks sisestamiseks klikkige kasti paremal ülaservas oleval ikoonil.
Pakkumist tehes on keelatud postitada enda kontaktandmeid (nimi, telefon, aadress jne). Me jälgime ja analüüsime pakkumisi, et vältida pettuseid ja reeglite rikkumisi.
Rikkumise puhul kasutajakonto blokeeritakse.

 

Teisi töid samas valdkonnas

Valdkonnas "Üldehitus" on 28 aktiivset tööd

Maja värvimine

Asukoht: Harjumaa, Saue
Aega jäänud: 2p 8h
Tehtud pakkumisi: 5

Terassi õlitamine, 13,7 ruutu

Asukoht: Harjumaa, Saue
Aega jäänud: 5p 8h
Tehtud pakkumisi: 5

Vanemad teated:

Vaata kõiki

Sellel veebilehel kasutatakse küpsiseid. Kasutamist jätkates nõustute küpsiste kasutamisega.

Sulge
 
Minu pakkumine

Reeglid

Pakkumise kirjelduse väli on mõeldud pakkumise detailsemaks lahti kirjutamiseks. Pikema teksti mugavaks sisestamiseks klikkige kasti paremal ülaservas oleval ikoonil.
Pakkumist tehes on keelatud postitada enda kontaktandmeid (nimi, telefon, aadress jne). Me jälgime ja analüüsime pakkumisi, et vältida pettuseid ja reeglite rikkumisi.
Rikkumise puhul kasutajakonto blokeeritakse.