+ Lisa oma töö      

Otsid ehitajat "Geodeesia, kartograafia" valdkonnast?

Parima pakkumise ja teostaja leidmiseks lisa oma töö.

Hange on lõppenud!

Võitjaks osutus kasutaja ID 28394

Büroohoone mõõditus 2D

ID 69645

503 vaatamist

Prindi

  • check Pakkumiste tegemine
    kuni 30.03.2022
  • check Võitja valik kuni
    06.04.2022
  • 3 Töö teostamine
    ja hinnang
Hanke lõpp: K, 30. märts, 2022
Maakond: Harjumaa
Linn: Tallinn
Tööde algus: K, 16. märts, 2022 (Soovituslik)
Tööde lõpp: T, 31. mai, 2022 (Soovituslik)
Ehitusmaterjalid: Töö tegija poolt
Soovin pakkumisi: Summa kogu projektile

Töö sisu

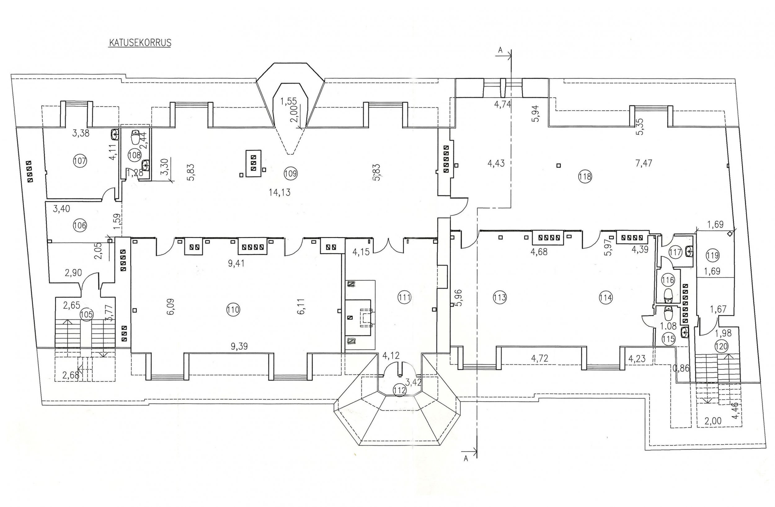
Tallinna kesklinnas 4-korruselise büroohoone digitaalne mõõdistamine, joonised 2d.
Mõõdistusprojekti koostamise tarbeks.
Suletud netopinda 1480 m2, 106 ruumi.

Pildid, video ja failid

Hanke korraldaja: eraisik ID43830

Pakkumised

Pakkumisi kokku: 2

Ettevõte Summa Käibemaks Lisatud Vestlus
Kasutaja ikoon ID27884
Pakkuja profiil Väike nool paremale
1 400€ KM lisandub KM lisandub 01.03.2022 Vestlus (0)

Pakkumise kirjeldus:

- Digitaalne hoone mõõdistamine laserskaneerimise meetodil.
- Koostame digitaalsed ja graafilised hoone vaated, lõike ja korruste plaanid mõõtkavas 1:100.
- Koostame eksplikatsioonitabelid.
- Joonised anname üle 2d kujul .dwg ja .pdf formaadis.
- Tööd on kaetud vastutuskindlustusega.

Kasutaja ikoon ID28394
Pakkuja profiil Väike nool paremale
1 300€ Sisaldab KM Sisaldab KM 30.03.2022 Vestlus (0)

Pakkumise kirjeldus:

Hind jooniste digitaliseerimiseks 2d.

Küsimused hanke korraldajale

Hanke korraldajale ei ole veel küsimusi esitatud.

Lisa küsimus

Lisa küsimus

Minu pakkumine

Reeglid

Pakkumise kirjelduse väli on mõeldud pakkumise detailsemaks lahti kirjutamiseks. Pikema teksti mugavaks sisestamiseks klikkige kasti paremal ülaservas oleval ikoonil.
Pakkumist tehes on keelatud postitada enda kontaktandmeid (nimi, telefon, aadress jne). Me jälgime ja analüüsime pakkumisi, et vältida pettuseid ja reeglite rikkumisi.
Rikkumise puhul kasutajakonto blokeeritakse.

 

Teisi töid samas valdkonnas

Valdkonnas "Geodeesia, kartograafia" on 2 aktiivset tööd

Soovin tellida geodeetilist alusplaani (geoalust)

Asukoht: Hiiumaa, Paluküla
Aega jäänud: 3p 13h
Tehtud pakkumisi: 4

no-img Pilt puudub

Geodeetilise alusplaani koostamine

Asukoht: Pärnumaa, Raespa
Aega jäänud: 1p 13h
Tehtud pakkumisi: 1

Vanemad teated:

Vaata kõiki

Sellel veebilehel kasutatakse küpsiseid. Kasutamist jätkates nõustute küpsiste kasutamisega.

Sulge
 
Minu pakkumine

Reeglid

Pakkumise kirjelduse väli on mõeldud pakkumise detailsemaks lahti kirjutamiseks. Pikema teksti mugavaks sisestamiseks klikkige kasti paremal ülaservas oleval ikoonil.
Pakkumist tehes on keelatud postitada enda kontaktandmeid (nimi, telefon, aadress jne). Me jälgime ja analüüsime pakkumisi, et vältida pettuseid ja reeglite rikkumisi.
Rikkumise puhul kasutajakonto blokeeritakse.