+ Lisa oma töö      

Otsid ehitajat "Üldehitus" valdkonnast?

Parima pakkumise ja teostaja leidmiseks lisa oma töö.

Hange on lõppenud!

Võitjaks osutus kasutaja ID 43501

Korraldaja hinnang tehtud tööle

5.0
30.03.2022
Töökiirus: 12345
Kvaliteet: 12345
Hind: 12345

Ehitaja oli väga korrektne. Töö teostas nii nagu kokku lepitud ja nagu oleks iseendale teinud. Käis mitmes ehituspoes, et valida õige linoleum. Ka seinavärvi tooni leidis lõpuks sellise nagu meie algne soov oli. Iga päev jättis endast puhta ehituse järgi. Kindlasti soovitan. - Nelli V.

Hruštšovka köögi remont ja torude vahetus vannitoas

ID 69635

1281 vaatamist

Prindi

  • check Pakkumiste tegemine
    kuni 14.03.2022
  • check Võitja valik kuni
    21.03.2022
  • 3 Töö teostamine
    ja hinnang
Hanke lõpp: E, 14. märts, 2022
Maakond: Tartumaa
Linn: Tartu
Tööde algus: E, 21. märts, 2022 (Soovituslik)
Tööde lõpp: P, 24. aprill, 2022 (Soovituslik)
Ehitusmaterjalid: Töö tegija poolt
Soovin pakkumisi: Summa kogu projektile

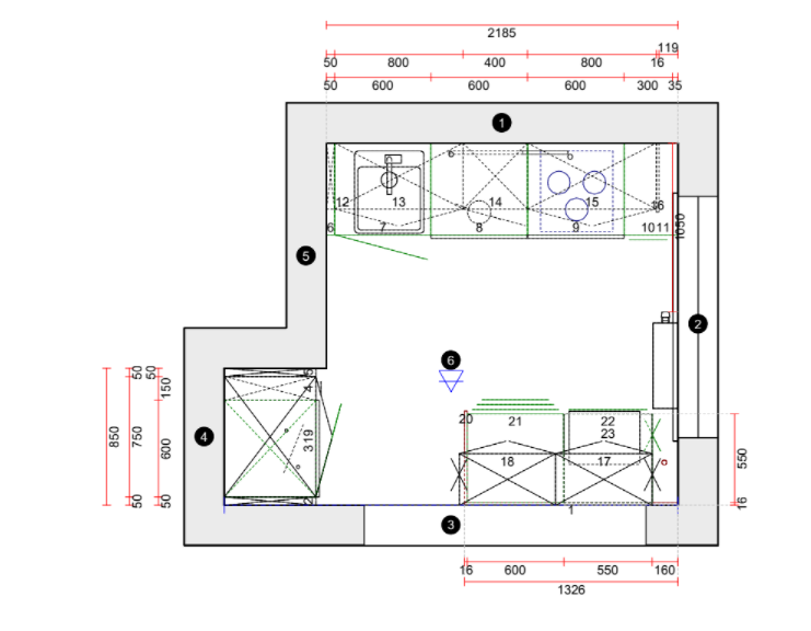
Töö sisu

On tarvis teha köögis remont:
- vahetada põrandakate
- värvida seinad
- võtta maha olemasolevad plaadid ja kui uued kapid on aprilli lõpus seinas, siis kappide vaheline sein.
- eemaldada jupp gaasitorust, sest uues köögis pole gaasipliiti. Ühistu gaasitoru jääb alles.
- üle värvida lagi (värvitud kaks aastat tagasi)

Osaline vannitoaremont ja torude vahetus:
- hetkel lähevad torud läbi vannitoa kööki ja köögis on kraanikausi all ühistu mõõdikud. Seejärel lähevad torud tagasi vannituppa ja jaotuvad seal laiali. Sooviks teha nii, et ühistu mõõdikud oleksid kohe sisenemisel vannitoa kraanikausi all ja seejärel läheksid torud kööki. Vannitoas on torud hästi ligipääsetavad. Vannitoas on remont 2 aastat tagasi tehtud. Oleks vaja eemaldada dushikabiin ja kraanikausikapp. Seejärel vahetada torud, panna uus dushikabiin ja uus kraanikausikapp.

Esitage küsimusi täpsustamiseks.

Pildid, video ja failid

Hanke korraldaja: eraisik ID35611

Pakkumised

Pakkumisi kokku: 1

Ettevõte Summa Käibemaks Lisatud Vestlus
Kasutaja ikoon ID43501
Pakkuja profiil Väike nool paremale
2 000€ Ikoon kell Sisaldab KM Sisaldab KM 14.03.2022 Vestlus (4)

Pakkumise kirjeldus:

Tere
Pakkumine sisaldab teie poolt loetletud töid.
Pakkumine ei sisalda dushikabiini ning kraanikausikappi.
Hetkeseisuga võimalik töödega alustada nädala jooksul.
Lgp

Küsimused hanke korraldajale

Küsimus: private ID66930   01.03.2022 10:59
gaasi töödeks on soovitatav projekt teha.

Teavita reeglite rikkumisest

Korraldaja vastus: 02.03.2022 15:20

Tere, vestlesin täna korteriühistu esimehega ja võtsin ühendust firmaga, kes gaasitorude eemaldamisega tegeleb. Seega hanke võitja gaasitoru eemaldamisega siiski tegelema ei pea.

Teavita reeglite rikkumisest

Küsimus: private ID66930   03.03.2022 11:53
Tere, kui palju on köögi põranda m2 ja seina m2?

Teavita reeglite rikkumisest

Korraldaja vastus: 05.03.2022 14:01

Tere, seinapinda tuleb umbes 18,5 m2 ja põrandapinda umbes 5,5 m2.

Teavita reeglite rikkumisest

Küsimus: private ID43061   10.03.2022 08:50
Tere, palun mitmes korrus.

Teavita reeglite rikkumisest

Korraldaja vastus: 10.03.2022 08:57

Tegu on esimese korrusega.

Teavita reeglite rikkumisest

Lisa küsimus

Lisa küsimus

Minu pakkumine

Reeglid

Pakkumise kirjelduse väli on mõeldud pakkumise detailsemaks lahti kirjutamiseks. Pikema teksti mugavaks sisestamiseks klikkige kasti paremal ülaservas oleval ikoonil.
Pakkumist tehes on keelatud postitada enda kontaktandmeid (nimi, telefon, aadress jne). Me jälgime ja analüüsime pakkumisi, et vältida pettuseid ja reeglite rikkumisi.
Rikkumise puhul kasutajakonto blokeeritakse.

 

Teisi töid samas valdkonnas

Valdkonnas "Üldehitus" on 49 aktiivset tööd

Korterist tellisseina eemaldamine

Asukoht: Harjumaa, Tallinn
Aega jäänud: 2p 2h
Tehtud pakkumisi: 5

Lvt põranda paigaldus

Asukoht: Harjumaa
Aega jäänud: 2h 41 min
Tehtud pakkumisi: 5

Vanemad teated:

Vaata kõiki

Sellel veebilehel kasutatakse küpsiseid. Kasutamist jätkates nõustute küpsiste kasutamisega.

Sulge
 
Minu pakkumine

Reeglid

Pakkumise kirjelduse väli on mõeldud pakkumise detailsemaks lahti kirjutamiseks. Pikema teksti mugavaks sisestamiseks klikkige kasti paremal ülaservas oleval ikoonil.
Pakkumist tehes on keelatud postitada enda kontaktandmeid (nimi, telefon, aadress jne). Me jälgime ja analüüsime pakkumisi, et vältida pettuseid ja reeglite rikkumisi.
Rikkumise puhul kasutajakonto blokeeritakse.