+ Lisa oma töö      

Otsid ehitajat "Siseviimistlustööd" valdkonnast?

Parima pakkumise ja teostaja leidmiseks lisa oma töö.

Hange on lõppenud!

Võitjaks osutus kasutaja ID 48675

PVC põrandakatte paigaldamine

ID 69586

658 vaatamist

Prindi

  • check Pakkumiste tegemine
    kuni 28.02.2022
  • check Võitja valik kuni
    07.03.2022
  • 3 Töö teostamine
    ja hinnang
Hanke lõpp: E, 28. veebruar, 2022
Maakond: Harjumaa
Linn: Tallinn
Tööde algus: E, 14. märts, 2022 (Soovituslik)
Tööde lõpp: K, 16. märts, 2022 (Soovituslik)
Ehitusmaterjalid: Töö tellija poolt
Soovin pakkumisi: Summa kogu projektile

Töö sisu

PVC põrandakatte paigaldamine siledale värvitud betoonpõrandale. Liimitav rullmaterjal, laiusega 2 m. Põrandapind 180 m2.

Pildid, video ja failid

Hanke korraldaja: eraisik ID63848

Pakkumised

Pakkumisi kokku: 2

Ettevõte Summa Käibemaks Lisatud Vestlus
Kasutaja ikoon ID65338
Pakkuja profiil Väike nool paremale
1 260€ Ei ole KMKR Ei ole KMKR 28.02.2022 Vestlus (0)

Pakkumise kirjeldus:

Pakkumine koostatud vastavalt hanke kirjeldusele. Töö teostab suurte kogemustega ehitaja, kelle põhiline valdkond on põrandada. Töö teostatakse kvaliteetselt ja tööle garantii.

Kasutaja ikoon ID48675
Pakkuja profiil Väike nool paremale
990€ Ei ole KMKR Ei ole KMKR 28.02.2022 Vestlus (0)

Pakkumise kirjeldus:

Tere

Pakkumine PVC paigaldusele siledale värvitud betoonpõrandale.

Küsimused hanke korraldajale

Küsimus: private ID65338   25.02.2022 16:31
Tere.

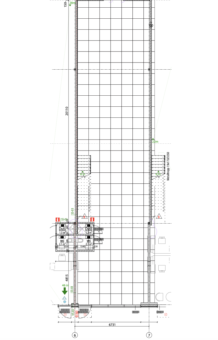
Kas ruumi lahendusest pilti või joonist on võimalik lisada? Kas tuleb teha ka ülespöörded seintele?

Teavita reeglite rikkumisest

Korraldaja vastus: 25.02.2022 18:38

Tere!
Ülespöördeid ei ole vaja teha.
Ruumi plaani lisan hanke infosse.

Teavita reeglite rikkumisest

Küsimus: private ID62201   27.02.2022 20:57
Tere!
Kõik vajalikud materjalid Teie poolt (PVS, liim, vuuginöör jne)?
Kas põrandaliistusid ka tuleb paigaldada?

Teavita reeglite rikkumisest

Korraldaja vastus: 27.02.2022 21:41

Materjal kõik meie poolt. Põrandaliistude paigaldust on vaja ja võite jm hinna ka välja pakkuda.

Teavita reeglite rikkumisest

Lisa küsimus

Lisa küsimus

Minu pakkumine

Reeglid

Pakkumise kirjelduse väli on mõeldud pakkumise detailsemaks lahti kirjutamiseks. Pikema teksti mugavaks sisestamiseks klikkige kasti paremal ülaservas oleval ikoonil.
Pakkumist tehes on keelatud postitada enda kontaktandmeid (nimi, telefon, aadress jne). Me jälgime ja analüüsime pakkumisi, et vältida pettuseid ja reeglite rikkumisi.
Rikkumise puhul kasutajakonto blokeeritakse.

 

Teisi töid samas valdkonnas

Valdkonnas "Siseviimistlustööd" on 24 aktiivset tööd

Seinte värvimine

Asukoht: Harjumaa, Tallinn
Aega jäänud: 12 min
Tehtud pakkumisi: 7

Seinte pahteldus ja värvimine

Asukoht: Harjumaa, Türisalu
Aega jäänud: 3p
Tehtud pakkumisi: 7

Vanemad teated:

Vaata kõiki

Sellel veebilehel kasutatakse küpsiseid. Kasutamist jätkates nõustute küpsiste kasutamisega.

Sulge
 
Minu pakkumine

Reeglid

Pakkumise kirjelduse väli on mõeldud pakkumise detailsemaks lahti kirjutamiseks. Pikema teksti mugavaks sisestamiseks klikkige kasti paremal ülaservas oleval ikoonil.
Pakkumist tehes on keelatud postitada enda kontaktandmeid (nimi, telefon, aadress jne). Me jälgime ja analüüsime pakkumisi, et vältida pettuseid ja reeglite rikkumisi.
Rikkumise puhul kasutajakonto blokeeritakse.