+ Lisa oma töö      

Otsid ehitajat "Küttesüsteemid" valdkonnast?

Parima pakkumise ja teostaja leidmiseks lisa oma töö.

Radiaatorite ja torude lisamine

ID 69517

881 vaatamist

Prindi

  • check Pakkumiste tegemine
    kuni 24.02.2022
  • check Võitja valik kuni
    03.03.2022
  • 3 Töö teostamine
    ja hinnang
Hanke lõpp: N, 24. veebruar, 2022
Maakond: Harjumaa
Muu asula: Nõmme
Tööde algus: E, 04. aprill, 2022 (Soovituslik)
Tööde lõpp: R, 29. aprill, 2022 (Soovituslik)
Ehitusmaterjalid: Töö tellija poolt
Soovin pakkumisi: Summa kogu projektile

Töö sisu

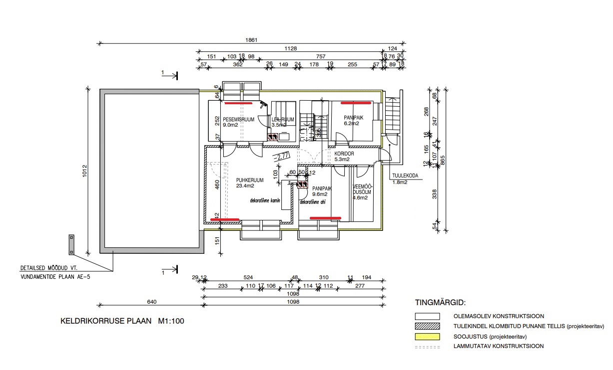
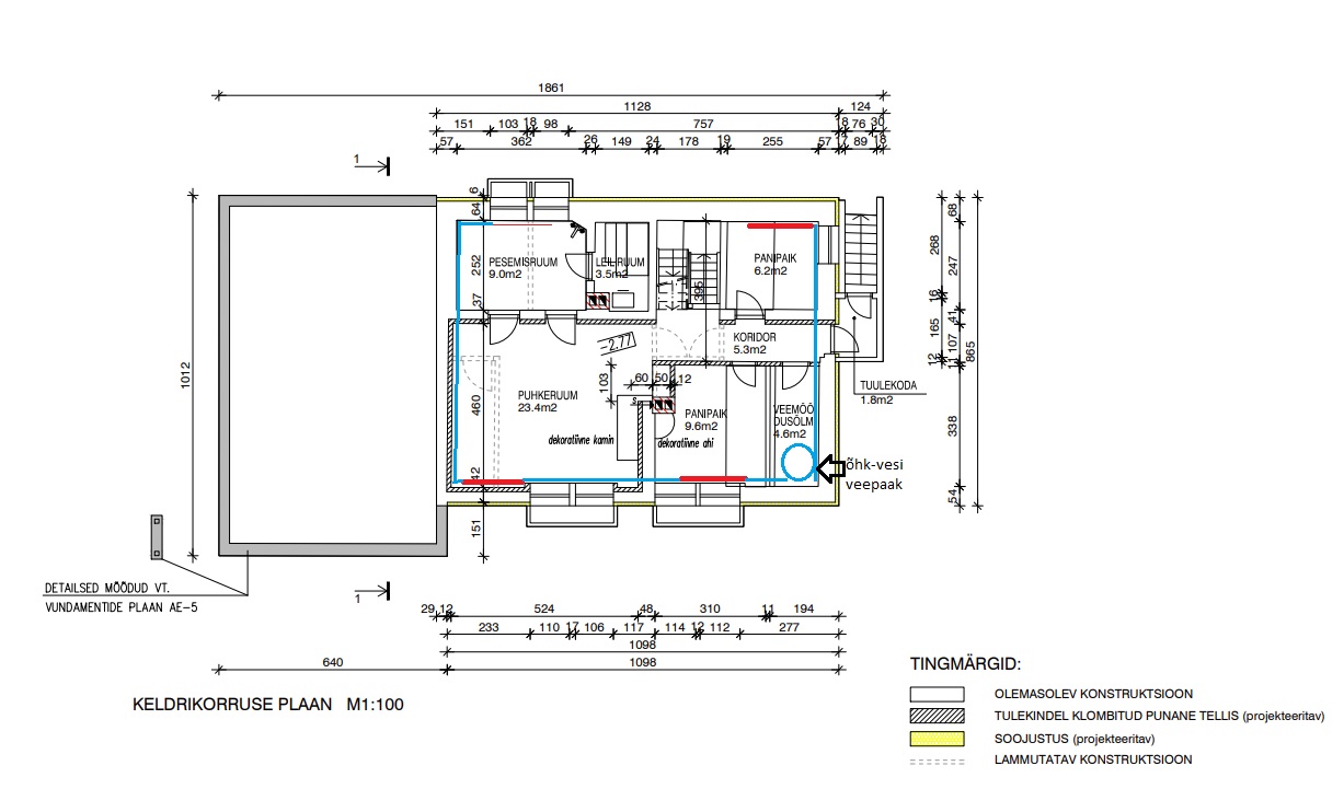
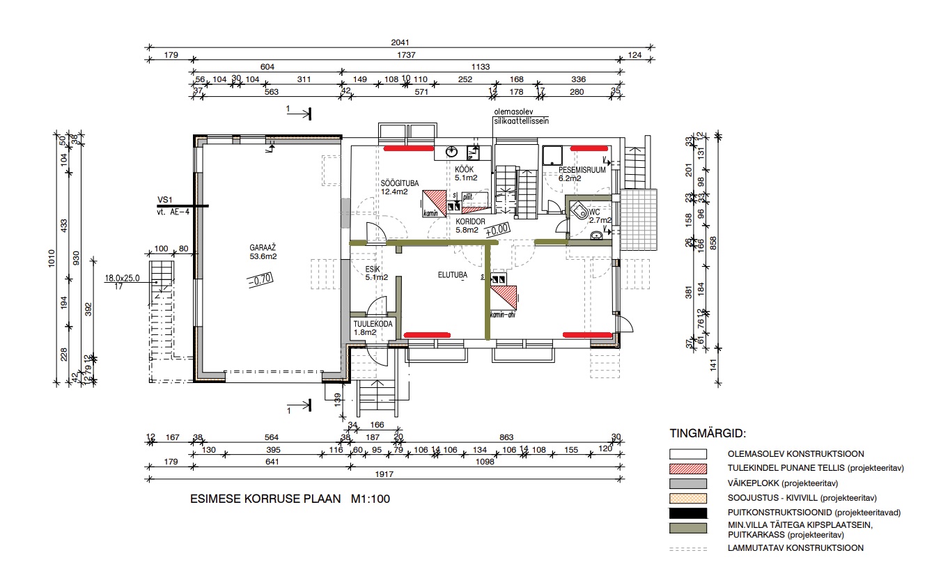
Majale lisatakse õhk-vesi küttesüsteem, sooviks pakkumist radiaatorite lisamiseks ja torutööde teostamiseks. Lisan lingina dokumendid kus on maja joonised ja kaustas "Radiaatorid" on reaalsed korruste ülesehitused ning võimalikud radiaatorite asukohad. Nägemusena keldrikorrusele tuleb tehnoruum kust jookseks torud keldrikorrusel radiaatorist radiaatorisse ning igast keldri radiaatorist üles järgmisse radiaatorisse, nii tundub vähem seintesisest tööd. Pakkumine ei pea sisaldama hilisemaid maalritöid.

Pildid, video ja failid

Hanke korraldaja: eraisik ID67573

Pakkumised

Pakkumisi kokku: 4

Ettevõte Summa Käibemaks Lisatud Vestlus
Kasutaja ikoon ID58589
Pakkuja profiil Väike nool paremale
6 980€ KM lisandub KM lisandub 22.02.2022 Vestlus (0)

Pakkumise kirjeldus:

Tere

Pakkumine sisaldab radiaatoreid Termolux (garantii 10 a), mis on projekteeritud madalatemperatuurilisteks, et oleks soojuspumbaga säästlik koos töötama.
Torustik on pressteras siis jääb visuaalselt paigaldus ilus, oleme arvestanud seinapealse torustikuga.
Hinnapakkumine sisaldab avade puurimist ja läbiviikudele rosette.
Ühendamine soojusp ... Rohkem

Kasutaja ikoon ID28626
Pakkuja profiil Väike nool paremale
6 852€ Sisaldab KM Sisaldab KM 22.02.2022 Vestlus (0)

Pakkumise kirjeldus:

Pakutud on teraspaneelradiaatorid, terastoru SANHA pressliitmikega, kõikidel radiaatoritel termostaatventiilid Heimeier või Danfoss. Radiaatorite suurused on valitud vastavalt soojuspumba temperatuurigraafikutele. Tööde kestvus ca' 5 tööpäeva. Tööd saame teostada hankes toodud ajal, kui tellijale sobib siis ka varem.

Kasutaja ikoon ID50618
Pakkuja profiil Väike nool paremale
5 900€ KM lisandub KM lisandub 22.02.2022 Vestlus (0)

Pakkumise kirjeldus:

Hind sisalsab:
- radiaatoreid, kinnitusi, termostaate, sulgelemente
- torustiku , liitmike, kinnitusi
- avade freesimist
- paigaldustöid
- transpordikulusid
- garantii 5 aastat
- saab tasuda ilma km

Kasutaja ikoon ID1572
Pakkuja profiil Väike nool paremale
5 959€ KM lisandub KM lisandub 24.02.2022 Vestlus (0)

Pakkumise kirjeldus:

Hind sisaldab 13 terasplaat radiaatorit ja trasse kuni tehnoruumini. Ettemaksu ei soovi , kuid nädalalõpus vaatame üle tehtud tööd ja materjalid, mille kohta koostame arve. Makse tähtaeg 7 päeva. Kui arvet ei soovi, võib arveldada ka sulas.

Küsimused hanke korraldajale

Küsimus: private ID28626   22.02.2022 10:01
Kas olemasolevaid radiaatoreid ei saa asendada võimsamatega?
Jääks ära probleemne torutöö ja tulemus oleks oluliselt parem.

Teavita reeglite rikkumisest

Korraldaja vastus: 22.02.2022 14:45

Kahjuks puuduvad olemasolevad radiaatorid, vabandan kui jäi ekslik mulje. Joonisel märgitu on minu nägemus radiaatorite osas.

Teavita reeglite rikkumisest

Lisa küsimus

Lisa küsimus

Minu pakkumine

Reeglid

Pakkumise kirjelduse väli on mõeldud pakkumise detailsemaks lahti kirjutamiseks. Pikema teksti mugavaks sisestamiseks klikkige kasti paremal ülaservas oleval ikoonil.
Pakkumist tehes on keelatud postitada enda kontaktandmeid (nimi, telefon, aadress jne). Me jälgime ja analüüsime pakkumisi, et vältida pettuseid ja reeglite rikkumisi.
Rikkumise puhul kasutajakonto blokeeritakse.

 

Teisi töid samas valdkonnas

Valdkonnas "Küttesüsteemid" on 2 aktiivset tööd

no-img Pilt puudub

Küttesüsteemi püstakute vahetus ja radiaatoritega ühendamine

Asukoht: Järvamaa, Paide
Aega jäänud: 3p 19h
Tehtud pakkumisi: 2

Cooper&Hunter Consol Inverter 18

Asukoht: Harjumaa, Tallinn
Aega jäänud: 19h 44 min
Tehtud pakkumisi: 1

Vanemad teated:

Vaata kõiki

Sellel veebilehel kasutatakse küpsiseid. Kasutamist jätkates nõustute küpsiste kasutamisega.

Sulge
 
Minu pakkumine

Reeglid

Pakkumise kirjelduse väli on mõeldud pakkumise detailsemaks lahti kirjutamiseks. Pikema teksti mugavaks sisestamiseks klikkige kasti paremal ülaservas oleval ikoonil.
Pakkumist tehes on keelatud postitada enda kontaktandmeid (nimi, telefon, aadress jne). Me jälgime ja analüüsime pakkumisi, et vältida pettuseid ja reeglite rikkumisi.
Rikkumise puhul kasutajakonto blokeeritakse.