+ Lisa oma töö      

Otsid ehitajat "Küttesüsteemid" valdkonnast?

Parima pakkumise ja teostaja leidmiseks lisa oma töö.

Kütte- ja ventilatsiooniprojekt renoveeritavale eramule

ID 69506

429 vaatamist

Prindi

  • check Pakkumiste tegemine
    kuni 07.03.2022
  • check Võitja valik kuni
    14.03.2022
  • 3 Töö teostamine
    ja hinnang
Hanke lõpp: E, 7. märts, 2022
Maakond: Harjumaa
Muu asula: Kangru
Tööde algus: E, 14. märts, 2022 (Soovituslik)
Tööde lõpp: P, 27. märts, 2022 (Soovituslik)
Ehitusmaterjalid: Töö tellija poolt
Soovin pakkumisi: Summa kogu projektile

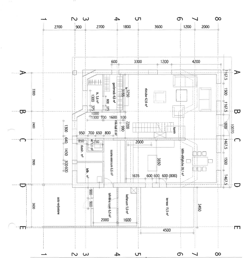
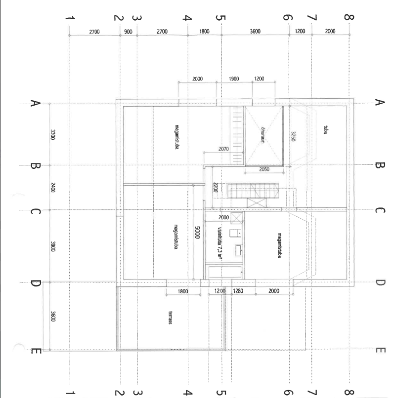
Töö sisu

Kütte- ja ventilatsiooniprojekt renoveeritavale 2-korruselisele eramule. Hoone pind kahe korruse peale kokku koos abiruumiga ca 230m2.
Esimesel korrusel:
esik ja garderoob, avatud elutuba, köök, saun ja pesuruum, WC, abiruum
Teisel korrusel:
kolm magamistuba, vannituba ja WC, avatud trepihall

Pildid, video ja failid

Hanke korraldaja: eraisik ID33425

Pakkumised

Pakkumisi kokku: 1

Ettevõte Summa Käibemaks Lisatud Vestlus
Kasutaja ikoon ID63115
Pakkuja profiil Väike nool paremale
890€ Ei ole KMKR Ei ole KMKR 25.02.2022 Vestlus (0)

Pakkumise kirjeldus:

Tere

Hinnapakkumine sisaldab kütte-, ja ventilatsioonisüsteemide põhiprojekti.

Ettemaksu ei soovi ja käibemaksu ei lisandu.

Kütte pakkumine sisaldab soojuskadude arvutamist dünaamilises tarkvaras, põrandaküttekontuuride projekteerimist või radiaatorite valimist, magistraalide jooniseid, põhiseadmete mahuloetelu ja seletuskirja. (vastava ... Rohkem

Küsimused hanke korraldajale

Hanke korraldajale ei ole veel küsimusi esitatud.

Lisa küsimus

Lisa küsimus

Minu pakkumine

Reeglid

Pakkumise kirjelduse väli on mõeldud pakkumise detailsemaks lahti kirjutamiseks. Pikema teksti mugavaks sisestamiseks klikkige kasti paremal ülaservas oleval ikoonil.
Pakkumist tehes on keelatud postitada enda kontaktandmeid (nimi, telefon, aadress jne). Me jälgime ja analüüsime pakkumisi, et vältida pettuseid ja reeglite rikkumisi.
Rikkumise puhul kasutajakonto blokeeritakse.

 

Teisi töid samas valdkonnas

Valdkonnas "Küttesüsteemid" on 2 aktiivset tööd

no-img Pilt puudub

Küttesüsteemi püstakute vahetus ja radiaatoritega ühendamine

Asukoht: Järvamaa, Paide
Aega jäänud: 3p 8h
Tehtud pakkumisi: 2

Cooper&Hunter Consol Inverter 18

Asukoht: Harjumaa, Tallinn
Aega jäänud: 8h 33 min
Tehtud pakkumisi: 1

Vanemad teated:

Vaata kõiki

Sellel veebilehel kasutatakse küpsiseid. Kasutamist jätkates nõustute küpsiste kasutamisega.

Sulge
 
Minu pakkumine

Reeglid

Pakkumise kirjelduse väli on mõeldud pakkumise detailsemaks lahti kirjutamiseks. Pikema teksti mugavaks sisestamiseks klikkige kasti paremal ülaservas oleval ikoonil.
Pakkumist tehes on keelatud postitada enda kontaktandmeid (nimi, telefon, aadress jne). Me jälgime ja analüüsime pakkumisi, et vältida pettuseid ja reeglite rikkumisi.
Rikkumise puhul kasutajakonto blokeeritakse.