+ Lisa oma töö      

Otsid ehitajat "Põrandatööd" valdkonnast?

Parima pakkumise ja teostaja leidmiseks lisa oma töö.

Betoonpõranda ehitus ja vundamendi remont-ehitus

ID 69363

813 vaatamist

Prindi

  • check Pakkumiste tegemine
    kuni 17.03.2022
  • check Võitja valik kuni
    24.03.2022
  • 3 Töö teostamine
    ja hinnang
Hanke lõpp: N, 17. märts, 2022
Maakond: Valgamaa
Muu asula: Jeti
Tööde algus: T, 01. märts, 2022 (Soovituslik)
Tööde lõpp: L, 30. aprill, 2022 (Soovituslik)
Ehitusmaterjalid: Töö tegija poolt
Soovin pakkumisi: Summa kogu projektile

Töö sisu

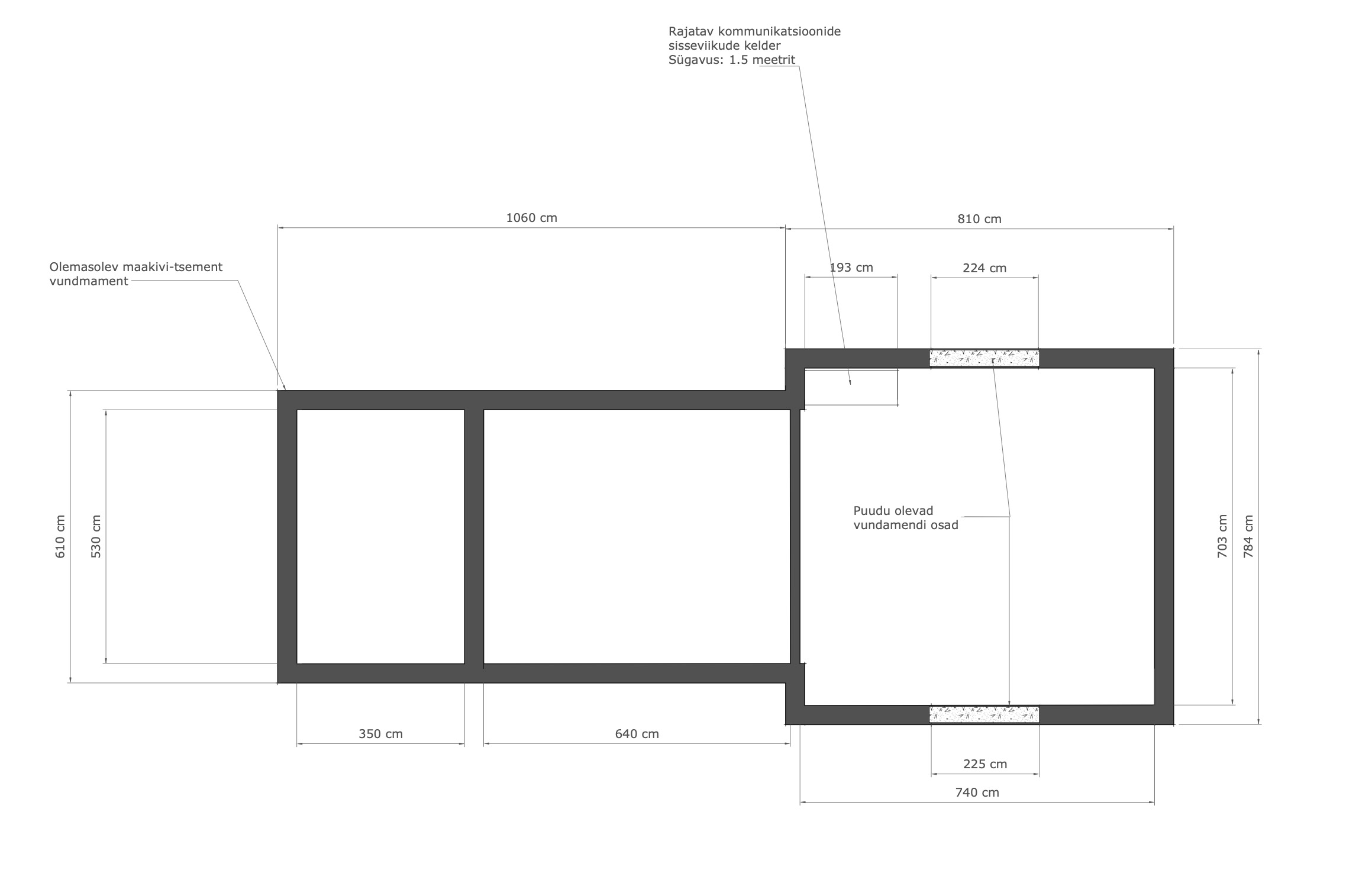
Vaja on teostada vundamendi ja põrandatööd vanas rehihoones. Hoonel on maakivi vundament, mis jaotab ta kolme suurde ruumi osasse. Tööde nimekiri:

1) kahes lõigus, kummalgi pool maja, puudub vundament täielikult (rehi uste sisse-välja sõiduteed), tuleks ehitada ka sellesse osasse vundament, millele toetub suur avatäite aken-uks.

2) rajada mini-kelder tulevase tehnoruumi nurka (1,5m sügav) ja teha välisseina läbiviigud: kanalisatsioon välja, vesi sisse, vesi välja saunamajja, elekter sisse, elekter välja saunamajja.

3) puhastada ja tasandada ruumide aluspind

4) Paigaldada äravoolutorud: köök, wc kraanikauss, wc pott, duši alus ja tuua kommunikatsioonide keldrisse

5) paigaldada põrandasoojustus ja vuugid vundamendi vahele (2x10cm+kile+armatuur)

6) pärast küttetorude paigaldamist toestada põranda betoontööd (küttetorude paigaldamine ei ole hanke osa)

Lisaks võib pakkuda järgnevaid lisatöid ( ei pea olema fikseeritud hinnaga):
1) ruumi eelnevat tühjendamist vanast puitmaterjalist, tellistest ja maakividest ning nende ladustamist õue peal
2) vana vundamendi osade remontimist
3) palkseina väikest tõstmist, et hüdroisolatsioon alla panna
4) kommunikatsioonide (elekter, vesi) viimist saunamajja

Arvestada tuleks:
1) kohapeal ei ole hetkel elektrit, vett saab 600 meetri kauguselt talust ja/või järvest
2) hinna sees võiks olla kõik kulud (transport, töötajate elamine kui seda on vaja)
3) tööd on vaja teha kahes etapis, sest vahepeal tuleb paigaldada küttetorud

Pakkumises palun arvestada, et tööd on lepingu ja ülekandega.

Pildid, video ja failid

Hanke korraldaja: ettevõte ID42643

Pakkumised

Pakkumisi kokku: 1

Ettevõte Summa Käibemaks Lisatud Vestlus
Kasutaja ikoon ID55746
Pakkuja profiil Väike nool paremale
26 400€ Ei ole KMKR Ei ole KMKR 17.03.2022 Vestlus (0)

Pakkumise kirjeldus:

Tere,

Oleme meeskond kes teab ja tunneb oma ala töid. Meie teenusega kaasneb ka garantii 2 aastat. Saame aidata ka teiste erinevate töödega kui teil peaks vaja minema.

Omame tööde tegemiseks üldehituse MTR tegevusluba. Leping + garantii

Olemas ka referentsid!

Küsimused hanke korraldajale

Hanke korraldajale ei ole veel küsimusi esitatud.

Lisa küsimus

Lisa küsimus

Minu pakkumine

Reeglid

Pakkumise kirjelduse väli on mõeldud pakkumise detailsemaks lahti kirjutamiseks. Pikema teksti mugavaks sisestamiseks klikkige kasti paremal ülaservas oleval ikoonil.
Pakkumist tehes on keelatud postitada enda kontaktandmeid (nimi, telefon, aadress jne). Me jälgime ja analüüsime pakkumisi, et vältida pettuseid ja reeglite rikkumisi.
Rikkumise puhul kasutajakonto blokeeritakse.

 

Teisi töid samas valdkonnas

Valdkonnas "Põrandatööd" on 2 aktiivset tööd

Talumaja põrandate valamine/ehitus koos küttetorustiku paigaldusega

Asukoht: Raplamaa, Purila
Aega jäänud: 16p 8h
Tehtud pakkumisi: 2

Põrandakütte paigaldus ja põrandavalu (kips või betoon)

Asukoht: Saaremaa, Muhu vald
Aega jäänud: 8h 53 min
Tehtud pakkumisi: 1

Vanemad teated:

Vaata kõiki

Sellel veebilehel kasutatakse küpsiseid. Kasutamist jätkates nõustute küpsiste kasutamisega.

Sulge
 
Minu pakkumine

Reeglid

Pakkumise kirjelduse väli on mõeldud pakkumise detailsemaks lahti kirjutamiseks. Pikema teksti mugavaks sisestamiseks klikkige kasti paremal ülaservas oleval ikoonil.
Pakkumist tehes on keelatud postitada enda kontaktandmeid (nimi, telefon, aadress jne). Me jälgime ja analüüsime pakkumisi, et vältida pettuseid ja reeglite rikkumisi.
Rikkumise puhul kasutajakonto blokeeritakse.