+ Lisa oma töö      

Otsid ehitajat "Vundamenditööd" valdkonnast?

Parima pakkumise ja teostaja leidmiseks lisa oma töö.

Vundamenditööd, soklimüür ja vahelagi

ID 69312

433 vaatamist

Prindi

  • check Pakkumiste tegemine
    kuni 22.03.2022
  • check Võitja valik kuni
    29.03.2022
  • 3 Töö teostamine
    ja hinnang
Hanke lõpp: T, 22. märts, 2022
Maakond: Harjumaa
Linn: Saue
Tööde algus: E, 28. märts, 2022 (Soovituslik)
Tööde lõpp: N, 28. aprill, 2022 (Soovituslik)
Ehitusmaterjalid: Töö tellija poolt
Soovin pakkumisi: Summa kogu projektile

Töö sisu

Taldmiku aluse killustikupadja ehitus ja tihendamine.
Saalungite ehitus ja demontaaž, armeerimine
Taldmike betoneerimine

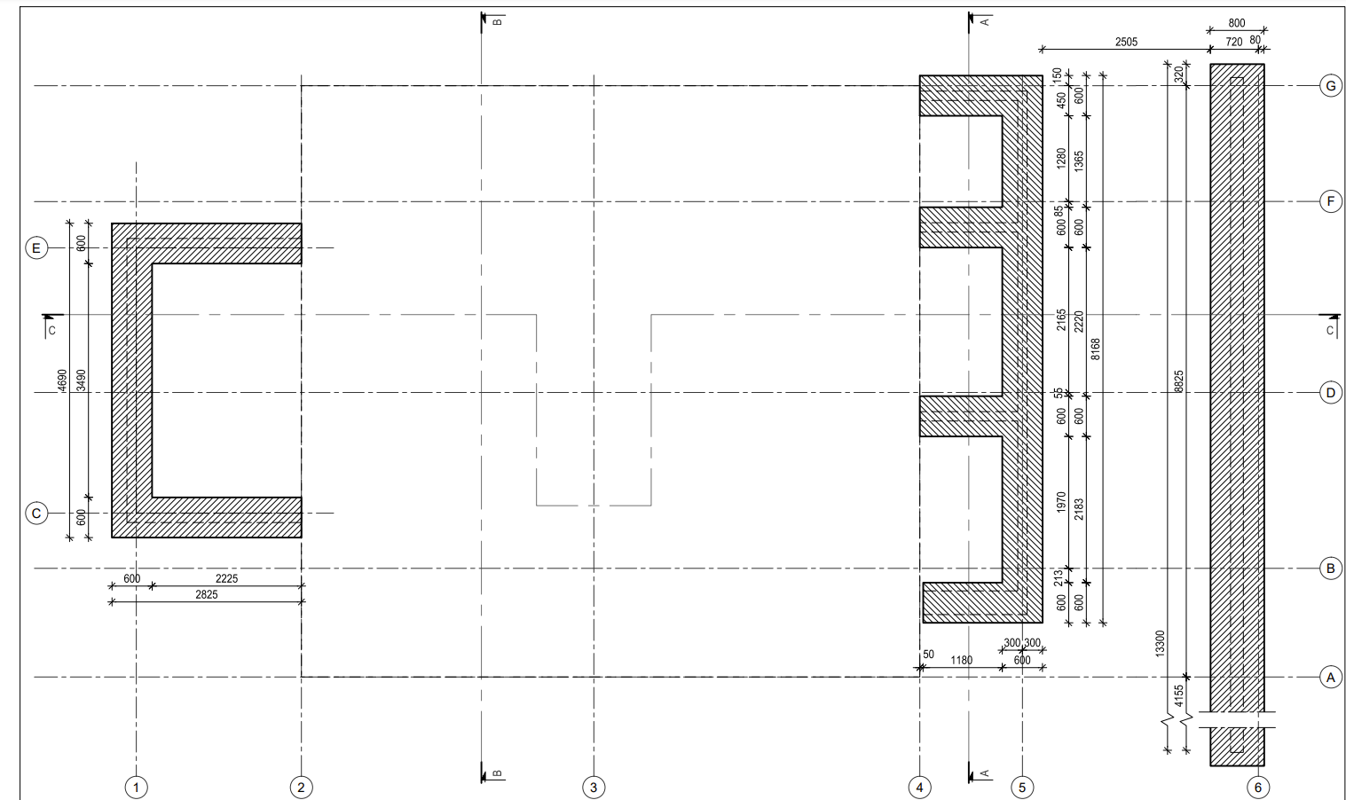
* Tuulekoda ja veranda vundament: 24,5 jm (15,3 + 9,2). Vundamendi kandev müür ca 30 m2 140 mm Columbia või alternatiivne betoonõõnesplokk. Müür tuleb armeerida ja täisbetoneerida.

* Tulemüür: vundament ca 13 jm. Müür ca 14m2 190 mm Columbia või alternatiivne betoonõõnesplokk. Müür tuleb armeerida ja täisbetoneerida (maa alune osa).


Taldmiku ja müüritise kohta täpsem info joonistel.


* Vahelagi
Tegemist on paekivi vundamendiga. Uus vahelagi tuleb vana peale, vahel 50mm soojustus, kahekordne 0,2mm kile.
* R/B vahelagi:
Armeerimine kahekihilise 10*150'150 võrguga, koos välisserva armeeringuga.
- BETOON C30/37
- BETOONI MAHT 17 m3
- KAITSEKIHT 25mm
- ARMATUUR B500B
- ARMATUURI KOGUS ~1.3t

Täpsem info palun vaadata joonistelt või küsida juurde.

Materjalid, kaevetöö tellija poolt või vajadusel kulupõhiselt. Huvitab eelkõige töö hind. Võib pakkuda hinda ka siis, kui huvi pakkuks ainult mingi konkreetne töö - näiteks vahelaegi ja taldmik.
Sobivusel võimalik projektiga järgmistes etappides edasi minna.

Pildid, video ja failid

Hanke korraldaja: eraisik ID45117

Pakkumised

Pakkumisi kokku: 0

Küsimused hanke korraldajale

Hanke korraldajale ei ole veel küsimusi esitatud.

Lisa küsimus

Lisa küsimus

Minu pakkumine

Reeglid

Pakkumise kirjelduse väli on mõeldud pakkumise detailsemaks lahti kirjutamiseks. Pikema teksti mugavaks sisestamiseks klikkige kasti paremal ülaservas oleval ikoonil.
Pakkumist tehes on keelatud postitada enda kontaktandmeid (nimi, telefon, aadress jne). Me jälgime ja analüüsime pakkumisi, et vältida pettuseid ja reeglite rikkumisi.
Rikkumise puhul kasutajakonto blokeeritakse.

 

Vanemad teated:

Vaata kõiki

Sellel veebilehel kasutatakse küpsiseid. Kasutamist jätkates nõustute küpsiste kasutamisega.

Sulge
 
Minu pakkumine

Reeglid

Pakkumise kirjelduse väli on mõeldud pakkumise detailsemaks lahti kirjutamiseks. Pikema teksti mugavaks sisestamiseks klikkige kasti paremal ülaservas oleval ikoonil.
Pakkumist tehes on keelatud postitada enda kontaktandmeid (nimi, telefon, aadress jne). Me jälgime ja analüüsime pakkumisi, et vältida pettuseid ja reeglite rikkumisi.
Rikkumise puhul kasutajakonto blokeeritakse.