+ Lisa oma töö      

Otsid ehitajat "Arhitektibürood" valdkonnast?

Parima pakkumise ja teostaja leidmiseks lisa oma töö.

Hange on lõppenud!

Võitjaks osutus kasutaja ID 42152

Eramu ja garaaži projekteerimine

ID 69256

842 vaatamist

Prindi

  • check Pakkumiste tegemine
    kuni 26.02.2022
  • check Võitja valik kuni
    05.03.2022
  • 3 Töö teostamine
    ja hinnang
Hanke lõpp: L, 26. veebruar, 2022
Maakond: Pärnumaa
Muu asula: Marksa
Tööde algus: T, 01. märts, 2022 (Soovituslik)
Tööde lõpp: L, 30. aprill, 2022 (Soovituslik)
Ehitusmaterjalid: Töö tellija poolt
Soovin pakkumisi: Summa kogu projektile

Töö sisu

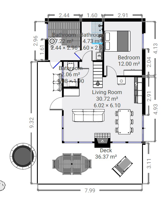
Eramu ja garaaži arhitektuurse osa eelprojektid koos ehitusloa taotlemise läbiviimisega EHR-is. Viilkatusega elamu ehitusalune pind ca. 100 m2, 1,5 korruseline, avatud katusealusega. Garaži ehitusalune pind ca. 70m2 -viilkatusega 1 korruseline. Kaasa arvatud krundi maastiku planeerimine - kraavid (ca. 130 jm), tiigid (300+700 m2), juurdepääsu tee (160 jm. maanteaameti kooskõlastus mahasõiduks olemas). Projekteerimistingimused olemas, geoalus töös.

Pildid, video ja failid

Hanke korraldaja: eraisik ID67431

Pakkumised

Pakkumisi kokku: 1

Ettevõte Summa Käibemaks Lisatud Vestlus
Kasutaja ikoon ID42152
Pakkuja profiil Väike nool paremale
2 000€ Ei ole KMKR Ei ole KMKR 12.02.2022 Vestlus (2)

Pakkumise kirjeldus:

Ehitusprojekt eelprojekti staadiumis (arh-eh osa koos eriosadega) - elamu, abihoone, tiigid-kraavid koos haljastuse ja juurdepääsuteede lahendusega.

Pakkumsihind sisaldab:
Seletuskiri
Energiaarvutused
Asendiplaan
Vund plaan
Korruse plaan
KAtuse plaan
Hoone lõige
Hoone vaated
Avatäidete joonised
Jm asjakohased vajalikud joonised

Kooskõlas ... Rohkem

Küsimused hanke korraldajale

Hanke korraldajale ei ole veel küsimusi esitatud.

Lisa küsimus

Lisa küsimus

Minu pakkumine

Reeglid

Pakkumise kirjelduse väli on mõeldud pakkumise detailsemaks lahti kirjutamiseks. Pikema teksti mugavaks sisestamiseks klikkige kasti paremal ülaservas oleval ikoonil.
Pakkumist tehes on keelatud postitada enda kontaktandmeid (nimi, telefon, aadress jne). Me jälgime ja analüüsime pakkumisi, et vältida pettuseid ja reeglite rikkumisi.
Rikkumise puhul kasutajakonto blokeeritakse.

 

Teisi töid samas valdkonnas

Valdkonnas "Arhitektibürood" on 4 aktiivset tööd

no-img Pilt puudub

Ehitusprojekt

Asukoht: Pärnumaa, Lemmetsa
Aega jäänud: 2p 7h
Tehtud pakkumisi: 3

36 kohalise hooldekodu projekti koostamine

Asukoht: Pärnumaa, Pärnu
Aega jäänud: 29p 7h
Tehtud pakkumisi: 2

Vanemad teated:

Vaata kõiki

Sellel veebilehel kasutatakse küpsiseid. Kasutamist jätkates nõustute küpsiste kasutamisega.

Sulge
 
Minu pakkumine

Reeglid

Pakkumise kirjelduse väli on mõeldud pakkumise detailsemaks lahti kirjutamiseks. Pikema teksti mugavaks sisestamiseks klikkige kasti paremal ülaservas oleval ikoonil.
Pakkumist tehes on keelatud postitada enda kontaktandmeid (nimi, telefon, aadress jne). Me jälgime ja analüüsime pakkumisi, et vältida pettuseid ja reeglite rikkumisi.
Rikkumise puhul kasutajakonto blokeeritakse.