+ Lisa oma töö      

Otsid ehitajat "Siseviimistlustööd" valdkonnast?

Parima pakkumise ja teostaja leidmiseks lisa oma töö.

Hange on lõppenud!

Võitjaks osutus kasutaja ID 65531

Korraldaja hinnang tehtud tööle

5.0
23.03.2022
Töökiirus: 12345
Kvaliteet: 12345
Hind: 12345

Minu arvates väga kvaliteetne töö, suurepärane ja väga abivalmis teenindus ning hästi mõistliku hinnaga. Kõik toimis nagu kokku leppisime ja enamgi veel :) Lahendasid väga mitu probleemi korraga ära. Suur aitäh! Olen väga rahul. - Siim K.

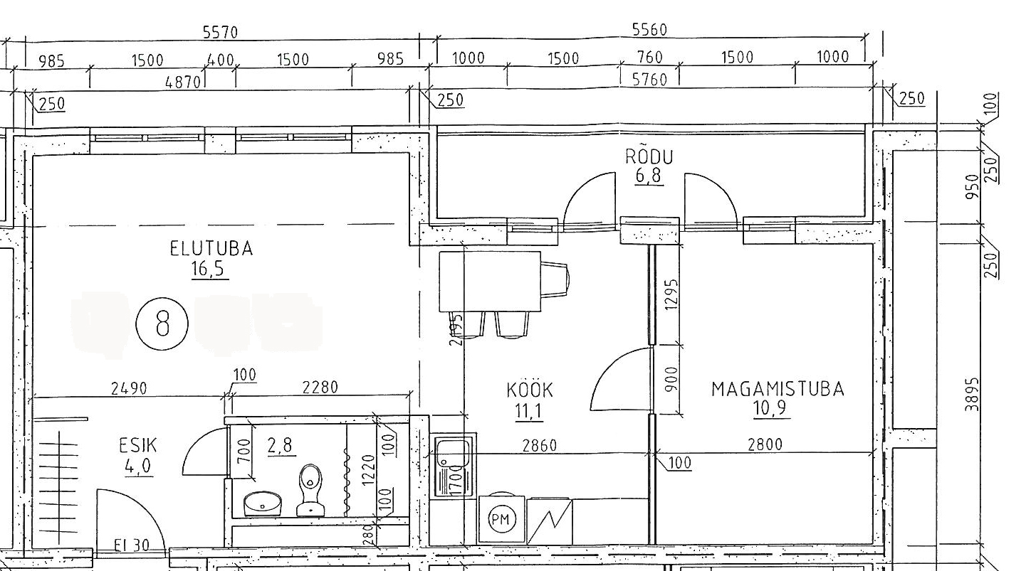
Korteri pisiremont Pärnus

ID 69196

1414 vaatamist

Prindi

  • check Pakkumiste tegemine
    kuni 16.02.2022
  • check Võitja valik kuni
    23.02.2022
  • 3 Töö teostamine
    ja hinnang
Hanke lõpp: K, 16. veebruar, 2022
Maakond: Pärnumaa
Linn: Pärnu
Tööde algus: N, 10. märts, 2022 (Soovituslik)
Tööde lõpp: N, 31. märts, 2022 (Soovituslik)
Ehitusmaterjalid: Töö tegija poolt
Soovin pakkumisi: Summa kogu projektile

Töö sisu

2-toaline korter Pärnus. Hoone on üsna uus, ehitusaasta 2006. a.
Soovin pisiremonti (väike värskendus). Korter on muidu heas korras.
Maalritööd -
1) värvitud seinapinda kokku ca 50 m3. Pahteldamist vaja teha minimaalselt (vt fotod). Vajalik värvida kogu seinapind üle 2 korda.
2) Elutoa otsasein (ca 11 m2) on tapeedi all. Selles seinas vaja vahetada tapeet.
3) Põrandaliistud - vajalik paigaldada elutoas ja magamistoas kogu perimeetri ulatuses (kokku ca 32 m).

Pildid, video ja failid

Hanke korraldaja: eraisik ID63505

Pakkumised

Pakkumisi kokku: 18

Ettevõte Summa Käibemaks Lisatud Vestlus
Kasutaja ikoon ID66812
Pakkuja profiil Väike nool paremale
850€ Ei ole KMKR Ei ole KMKR 09.02.2022 Vestlus (0)

Pakkumise kirjeldus:

Tere!

Pakkumine sisaldab hankes kirjeldatud mahus :

1) värvitud seinapinda kokku ca 50 m3. Pahteldamist vaja teha minimaalselt (vt fotod). Vajalik värvida kogu seinapind üle 2 korda.
2) Elutoa otsasein (ca 11 m2) on tapeedi all. Selles seinas vaja vahetada tapeet.
3) Põrandaliistud - vajalik paigaldada elutoas ja magamistoas kogu perimeetri ula ... Rohkem

Kasutaja ikoon ID49995
Pakkuja profiil Väike nool paremale
1 650€ Ei ole KMKR Ei ole KMKR 09.02.2022 Vestlus (0)

Pakkumise kirjeldus:

Tere,
Hind sisaldab:
1) värvitud seinapinda kokku ca 50 m3. Pahteldamist vaja teha minimaalselt (vt fotod). Vajalik värvida kogu seinapind üle 2 korda.
2) Elutoa otsasein (ca 11 m2) on tapeedi all. Selles seinas vaja vahetada tapeet.
3) Põrandaliistud - vajalik paigaldada elutoas ja magamistoas kogu perimeetri ulatuses (kokku ca 32 m).

Põranda ... Rohkem

Kasutaja ikoon ID66999
Pakkuja profiil Väike nool paremale
500€ Sisaldab KM Sisaldab KM 09.02.2022 Vestlus (0)

Pakkumise kirjeldus:

Tere
Kõik materjalid Teie poolt. Pakkumine ainult töörahale. Hinnas kõik tööd Teie nimekirjast. Tööd saan alustada kas 21.02.2022 või siis 14.02.2022. Tööde kestvus 3-4 päeva. Maksmine peale tööd sularahas,arve alusel. KM ei lisandu. Lisaküsimustele vastan alati.
Lugupidamisega

Kasutaja ikoon ID59057
Pakkuja profiil Väike nool paremale
1 200€ Ei ole KMKR Ei ole KMKR 09.02.2022 Vestlus (0)

Pakkumise kirjeldus:

Tere

Pakkumine nimetatud töödele ja materjalile.

Lugupidamisega

Kasutaja ikoon ID47717
Pakkuja profiil Väike nool paremale
16 000€ Ei ole KMKR Ei ole KMKR 09.02.2022 Vestlus (0)
Kasutaja ikoon ID65531
Pakkuja profiil Väike nool paremale
540€ Ei ole KMKR Ei ole KMKR 09.02.2022 Vestlus (0)

Pakkumise kirjeldus:

Tere, pakkumine soovitud töödele koos materjalidega, tööaeg 4-5 päeva, leping, garantii 3 aastat.

Kasutaja ikoon ID55582
Pakkuja profiil Väike nool paremale
1 111€ Sisaldab KM Sisaldab KM 09.02.2022 Vestlus (0)

Pakkumise kirjeldus:

Tere!
Meie pakkumineTeie kirjeldatud töödele.
Lugupidamisega
HN

Kasutaja ikoon ID56753
Pakkuja profiil Väike nool paremale
1 700€ KM lisandub KM lisandub 09.02.2022 Vestlus (0)

Pakkumise kirjeldus:

Tere, hind vastavalt hankes kirjeldatule, materjalid hinna sees.
Sularahas arveldades saame teha ilma km.
Lgp

Kasutaja ikoon ID59430
Pakkuja profiil Väike nool paremale
2 600€ KM lisandub KM lisandub 10.02.2022 Vestlus (0)
Kasutaja ikoon ID67067
Pakkuja profiil Väike nool paremale
2 500€ Ikoon kell Ei ole KMKR Ei ole KMKR 10.02.2022 Vestlus (0)

Pakkumise kirjeldus:

Tere,

Teen endapoolse hinnapakkumise:
1. Liistude paigaldamine
2. Värvimine 2 korda
3. Teipimis ja katmistööd
4. Tapeedi eemaldamine + tapeetimine
5. Hind sisaldab ka teippe, katmiskilesid, Tikkurila Siro 7 valget värvi ja tapeediliimi Kiilto jm töövahendeid.
6. Liistud ning vajaminevaid kinnitustarvikuid.

Töenäoliselt tuleb töö teost ... Rohkem

Kasutaja ikoon ID55548
Pakkuja profiil Väike nool paremale
790€ Sisaldab KM Sisaldab KM 10.02.2022 Vestlus (0)

Pakkumise kirjeldus:

Tere. Teen pakkumise.
Värvimine 50m2 (värv minu poolt).
Tapeetimine (tapeet teie poolt).
Liistud (teie poolt) aga kinnitus asjad minu poolt.
Kui kõik sobib siis saaks kas jooksva või järgmise nädala jooksul töö ära teha.

Kasutaja ikoon ID37252
Pakkuja profiil Väike nool paremale
840€ Ei ole KMKR Ei ole KMKR 10.02.2022 Vestlus (0)

Pakkumise kirjeldus:

Pakkumine tööle koos materjalidega va tapeet.

Kasutaja ikoon ID49185
Pakkuja profiil Väike nool paremale
2 000€ Ikoon kell Sisaldab KM Sisaldab KM 11.02.2022 Vestlus (0)

Pakkumise kirjeldus:

Tere. Materjal ja töö. Garantii tehtud töödele, siseviimistlusega tegelenud 20 aastat. . Lgp Viljar.

Kasutaja ikoon ID67164
Pakkuja profiil Väike nool paremale
1 950€ Ei ole KMKR Ei ole KMKR 14.02.2022 Vestlus (0)

Pakkumise kirjeldus:

Tere!

Pakkumine sisaldab vajalike materjale ja vahendeid. Võimalik alustada töödega juba järgmisel nädalal.

Kõike paremat!
Asko

Kasutaja ikoon ID47122
Pakkuja profiil Väike nool paremale
2 100€ Ei ole KMKR Ei ole KMKR 16.02.2022 Vestlus (0)

Pakkumise kirjeldus:

Töö koos materjaliga.
Tapeet ei kuulu hinna sisse.
Töö puhas Ja kvaliteetne

Kasutaja ikoon ID50979
Pakkuja profiil Väike nool paremale
1 500€ Ei ole KMKR Ei ole KMKR 16.02.2022 Vestlus (0)

Pakkumise kirjeldus:

Leping,kvaliteet,garantii5aastat,ettemaksu ei soovi,km.ei lisandu

Kasutaja ikoon ID65879
Pakkuja profiil Väike nool paremale
760€ Ei ole KMKR Ei ole KMKR 16.02.2022 Vestlus (0)

Pakkumise kirjeldus:

Tere.
Hinnapakkumine sisaldab 50m2 pahtliparandusi ja värvimist 2 kihis.11m2 tapeedi eemaldus ja uue tapeedi paigaldus.Uued põranda liistud ja liistude paigaldus.Leping ja garantii tehtud töödele 2 aastat.
Parimat!

Kasutaja ikoon ID62029
Pakkuja profiil Väike nool paremale
1 000€ Sisaldab KM Sisaldab KM 16.02.2022 Vestlus (0)

Pakkumise kirjeldus:

Töö kvaliteetne teostamine vastavalt hankele. Vajaminevad kulumaterjalid hinnas.

Parimatega,
A

Küsimused hanke korraldajale

Küsimus: private ID65531   09.02.2022 15:27
Tere, kas möödel jääb sisse tööde ajaks, ehk vaja kinni katta, milliseid liiste soovite, puit, pvc, ?

Teavita reeglite rikkumisest

Korraldaja vastus: 09.02.2022 17:47

Tere,
Mööbel ei jää sisse, välja arvatud köögimööbel ja esikukapp.
Põrand tuleks kinni katta.
Liistud võiks olla põrandaga sama tooni (põrand on laminaat) ja kvaliteetsed; võib olla nii puit või pvc - see mis on soodsam.

Teavita reeglite rikkumisest

Küsimus: private ID67067   09.02.2022 18:11
Kas liistud ostate ise?

Teavita reeglite rikkumisest

Korraldaja vastus: 10.02.2022 08:36

Tere,
Mõtlesin nii, et pakkumine võiks sisaldada kõike materjale (sh liistud). Liistu toon võialikult sarnane põrandaga. Põrandakate on laminaatparkett. Seega liist ei pea olema puit, võib olla ka pvc.

Teavita reeglite rikkumisest

Küsimus: private ID62029   14.02.2022 11:13
Tere, Kas teil tapeet välja valitud ja kui ei, siis millise hinnaklassiga ja tapeedi materjaliga võiks arvestada pakkumist tehes?

Teavita reeglite rikkumisest

Korraldaja vastus: 15.02.2022 21:19

Tere,
Tapeeti kulub väga vähe, sest ainult üks sein (otsasein)on tapeedi all.
Ma ei ole veel välja valinud ja selle ostan ise. Nii et tapeedi hinnaga ei pea pakkumises arvestama.

Teavita reeglite rikkumisest

Lisa küsimus

Lisa küsimus

Minu pakkumine

Reeglid

Pakkumise kirjelduse väli on mõeldud pakkumise detailsemaks lahti kirjutamiseks. Pikema teksti mugavaks sisestamiseks klikkige kasti paremal ülaservas oleval ikoonil.
Pakkumist tehes on keelatud postitada enda kontaktandmeid (nimi, telefon, aadress jne). Me jälgime ja analüüsime pakkumisi, et vältida pettuseid ja reeglite rikkumisi.
Rikkumise puhul kasutajakonto blokeeritakse.

 

Teisi töid samas valdkonnas

Valdkonnas "Siseviimistlustööd" on 23 aktiivset tööd

no-img Pilt puudub

Seinte ja lagede värvimine

Asukoht: Harjumaa, Tallinn
Aega jäänud: 1p 3h
Tehtud pakkumisi: 6

Vannitoa ja wc täielik renoveerimine

Asukoht: Tartumaa, Tartu
Aega jäänud: 3h 17 min
Tehtud pakkumisi: 4

Vanemad teated:

Vaata kõiki

Sellel veebilehel kasutatakse küpsiseid. Kasutamist jätkates nõustute küpsiste kasutamisega.

Sulge
 
Minu pakkumine

Reeglid

Pakkumise kirjelduse väli on mõeldud pakkumise detailsemaks lahti kirjutamiseks. Pikema teksti mugavaks sisestamiseks klikkige kasti paremal ülaservas oleval ikoonil.
Pakkumist tehes on keelatud postitada enda kontaktandmeid (nimi, telefon, aadress jne). Me jälgime ja analüüsime pakkumisi, et vältida pettuseid ja reeglite rikkumisi.
Rikkumise puhul kasutajakonto blokeeritakse.