+ Lisa oma töö      

Otsid ehitajat "Üldehitus" valdkonnast?

Parima pakkumise ja teostaja leidmiseks lisa oma töö.

Hange on lõppenud!

Võitjaks osutus kasutaja ID 63890

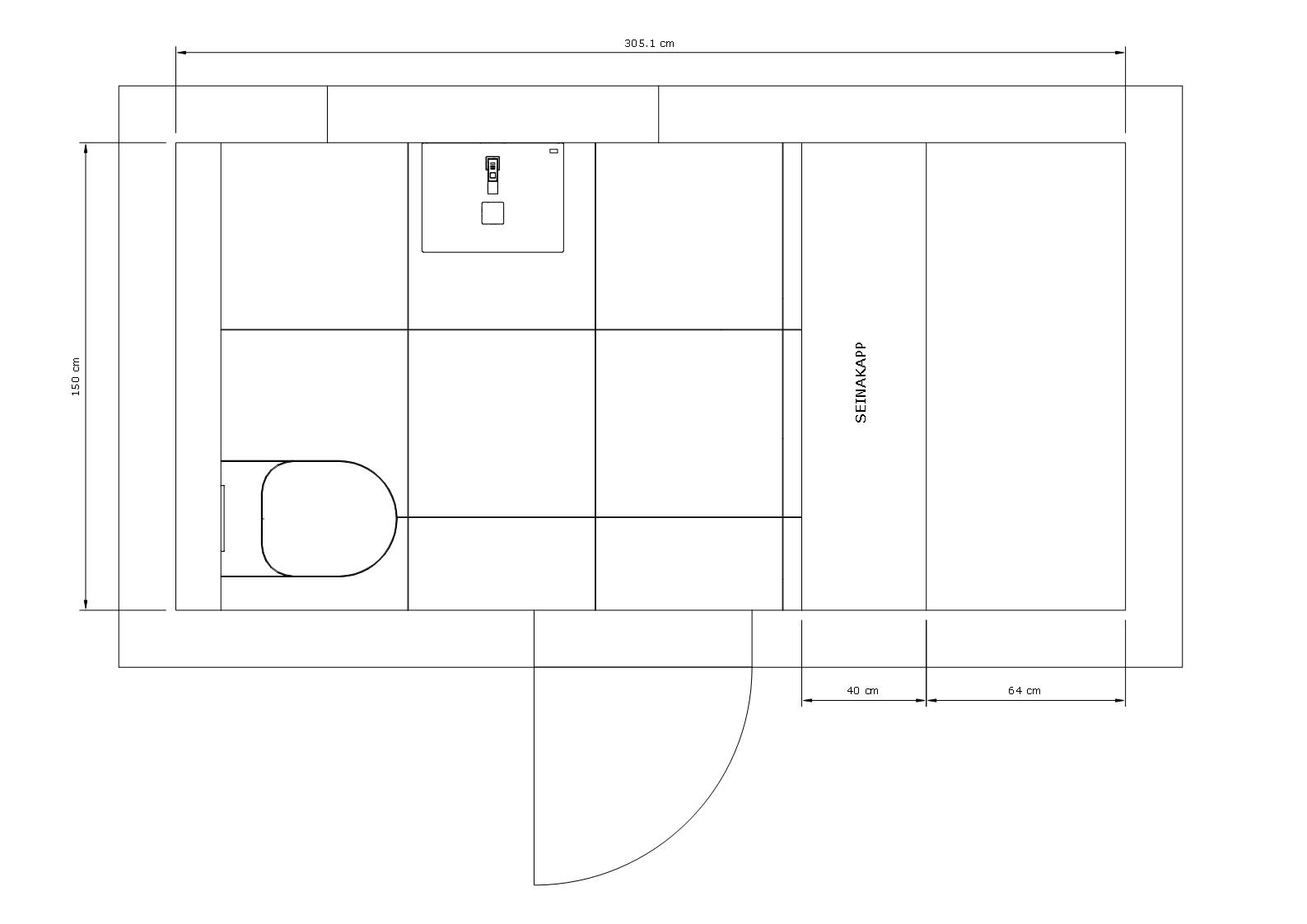
WC remont

ID 69015

923 vaatamist

Prindi

  • check Pakkumiste tegemine
    kuni 05.03.2022
  • check Võitja valik kuni
    12.03.2022
  • 3 Töö teostamine
    ja hinnang
Hanke lõpp: L, 5. märts, 2022
Maakond: Raplamaa
Muu asula: Sooaluste
Tööde algus: P, 01. mai, 2022 (Soovituslik)
Tööde lõpp: T, 31. mai, 2022 (Soovituslik)
Ehitusmaterjalid: Töö tellija poolt
Soovin pakkumisi: Summa kogu projektile

Töö sisu

Põrand(valamine, EPS soojustus, elektriline põrandaküte, plaatimine, plaaditava põrandaluugi 120x90 paigaldus)
Seinad(karkass, välisseina soojustus villaga, kips)
Santehnilised tööd(äravoolu torustik, alupex torud, seinasisese wc-raami ja -poti paigaldus, valamu)
Ukselengi, aknalaua paigaldus.
Ise teostame:
kipsi viimistlus,
lae karkass ja laudis,
lammutustööd ja prahi utiliseerimine.
Elektritööd teostab elektrik.

Pildid, video ja failid

Hanke korraldaja: eraisik ID52950

Pakkumised

Pakkumisi kokku: 3

Ettevõte Summa Käibemaks Lisatud Vestlus
Kasutaja ikoon ID57867
Pakkuja profiil Väike nool paremale
3 500€ Ei ole KMKR Ei ole KMKR 05.02.2022 Vestlus (0)

Pakkumise kirjeldus:

Tere.
Pakkumine sisaldab tööraha vastavalt teie kirjeldusele. Vajadusel aitame materjali transpordiga(kaubikuga).Lisatööd kokkuleppel. Täpsem info selgub peale objekti üle vaatamist.
Tehtud töödele pikk garantii ja kvaliteet garanteeritud. Töödega saame alustada ette nähtud ajal. Omame väga suurt kogemust vannitubade renoveerimisel.
Küsimuste ... Rohkem

Kasutaja ikoon ID63890
Pakkuja profiil Väike nool paremale
3 200€ Ei ole KMKR Ei ole KMKR 05.02.2022 Vestlus (0)

Pakkumise kirjeldus:

Pakkumine eelnimetatud kirjeldusele!

Kasutaja ikoon ID55582
Pakkuja profiil Väike nool paremale
3 333€ Sisaldab KM Sisaldab KM 06.02.2022 Vestlus (0)

Pakkumise kirjeldus:

Yere!
Meie pakkumine Teie kirjeldatud töödele.
Lugupidamisega
HN

Küsimused hanke korraldajale

Hanke korraldajale ei ole veel küsimusi esitatud.

Lisa küsimus

Lisa küsimus

Minu pakkumine

Reeglid

Pakkumise kirjelduse väli on mõeldud pakkumise detailsemaks lahti kirjutamiseks. Pikema teksti mugavaks sisestamiseks klikkige kasti paremal ülaservas oleval ikoonil.
Pakkumist tehes on keelatud postitada enda kontaktandmeid (nimi, telefon, aadress jne). Me jälgime ja analüüsime pakkumisi, et vältida pettuseid ja reeglite rikkumisi.
Rikkumise puhul kasutajakonto blokeeritakse.

 

Teisi töid samas valdkonnas

Valdkonnas "Üldehitus" on 27 aktiivset tööd

Terassi õlitamine, 13,7 ruutu

Asukoht: Harjumaa, Saue
Aega jäänud: 5p 16h
Tehtud pakkumisi: 4

Eramaja ehitus

Asukoht: Harjumaa, Suurupi
Aega jäänud: 4p 16h
Tehtud pakkumisi: 4

Vanemad teated:

Vaata kõiki

Sellel veebilehel kasutatakse küpsiseid. Kasutamist jätkates nõustute küpsiste kasutamisega.

Sulge
 
Minu pakkumine

Reeglid

Pakkumise kirjelduse väli on mõeldud pakkumise detailsemaks lahti kirjutamiseks. Pikema teksti mugavaks sisestamiseks klikkige kasti paremal ülaservas oleval ikoonil.
Pakkumist tehes on keelatud postitada enda kontaktandmeid (nimi, telefon, aadress jne). Me jälgime ja analüüsime pakkumisi, et vältida pettuseid ja reeglite rikkumisi.
Rikkumise puhul kasutajakonto blokeeritakse.