+ Lisa oma töö      

Otsid ehitajat "Küttesüsteemid" valdkonnast?

Parima pakkumise ja teostaja leidmiseks lisa oma töö.

Kütte+veeprojekt ehitatavale majale - maasoojuspump, põrandaküte + saunamaja

ID 68998

466 vaatamist

Prindi

  • check Pakkumiste tegemine
    kuni 03.02.2022
  • check Võitja valik kuni
    10.02.2022
  • 3 Töö teostamine
    ja hinnang
Hanke lõpp: N, 3. veebruar, 2022
Maakond: Harjumaa
Linn: Tallinn
Tööde algus: T, 01. veebruar, 2022 (Soovituslik)
Tööde lõpp: R, 11. veebruar, 2022 (Soovituslik)
Ehitusmaterjalid: Töö tellija poolt
Soovin pakkumisi: Summa kogu projektile

Töö sisu

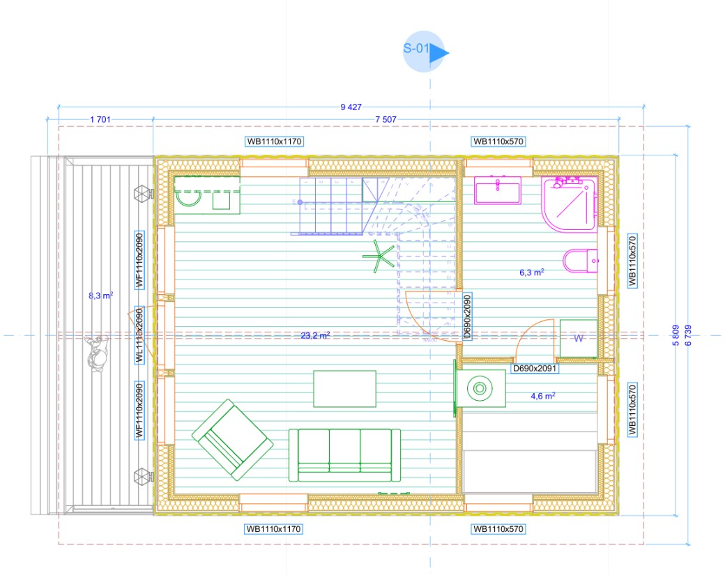
Küttprojekt ja veeprojekt maja + saunamaja.
Kütmiseks tuleb Nibe maasoojuspump S1255-6.
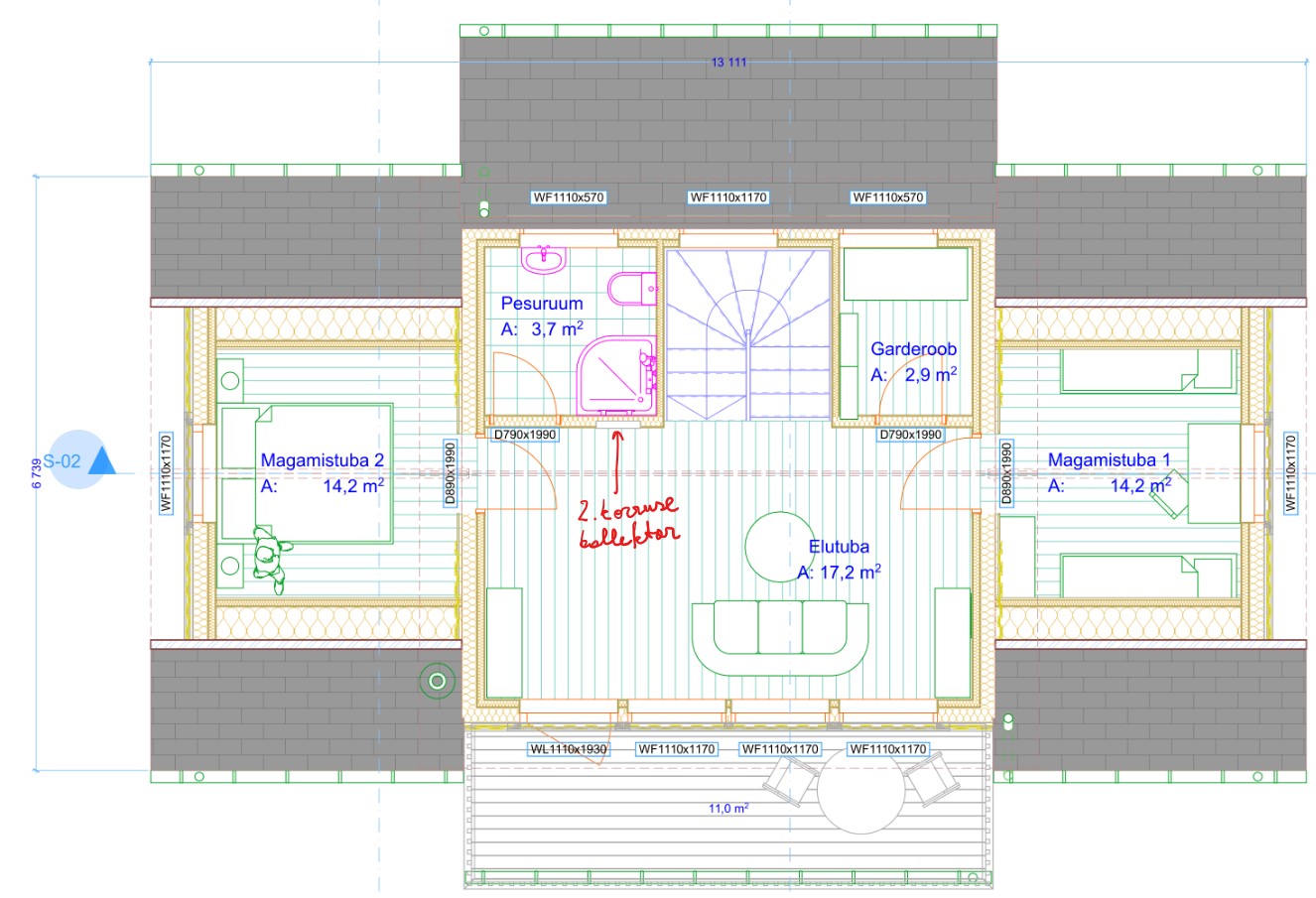
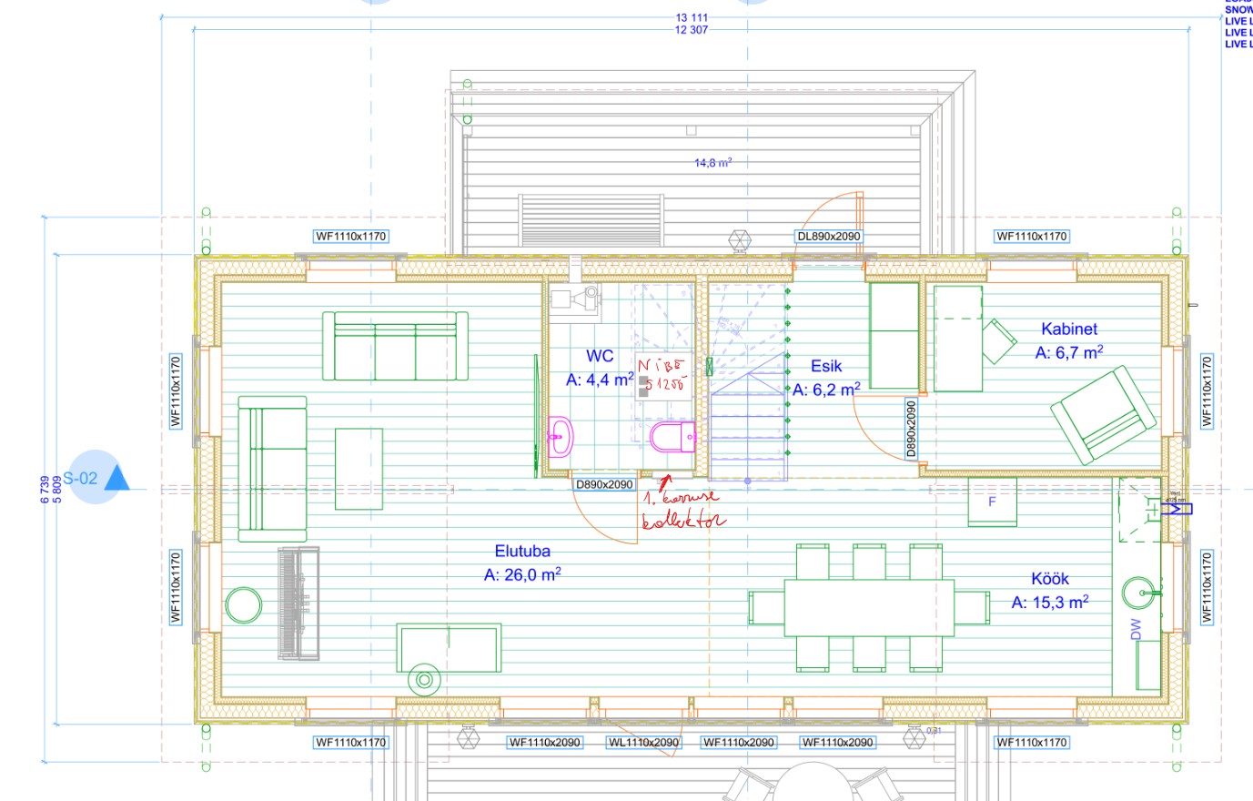
Maja 100m2, kaks korrust, põrandaküte mõlemal korrusel.
Saunamaja ca 10m kaugusel, uponori toru kütte ja tarbevee + tarbevee tsirkulatsiooni jaoks.

Saan jagada autocad faili projekteerimiseks.

Ootused projektile.
* Ruum maasoojuspumba ümber on piiratud, seega siin peab olema detailselt selge, et kõik ära mahub ja on hiljem kasutatav.
* torude paiknemine seina sees ja kuidas need jõuavad kollektorisse 1 ja 2 korrusel.
* maakontuuri otsad majas sees kuni maasoojuspumbani.
* majast väljuv kütte, ja sooja-külma tarbevee+tsirkulatsioonitoru saunamajja
* tarbevee tsirkulatsioonitorustik ja vastav pump plaanil
* saunamajas ka põrandaküte, ainult 1. korrus.
* põrandakütte kontuurid nii majas kui saunas. Plaan on Uponori Siccus kasutada.
* välja tuleb salvkaev, seega majja tuleb vajalik veeautomaatika
* külma vee torustik nii majja sisse, majas kui ka saunamajja ja saunamajas.

NB! Ilmselt on saunamaja kütte jaoks vajalik eraldi tsirkulatsioonipump. See peab siis ka projektis kajastuma.
NB! Kui saunamaja jaoks on vaja eraldi tarbevee tsirkulatsioonipumpa, siis see peab ka projektis kajastuma.

Vastan lahkelt kõikidele täpsustavatele küsimustele.

Pildid, video ja failid

Hanke korraldaja: eraisik ID26416

Pakkumised

Pakkumisi kokku: 0

Küsimused hanke korraldajale

Hanke korraldajale ei ole veel küsimusi esitatud.

Lisa küsimus

Lisa küsimus

Minu pakkumine

Reeglid

Pakkumise kirjelduse väli on mõeldud pakkumise detailsemaks lahti kirjutamiseks. Pikema teksti mugavaks sisestamiseks klikkige kasti paremal ülaservas oleval ikoonil.
Pakkumist tehes on keelatud postitada enda kontaktandmeid (nimi, telefon, aadress jne). Me jälgime ja analüüsime pakkumisi, et vältida pettuseid ja reeglite rikkumisi.
Rikkumise puhul kasutajakonto blokeeritakse.

 

Teisi töid samas valdkonnas

Valdkonnas "Küttesüsteemid" on 2 aktiivset tööd

no-img Pilt puudub

Küttesüsteemi püstakute vahetus ja radiaatoritega ühendamine

Asukoht: Järvamaa, Paide
Aega jäänud: 3p 8h
Tehtud pakkumisi: 2

Cooper&Hunter Consol Inverter 18

Asukoht: Harjumaa, Tallinn
Aega jäänud: 8h 1 min
Tehtud pakkumisi: 1

Vanemad teated:

Vaata kõiki

Sellel veebilehel kasutatakse küpsiseid. Kasutamist jätkates nõustute küpsiste kasutamisega.

Sulge
 
Minu pakkumine

Reeglid

Pakkumise kirjelduse väli on mõeldud pakkumise detailsemaks lahti kirjutamiseks. Pikema teksti mugavaks sisestamiseks klikkige kasti paremal ülaservas oleval ikoonil.
Pakkumist tehes on keelatud postitada enda kontaktandmeid (nimi, telefon, aadress jne). Me jälgime ja analüüsime pakkumisi, et vältida pettuseid ja reeglite rikkumisi.
Rikkumise puhul kasutajakonto blokeeritakse.