+ Lisa oma töö      

Otsid ehitajat "Betoonitööd" valdkonnast?

Parima pakkumise ja teostaja leidmiseks lisa oma töö.

Betoonitööd

ID 68685

550 vaatamist

Prindi

  • check Pakkumiste tegemine
    kuni 01.02.2022
  • check Võitja valik kuni
    08.02.2022
  • 3 Töö teostamine
    ja hinnang
Hanke lõpp: T, 1. veebruar, 2022
Maakond: Harjumaa
Muu asula: Kangru
Tööde algus: T, 15. veebruar, 2022 (Soovituslik)
Tööde lõpp: R, 04. märts, 2022 (Soovituslik)
Ehitusmaterjalid: Töö tegija poolt
Soovin pakkumisi: Summa kogu projektile

Töö sisu

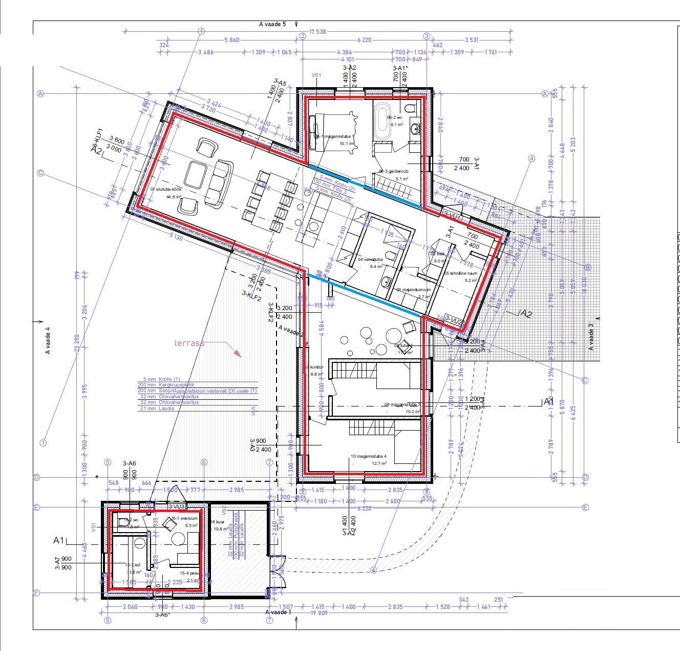
Hanke sisuks on eramu ja saunamaja betoonpõranda rajamine 150m2 sh:

1. Plaatvundamendile EPS 80 100mm paigaldus
2. Armatuurvõrgu paigaldus Q6 150*150mm
3. Põranda betoneerimine 80mm paksuse kihiga

Olemas vaid sinisega joonisel märgitud siseseinad.

Pildid, video ja failid

Hanke korraldaja: eraisik ID11544

Pakkumised

Pakkumisi kokku: 2

Ettevõte Summa Käibemaks Lisatud Vestlus
Kasutaja ikoon ID62201
Pakkuja profiil Väike nool paremale
7 500€ KM lisandub KM lisandub 31.01.2022 Vestlus (0)

Pakkumise kirjeldus:

Sisaldab hankes kirjeldatud töid ja materjale. Ettemaks on materjalide eest.

Kasutaja ikoon ID55746
Pakkuja profiil Väike nool paremale
8 000€ Ei ole KMKR Ei ole KMKR 01.02.2022 Vestlus (0)

Pakkumise kirjeldus:

Tere,

Oleme meeskond kes teab ja tunneb oma ala töid. Meie teenusega kaasneb ka garantii 2 aastat. Saame aidata ka teiste erinevate töödega kui teil peaks vaja minema.

Omame tööde tegemiseks üldehituse MTR tegevusluba. Leping + garantii

Olemas ka referentsid!


Meil käibemaksu juurde ei lisandu

Küsimused hanke korraldajale

Küsimus: private ID53017   19.01.2022 07:57
Tere

Kas ääres saalung olemas?
Mis aluspind on?

Lp.AB

Teavita reeglite rikkumisest

Korraldaja vastus: 19.01.2022 08:10

Tere,

Müürid on laotud ning avatäidete juures samuti kivirida, all plaatvundament.

Parimat
K

Teavita reeglite rikkumisest

Küsimus: private ID49154   19.01.2022 17:18
Tere

Nagu aru saan siis küttetorustiku ei tule? Kas karp on nö kinni ja katus peal ,et saab vajadusel kütte sisse panna kui vajadus?

Teavita reeglite rikkumisest

Korraldaja vastus: 20.01.2022 08:07

Tere,

Kütte- ja veetorustik tuleb betoonikihi sisse, selleks ka armatuurvõrk. Karp selleks ajaks kinni ning küte vajadusel sisse.

Parimat
K

Teavita reeglite rikkumisest

Küsimus: private ID38464   30.01.2022 12:47
Tere, vaja täita /tihendada/ loodida aluspinnas?

Teavita reeglite rikkumisest

Korraldaja vastus: 31.01.2022 08:53

Antud töö on plaatvundamendile, nagu ka hanke kirjelduses märgitud. plaatvundament olemas, fibo seinad olemas, ehk midagi loodida, tihendada täita enam pole. plaatvundamendi pinnale vaja panna eps, kile, armatuur ning betoneerida.

Teavita reeglite rikkumisest

Lisa küsimus

Lisa küsimus

Minu pakkumine

Reeglid

Pakkumise kirjelduse väli on mõeldud pakkumise detailsemaks lahti kirjutamiseks. Pikema teksti mugavaks sisestamiseks klikkige kasti paremal ülaservas oleval ikoonil.
Pakkumist tehes on keelatud postitada enda kontaktandmeid (nimi, telefon, aadress jne). Me jälgime ja analüüsime pakkumisi, et vältida pettuseid ja reeglite rikkumisi.
Rikkumise puhul kasutajakonto blokeeritakse.

 

Teisi töid samas valdkonnas

Valdkonnas "Betoonitööd" on 5 aktiivset tööd

Betoonist platsi valamine väljas.

Asukoht: Harjumaa, Luige
Aega jäänud: 21h 20 min
Tehtud pakkumisi: 4

Betoonpõranda valu

Asukoht: Harjumaa, Jõelähtme
Aega jäänud: 2p 21h
Tehtud pakkumisi: 3

Vanemad teated:

Vaata kõiki

Sellel veebilehel kasutatakse küpsiseid. Kasutamist jätkates nõustute küpsiste kasutamisega.

Sulge
 
Minu pakkumine

Reeglid

Pakkumise kirjelduse väli on mõeldud pakkumise detailsemaks lahti kirjutamiseks. Pikema teksti mugavaks sisestamiseks klikkige kasti paremal ülaservas oleval ikoonil.
Pakkumist tehes on keelatud postitada enda kontaktandmeid (nimi, telefon, aadress jne). Me jälgime ja analüüsime pakkumisi, et vältida pettuseid ja reeglite rikkumisi.
Rikkumise puhul kasutajakonto blokeeritakse.