+ Lisa oma töö      

Otsid ehitajat "Katusetööd" valdkonnast?

Parima pakkumise ja teostaja leidmiseks lisa oma töö.

Katuse ehitus

ID 68530

892 vaatamist

Prindi

  • check Pakkumiste tegemine
    kuni 02.02.2022
  • check Võitja valik kuni
    09.02.2022
  • 3 Töö teostamine
    ja hinnang
Hanke lõpp: K, 2. veebruar, 2022
Maakond: Valgamaa
Muu asula: Õruste
Tööde algus: E, 16. mai, 2022 (Soovituslik)
Tööde lõpp: P, 19. juuni, 2022 (Soovituslik)
Ehitusmaterjalid: Töö tegija poolt
Soovin pakkumisi: Summa kogu projektile

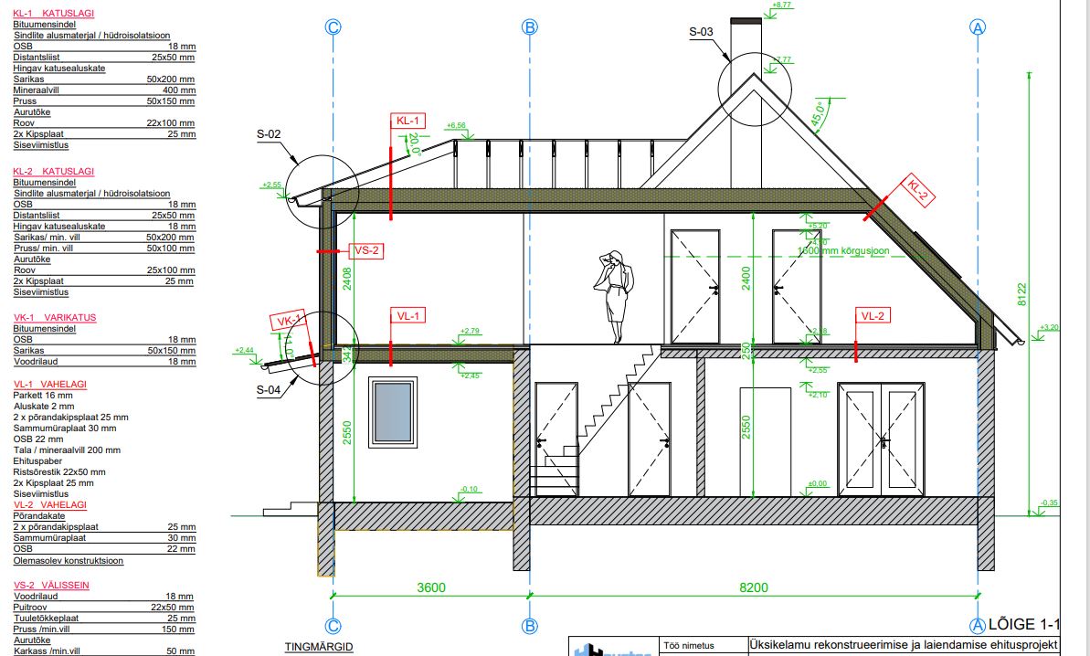
Töö sisu

Teostatavad tööd:
1) vana eterniidi, laastu ja roovituse eemaldamine, utiliseerimist ei soovi.
2) vanad sarikad sirgeks ajada ja lisada uued sarikad vahele
3) katusekatte materjali paigaldus ja soojustus
4) tuulekojapealse korruse ehitus ja soojustus
5) otsakelpadele uus laudis ja soojustus
6) akende paigaldus koos vihmaplekkidega
7) tuulekastid
8) korstnapitsi ladumine.

Katuse pindala umbes 220 m2.
Soetanud on aknad, OSB plaadid ning bituumensindlid (neeluriba, aluskate, räästa ja katuse ribad.), korstnakivid. Töö teostajale jääb ülejäänud vajaliku materjali soetamise.
Koostatud on põhiprojekt.

Pildid, video ja failid

Hanke korraldaja: eraisik ID66651

Pakkumised

Pakkumisi kokku: 9

Ettevõte Summa Käibemaks Lisatud Vestlus
Kasutaja ikoon ID65365
Pakkuja profiil Väike nool paremale
38 950€ Sisaldab KM Sisaldab KM 19.01.2022 Vestlus (0)
Kasutaja ikoon ID55582
Pakkuja profiil Väike nool paremale
38 000€ Sisaldab KM Sisaldab KM 20.01.2022 Vestlus (0)

Pakkumise kirjeldus:

Tere!
Meie pakkumine Teie kirjeldatud töödele.
Lugupidamisega
HN

Kasutaja ikoon ID50594
Pakkuja profiil Väike nool paremale
50 000€ KM lisandub KM lisandub 20.01.2022 Vestlus (0)

Pakkumise kirjeldus:

Tere,

Hinnapakkumine koostatud vastavalt hanke kirjeldusele.
Hind sisaldab materjale.
Arveldada saab ka rahas.

Lgp. Taivo

Kasutaja ikoon ID53303
Pakkuja profiil Väike nool paremale
27 000€ KM lisandub KM lisandub 27.01.2022 Vestlus (0)

Pakkumise kirjeldus:

Kunas klendil on palju materjale juba soetatud siis meie pakkumine selline.

Kasutaja ikoon ID40905
Pakkuja profiil Väike nool paremale
36 500€ KM lisandub KM lisandub 31.01.2022 Vestlus (0)

Pakkumise kirjeldus:

pakkumine vastavalt kirjeldusele.

lugupidamisega

Kasutaja ikoon ID59528
Pakkuja profiil Väike nool paremale
30 000€ KM lisandub KM lisandub 02.02.2022 Vestlus (0)

Pakkumise kirjeldus:

Tere,

Pakkumine tehtud vastavalt Hankes kirjeldatud töödele
Töid teostab proffesionaalne meeskond, kōikidele meie poolt tehtud töödele garantii !
Ettevõttel olemas kindlustus, mis katab tehtud tööd!

Kui meie pakkumise vastu huvi, võtke meiega ühendust ja kirjutame oma hinnapakkumise lahti

Parimat

Erik

Kasutaja ikoon ID55746
Pakkuja profiil Väike nool paremale
32 000€ Ei ole KMKR Ei ole KMKR 02.02.2022 Vestlus (0)

Pakkumise kirjeldus:

Tere,

Oleme meeskond kes teab ja tunneb oma ala töid. Meie teenusega kaasneb ka garantii 2 aastat. Saame aidata ka teiste erinevate töödega kui teil peaks vaja minema.

Omame tööde tegemiseks üldehituse MTR tegevusluba. Leping + garantii

Olemas ka referentsid!


Meil käibemaksu juurde ei lisandu

Kasutaja ikoon ID49870
Pakkuja profiil Väike nool paremale
32 000€ KM lisandub KM lisandub 02.02.2022 Vestlus (0)
Kasutaja ikoon ID65246
Pakkuja profiil Väike nool paremale
29 000€ Ei ole KMKR Ei ole KMKR 02.02.2022 Vestlus (0)

Pakkumise kirjeldus:

Arveldamine ettappidena

Küsimused hanke korraldajale

Küsimus: private ID53303   20.01.2022 09:03
Tere.
Mis seisus on olemasolevad sarikad?
Tuulekoja pealse ehitus!? Kas ainult väljast, sisetööd pole arvestatud?
Millist soojustust eelistate?
Tänud.

Teavita reeglite rikkumisest

Korraldaja vastus: 20.01.2022 09:41

Tere!
Olemasolevad sarikad on ümarmaterjalist sammuga 1200, tunduvad tugevad.
Jah, sisetööd teen ise.
Eelistan kivivilla.

Teavita reeglite rikkumisest

Lisa küsimus

Lisa küsimus

Minu pakkumine

Reeglid

Pakkumise kirjelduse väli on mõeldud pakkumise detailsemaks lahti kirjutamiseks. Pikema teksti mugavaks sisestamiseks klikkige kasti paremal ülaservas oleval ikoonil.
Pakkumist tehes on keelatud postitada enda kontaktandmeid (nimi, telefon, aadress jne). Me jälgime ja analüüsime pakkumisi, et vältida pettuseid ja reeglite rikkumisi.
Rikkumise puhul kasutajakonto blokeeritakse.

 

Teisi töid samas valdkonnas

Valdkonnas "Katusetööd" on 9 aktiivset tööd

no-img Pilt puudub

Käidava katuse PVC 54m2

Asukoht: Harjumaa, Muraste
Aega jäänud: 4p 9h
Tehtud pakkumisi: 3

Garaaži katuse vahetamine

Asukoht: Harjumaa, Viimsi
Aega jäänud: 13p 9h
Tehtud pakkumisi: 2

Vanemad teated:

Vaata kõiki

Sellel veebilehel kasutatakse küpsiseid. Kasutamist jätkates nõustute küpsiste kasutamisega.

Sulge
 
Minu pakkumine

Reeglid

Pakkumise kirjelduse väli on mõeldud pakkumise detailsemaks lahti kirjutamiseks. Pikema teksti mugavaks sisestamiseks klikkige kasti paremal ülaservas oleval ikoonil.
Pakkumist tehes on keelatud postitada enda kontaktandmeid (nimi, telefon, aadress jne). Me jälgime ja analüüsime pakkumisi, et vältida pettuseid ja reeglite rikkumisi.
Rikkumise puhul kasutajakonto blokeeritakse.