+ Lisa oma töö      

Otsid ehitajat "Üldehitus" valdkonnast?

Parima pakkumise ja teostaja leidmiseks lisa oma töö.

Hange on lõppenud!

Võitjaks osutus kasutaja ID 28223

Saunamaja ehitus Rae vallas

ID 68296

1112 vaatamist

Prindi

  • check Pakkumiste tegemine
    kuni 31.01.2022
  • check Võitja valik kuni
    07.02.2022
  • 3 Töö teostamine
    ja hinnang
Hanke lõpp: E, 31. jaanuar, 2022
Maakond: Harjumaa
Muu asula: Järveküla
Tööde algus: T, 01. märts, 2022 (Soovituslik)
Tööde lõpp: K, 01. juuni, 2022 (Soovituslik)
Ehitusmaterjalid: Töö tegija poolt
Soovin pakkumisi: Summa kogu projektile

Töö sisu

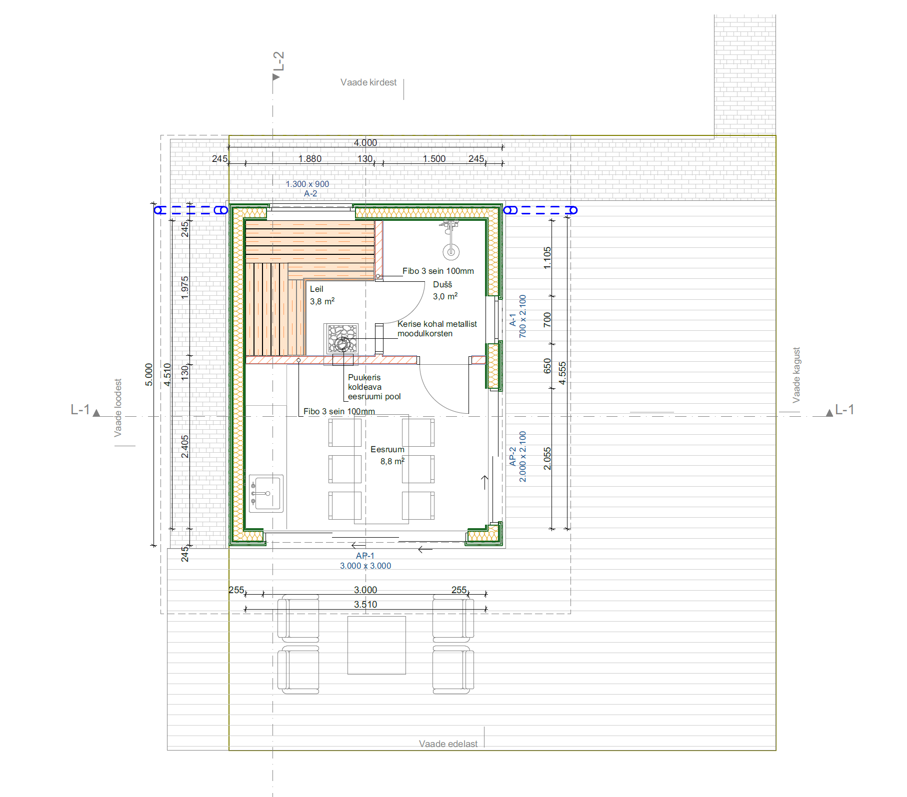
Saunamaja on planeeritud olemasolevast elamust edelasuunas hoovi poole 16m kaugusele. Hoonete vahele jäävad elamu terrass ja olemasolev maaküttekontuur. Sauna on planeeritud lõunasuunda väike eesruum,
põhjapoole pesu- ja leiliruum. Sauna köetakse puuküttega, kerise koldesuu on
avatud eesruumi poole.

Hoone maa-alused konstruktsioonid - vundamendid
Saunamajale on projekteeritud madalvundament. Sokliosa on laotud 200mm fiboplokkidest. Vundamenditaldmik on armeeritud monoliitsest betoonist.

Põrandad
Põrand on isoleeritud ujuv betoonpõrand. Põrandad viimistletakse laudparketiga, leili- ja dušširuumi põrandad keraamiliste plaatidega. Terrassi põrand on immutatud ilmastikukindlatest laudadest. Terrassi puitkonstruktsioon toetub kivipostidele.

Kandeseinad
Välisseinad ja kandeseinad on puitkarkassist 50x150mm. Puitkarkassi vahel on isolatsiooniks kivivill, väljaspool tuuletõke 13mm, tuulutusliistud ja vertikaalne puitlaudis. Seespool on aurutõke, distantsliistud, siseviimistlusplaat.

Vaheseinad
Vaheseinad on 100mm Fibo 3 plokkidest, viimistletud plaatidega.

Avatäited: Aknad, välisuksed
Hoonel on puitalumiiniumaknad ja terrassile avanevad liuguksed. Uste mõõtmed, avanemis- ja lukustamise võimalused täpsustada tootjaga. Igas ruumis on vähemalt üks aken avatav.

Katused
Sauna viilkatus on 35 kraadise kaldega ja kaetud katusekividega. Katust kannavad 50x200mm puitsarikad, nende vahel 200mm kivivill, mille peal on hingav aluskate, tuulutusroov ja roovid vastavalt katusekivi tüübile. Sarikate all on aurutõke, roovid ja sisevoodrilaud. Räästakastid on puitlaudisest.

Küte
Saunamaja köetakse vajaliku temperatuurini vaid selle kasutamise ajal, muul ajal hoitakse sees soojakraade. Kütteks kasutatakse olemasolevat maakütet ja vesipõrandakütet.

Ventilatsioon
Abihoones on loomulik ventilatsioon freshklappidega, pesuruumi ukse all on tuulutuspilu. Dušširuumi on planeeritud ventilaatoriga väljatõmme.

Veevarustus
Sauna veeühendus rajatakse elamu veeühendusest. Soe vesi saadakse leiliruumi lava alla paigaldatavast boilerist.

Olmereovee kanalisatsioon
Dušši ja kraani reovesi juhitakse planeeritud 2m3 kogumismahutisse. Mahuti tühjendamine vastavalt vajadusele või vähemalt korra aastas.

Elektrivarustus
Elektrivarustus saadakse olemasolevast elamu kibist. Ruumide valgustamiseks kasutatakse pinnapealseid valgusteid, optika ja IP klass vastavalt ruumi otstarbele. Ruumides kasutatakse valgusteid, mille värvustemperatuur on üldjuhul soojem, kui 4000K. Kõikidesse
ruumidesse ja räästa alla on planeeritud pinnapealsed valgustid.

Pildid, video ja failid

Hanke korraldaja: eraisik ID55225

Pakkumised

Pakkumisi kokku: 2

Ettevõte Summa Käibemaks Lisatud Vestlus
Kasutaja ikoon ID28223
Pakkuja profiil Väike nool paremale
20 700€ Sisaldab KM Sisaldab KM 06.01.2022 Vestlus (0)
Kasutaja ikoon ID55582
Pakkuja profiil Väike nool paremale
20 000€ Sisaldab KM Sisaldab KM 17.01.2022 Vestlus (0)

Pakkumise kirjeldus:

Tere!
Meie pakkumine Teie kirjeldatud töödele.
Lugupidamisega
HN

Küsimused hanke korraldajale

Hanke korraldajale ei ole veel küsimusi esitatud.

Lisa küsimus

Lisa küsimus

Minu pakkumine

Reeglid

Pakkumise kirjelduse väli on mõeldud pakkumise detailsemaks lahti kirjutamiseks. Pikema teksti mugavaks sisestamiseks klikkige kasti paremal ülaservas oleval ikoonil.
Pakkumist tehes on keelatud postitada enda kontaktandmeid (nimi, telefon, aadress jne). Me jälgime ja analüüsime pakkumisi, et vältida pettuseid ja reeglite rikkumisi.
Rikkumise puhul kasutajakonto blokeeritakse.

 

Teisi töid samas valdkonnas

Valdkonnas "Üldehitus" on 29 aktiivset tööd

Maja värvimine

Asukoht: Harjumaa, Saue
Aega jäänud: 1p 19h
Tehtud pakkumisi: 6

Vanemad teated:

Vaata kõiki

Sellel veebilehel kasutatakse küpsiseid. Kasutamist jätkates nõustute küpsiste kasutamisega.

Sulge
 
Minu pakkumine

Reeglid

Pakkumise kirjelduse väli on mõeldud pakkumise detailsemaks lahti kirjutamiseks. Pikema teksti mugavaks sisestamiseks klikkige kasti paremal ülaservas oleval ikoonil.
Pakkumist tehes on keelatud postitada enda kontaktandmeid (nimi, telefon, aadress jne). Me jälgime ja analüüsime pakkumisi, et vältida pettuseid ja reeglite rikkumisi.
Rikkumise puhul kasutajakonto blokeeritakse.