+ Lisa oma töö      

Otsid ehitajat "Fassaaditööd" valdkonnast?

Parima pakkumise ja teostaja leidmiseks lisa oma töö.

Hange on lõppenud!

Võitjaks osutus kasutaja ID 49185

Abihoone soojustamine ning fassaadi vahetus

ID 68289

1038 vaatamist

Prindi

  • check Pakkumiste tegemine
    kuni 14.01.2022
  • check Võitja valik kuni
    14.01.2022
  • 3 Töö teostamine
    ja hinnang
Hanke lõpp: R, 14. jaanuar, 2022
Maakond: Pärnumaa
Linn: Pärnu
Tööde algus: T, 01. märts, 2022 (Soovituslik)
Tööde lõpp: N, 31. märts, 2022 (Soovituslik)
Ehitusmaterjalid: Töö tegija poolt
Soovin pakkumisi: Summa kogu projektile

Töö sisu

Soovin abihoonel fassaadi vahetada ning soojustada.

Pildid, video ja failid

Hanke korraldaja: eraisik ID63722

Pakkumised

Pakkumisi kokku: 11

Ettevõte Summa Käibemaks Lisatud Vestlus
Kasutaja ikoon ID62796
Pakkuja profiil Väike nool paremale
15 800€ Ei ole KMKR Ei ole KMKR 01.01.2022 Vestlus (0)

Pakkumise kirjeldus:

Tere!


Pakkumine maja soojustamiseks ja Välisvoodri laua vahetuseks.
Hind:15800€


Lgp Riivo.

Kasutaja ikoon ID55582
Pakkuja profiil Väike nool paremale
15 000€ Sisaldab KM Sisaldab KM 01.01.2022 Vestlus (0)

Pakkumise kirjeldus:

Tere!
Meie pakkumine Teie soovitud töödele.
Lugupidamisega
HN

Kasutaja ikoon ID50594
Pakkuja profiil Väike nool paremale
20 000€ KM lisandub KM lisandub 02.01.2022 Vestlus (0)

Pakkumise kirjeldus:

Tere,

Hinnapakkumine koostatud vastavalt hanke kirjeldusele ning küsimuste ja vastuste põhjal.

Lgp. Taivo

Kasutaja ikoon ID62893
Pakkuja profiil Väike nool paremale
15 900€ KM lisandub KM lisandub 03.01.2022 Vestlus (0)

Pakkumise kirjeldus:

Tere,
- tellingud
- vajalikut eel ja lammutustööd
- soojustamine, teipimine ja karkassi ehitus
- Cedral välisvoodri paigaldus
- akende uste viimistlutööd
- vajalikud plekitööd
- koristus ja transport

Parimat soovides,

Kasutaja ikoon ID56552
Pakkuja profiil Väike nool paremale
15 000€ KM lisandub KM lisandub 04.01.2022 Vestlus (0)

Pakkumise kirjeldus:

Tere!

Pakkumine tehtud vastavalt Teie soovidele.
Pakkumine sisaldab kõiki soovitud töid ja materjale.

1) Tellingud
2) Lammutustööd ja ehitusprahi utiliseerimine
3) Karkassi ehitus 100 mm + 50 mm
4) Tuuletõkke paigaldus
5) Soojustamine 150 mm
6) kiudtsementplaadi paigaldus
7) Akende/uste viimistlus
8) Vajaminevad plekitööd
9) Koristus ja ... Rohkem

Kasutaja ikoon ID57676
Pakkuja profiil Väike nool paremale
15 800€ KM lisandub KM lisandub 05.01.2022 Vestlus (0)

Pakkumise kirjeldus:

Tere,
- tellingud
- Lammutustööd
- Karkassi ehitus, soojustamine
- Cedral välisvoodri paigaldus
- Akende uste viimistlutööd
- Vajalikud plekitööd
- Koristus ja transport
Tasumine etapi kaupa. Etapid täpsustan kui hange konkurss läbi.

Kasutaja ikoon ID66599
Pakkuja profiil Väike nool paremale
14 000€ Sisaldab KM Sisaldab KM 08.01.2022 Vestlus (0)
Kasutaja ikoon ID54332
Pakkuja profiil Väike nool paremale
15 000€ Sisaldab KM Sisaldab KM 09.01.2022 Vestlus (0)

Pakkumise kirjeldus:

Vana fassaadi lammutamine
Ehitusprahi äravedu
Materjalid
Ehitamine
2 töötajat
Käärtõstuk
Valmimisaeg 2 kuud

Kasutaja ikoon ID61901
Pakkuja profiil Väike nool paremale
17 000€ Sisaldab KM Sisaldab KM 11.01.2022 Vestlus (0)

Pakkumise kirjeldus:

Pakkumine sisaldab nii tööd-, materjale, kui ka kinnitusvahendeid. Saame alustada jaanuari keskel kui soov

Kasutaja ikoon ID55746
Pakkuja profiil Väike nool paremale
13 800€ Ei ole KMKR Ei ole KMKR 14.01.2022 Vestlus (0)
Kasutaja ikoon ID49185
Pakkuja profiil Väike nool paremale
12 000€ Sisaldab KM Sisaldab KM 14.01.2022 Vestlus (0)

Küsimused hanke korraldajale

Küsimus: private ID65164   01.01.2022 03:41
Tere!
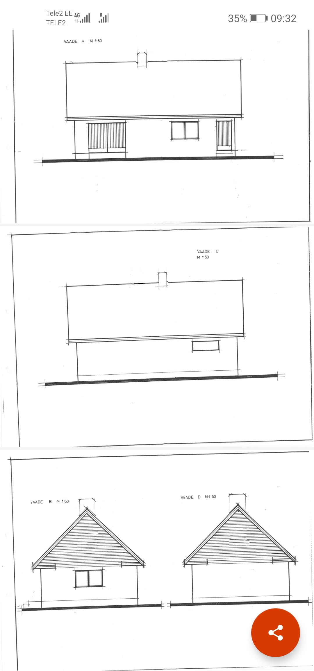
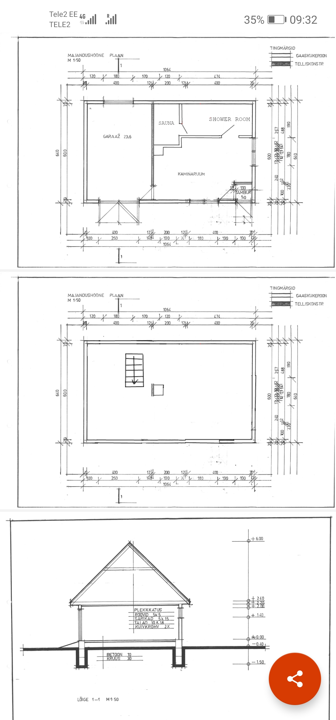
Sooviks teada seinte pindala või mõõte.
Ilma nendeta on suhteliselt võimatu materjale arvutada ja pakkumist teha.

Lgp N

Teavita reeglite rikkumisest

Korraldaja vastus: 01.01.2022 09:38

Tere! Väga hea point!
Ma lisasin nüüd jooniseid abihoonest, kus oleks võimalik näha abihoone mõõtmeid. Muidugi ma ei loodagi, et pakkumine oleks 100%. Materjali puhul ei soovi puitu, kuna abihoone on 5m naabrist eemal.

Teavita reeglite rikkumisest

Küsimus: private ID62065   01.01.2022 19:05
Tere! Oleks huvitav teada mis materjali te siis eelistate juhul kui see puit pole!?

Teavita reeglite rikkumisest

Korraldaja vastus: 01.01.2022 19:57

Tere!

Aitäh küsimast.
Just täna arutasime ja kõige mõistlikum oleks selline lahendus- https://www.cedral.world/et-ee/fassaad/tooted/cedral-click/. Mõtleme uuel nädalal poodi vaatama minna ning toodet rohkem uurima. Muidugi sooviks puitu, kuid kuna hoone on liiga lähedal naabritele (5meetrit), siis dokumentatsiooni jaoks sooviks tuleohitusmaterjali kasutada.

Teavita reeglite rikkumisest

Küsimus: private ID62065   02.01.2022 13:16
Nagu aru saan on teil materjali valiku osas asjad lahtised ja nagu arusaam on siis soovite ühte maja otsa tulekindlat materjali või siis tervet hoonet ühest samast materjalist!?

Teavita reeglite rikkumisest

Korraldaja vastus: 02.01.2022 13:44

Me soovime kogu abihoonel kasutada kiudsementplaate. See on tulekindel ning lihtsam paigaldada. Alguses soovisime puitu, aga kuna on plaanis ka teisel majal samasugune töö ette võtta, siis hinna poolest on kiudsement mõistlikum kuna see hoone asub naabritele lähedal.

Teavita reeglite rikkumisest

Küsimus: private ID62065   02.01.2022 14:04
Soovite siis hinnapakkumist nii materjali kui ka tööraha kohta !?
Aga raske on nii hinnapakkumist teha kui teil pole kindel 100%mis materjali kasutada?

Teavita reeglite rikkumisest

Korraldaja vastus: 02.01.2022 14:17

Ma ju täpsustasin, et kasutada soovime kiudtsemendist valmistatud suuri plaate. Saatsin ka linki firmast mis neid valmistab. Lihtsalt näitena.

Teavita reeglite rikkumisest

Lisa küsimus

Lisa küsimus

Minu pakkumine

Reeglid

Pakkumise kirjelduse väli on mõeldud pakkumise detailsemaks lahti kirjutamiseks. Pikema teksti mugavaks sisestamiseks klikkige kasti paremal ülaservas oleval ikoonil.
Pakkumist tehes on keelatud postitada enda kontaktandmeid (nimi, telefon, aadress jne). Me jälgime ja analüüsime pakkumisi, et vältida pettuseid ja reeglite rikkumisi.
Rikkumise puhul kasutajakonto blokeeritakse.

 

Teisi töid samas valdkonnas

Valdkonnas "Fassaaditööd" on 12 aktiivset tööd

Akende ja viilude parandus ja värvimine

Asukoht: Valgamaa, Valga
Aega jäänud: 14h 37 min
Tehtud pakkumisi: 3

Eramaja vintskapide laudise paigaldus

Asukoht: Pärnumaa, Pärnu-Jaagupi
Aega jäänud: 9p 14h
Tehtud pakkumisi: 2

Vanemad teated:

Vaata kõiki

Sellel veebilehel kasutatakse küpsiseid. Kasutamist jätkates nõustute küpsiste kasutamisega.

Sulge
 
Minu pakkumine

Reeglid

Pakkumise kirjelduse väli on mõeldud pakkumise detailsemaks lahti kirjutamiseks. Pikema teksti mugavaks sisestamiseks klikkige kasti paremal ülaservas oleval ikoonil.
Pakkumist tehes on keelatud postitada enda kontaktandmeid (nimi, telefon, aadress jne). Me jälgime ja analüüsime pakkumisi, et vältida pettuseid ja reeglite rikkumisi.
Rikkumise puhul kasutajakonto blokeeritakse.