+ Lisa oma töö      

Otsid ehitajat "Kaevetööd" valdkonnast?

Parima pakkumise ja teostaja leidmiseks lisa oma töö.

Hange on lõppenud!

Võitjaks osutus kasutaja ID 50618

Korraldaja hinnang tehtud tööle

4.7
14.04.2022
Töökiirus: 12345
Kvaliteet: 12345
Hind: 12345

Pinnasetööd

ID 68215

1178 vaatamist

Prindi

  • check Pakkumiste tegemine
    kuni 18.01.2022
  • check Võitja valik kuni
    25.01.2022
  • 3 Töö teostamine
    ja hinnang
Hanke lõpp: T, 18. jaanuar, 2022
Maakond: Tartumaa
Linn: Tartu
Tööde algus: T, 01. veebruar, 2022 (Soovituslik)
Tööde lõpp: N, 31. märts, 2022 (Soovituslik)
Ehitusmaterjalid: Töö tellija poolt
Soovin pakkumisi: Summa kogu projektile

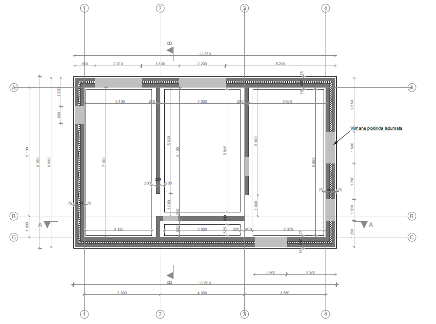
Töö sisu

Ettevalmistustööd vundamendi ehituseks Tartu linnas.
Tööde hulgas hoonealuse süvendi kaevamine, killustikuga (16-32) täitmine ja tihendamine; maja mahamärkimine; välisvõrkude ühendamine.

Lisatud eraldi fail hinnanguliste liiva/killustiku jms koguste jaoks.

Võib pakkuda ka hinda:
1) kuni tihendatud killustikupadja rajamise +/- maja mahamärkimisega +/- drenaažiga
2) koos välisvõrkude ühendamisega
3) koos lintvundamendi ehitusega

Pildid, video ja failid

Hanke korraldaja: eraisik ID60382

Pakkumised

Pakkumisi kokku: 2

Ettevõte Summa Käibemaks Lisatud Vestlus
Kasutaja ikoon ID50618
Pakkuja profiil Väike nool paremale
3 800€ KM lisandub KM lisandub 16.01.2022 Vestlus (2)

Pakkumise kirjeldus:

Hind sisaldab:
- majaaluse pinnase koorimist
- geotekstiili paigaldust + geotekstiiki
- majaaluse pinna killustikuga täitmist 15m3 (~15cm paksune kiht) ja selle tihendamine
- vundamendi mahamärkimine geodeediga
- saab tasuda ilma km

Vee ja kanalusatsiooni projekt kooskõlastustega ja ehitusteatisega tuleb soovi korral juurde 450.- eur + km, eeldab ... Rohkem

Kasutaja ikoon ID55582
Pakkuja profiil Väike nool paremale
3 750€ Sisaldab KM Sisaldab KM 17.01.2022 Vestlus (2)

Pakkumise kirjeldus:

Tere!
Meie pakkumine Teie kirjeldatud töödele.
Lugupidamisega
HN

Küsimused hanke korraldajale

Küsimus: private ID50618   13.01.2022 20:40
Tere.
Lisage välisvõrkude joonis(ed).

Teavita reeglite rikkumisest

Korraldaja vastus: 14.01.2022 11:42

Kas geodeetiline alusplaan sobib? Sellele lisaks eraldi jooniseid ei ole.

Teavita reeglite rikkumisest

Küsimus: private ID50618   14.01.2022 11:58
Tere.
Sellest pole kasu, kuna ma ju ikkagi ei tea kuda trassid kulgevad.
Kui projekti pole, siis liituda ei saa ka ju. Kui vaja saame pakkuda projekti ja hilisema teostuse.

Teavita reeglite rikkumisest

Korraldaja vastus: 14.01.2022 13:27

Tere!
Pakkuge siis palun projekt ka.

Teavita reeglite rikkumisest

Lisa küsimus

Lisa küsimus

Minu pakkumine

Reeglid

Pakkumise kirjelduse väli on mõeldud pakkumise detailsemaks lahti kirjutamiseks. Pikema teksti mugavaks sisestamiseks klikkige kasti paremal ülaservas oleval ikoonil.
Pakkumist tehes on keelatud postitada enda kontaktandmeid (nimi, telefon, aadress jne). Me jälgime ja analüüsime pakkumisi, et vältida pettuseid ja reeglite rikkumisi.
Rikkumise puhul kasutajakonto blokeeritakse.

 

Teisi töid samas valdkonnas

Valdkonnas "Kaevetööd" on 2 aktiivset tööd

Vundamendi süvendi rajamine

Asukoht: Võrumaa, Võru
Aega jäänud: 2p 20h
Tehtud pakkumisi: 1

Väljakaeve ja asfalteerimine

Asukoht: Harjumaa, Tallinn
Aega jäänud: 20h 11 min
Tehtud pakkumisi: 0

Vanemad teated:

Vaata kõiki

Sellel veebilehel kasutatakse küpsiseid. Kasutamist jätkates nõustute küpsiste kasutamisega.

Sulge
 
Minu pakkumine

Reeglid

Pakkumise kirjelduse väli on mõeldud pakkumise detailsemaks lahti kirjutamiseks. Pikema teksti mugavaks sisestamiseks klikkige kasti paremal ülaservas oleval ikoonil.
Pakkumist tehes on keelatud postitada enda kontaktandmeid (nimi, telefon, aadress jne). Me jälgime ja analüüsime pakkumisi, et vältida pettuseid ja reeglite rikkumisi.
Rikkumise puhul kasutajakonto blokeeritakse.