+ Lisa oma töö      

Otsid ehitajat "Lammutustööd" valdkonnast?

Parima pakkumise ja teostaja leidmiseks lisa oma töö.

Hange on lõppenud!

Võitjaks osutus kasutaja ID 57475

Korraldaja hinnang tehtud tööle

5.0
30.12.2021
Töökiirus: 12345
Kvaliteet: 12345
Hind: 12345

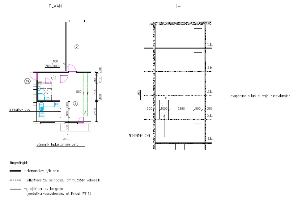
Korteri siseseinapaneeli täiendava ava tegemine

ID 68148

889 vaatamist

Prindi

  • check Pakkumiste tegemine
    kuni 22.12.2021
  • check Võitja valik kuni
    22.12.2021
  • 3 Töö teostamine
    ja hinnang
Hanke lõpp: K, 22. detsember, 2021
Maakond: Harjumaa
Linn: Tallinn
Tööde algus: T, 21. detsember, 2021 (Soovituslik)
Tööde lõpp: K, 05. jaanuar, 2022
Ehitusmaterjalid: Töö tellija poolt
Soovin pakkumisi: Summa kogu projektile

Töö sisu

Tööde teostamisel tuleb arvestada järgnevaga:
1. Enne ava freesimist kindlaks teha elektrijuhtmete asukohad freesitavas seinas. Läbilõigatavad juhtmed vooluvõrgust lahti ühendada.
2. Ava lõikamisel tuleb kasutada vibratsioonivaba tehnoloogiat (teemantsaagimine) ja
minimeerida naaberkorteritesse ja koridori kanduvat müra ja tolmu.
3. Väljafreesitavad seinaosad tuleb freesida mitte suuremate kui ~50x50cm tükkidena.
Tükid koheselt välja vedada..
4. Ehitusobjektil tagada ehituse käigus tekkivate jäätmete liigiti kogumine ja üle andmine
vastavat jäätmekäitlusluba omavale vedajale.

Sularahas ei arveldaks, arve tuleks esitada käibemaksukohuslasest ettevõttele.

Pildid, video ja failid

Hanke korraldaja: eraisik ID66368

Pakkumised

Pakkumisi kokku: 2

Ettevõte Summa Käibemaks Lisatud Vestlus
Kasutaja ikoon ID22919
Pakkuja profiil Väike nool paremale
750€ KM lisandub KM lisandub 21.12.2021 Vestlus (1)
Kasutaja ikoon ID57475
Pakkuja profiil Väike nool paremale
650€ KM lisandub KM lisandub 21.12.2021 Vestlus (3)

Küsimused hanke korraldajale

Hanke korraldajale ei ole veel küsimusi esitatud.

Lisa küsimus

Lisa küsimus

Minu pakkumine

Reeglid

Pakkumise kirjelduse väli on mõeldud pakkumise detailsemaks lahti kirjutamiseks. Pikema teksti mugavaks sisestamiseks klikkige kasti paremal ülaservas oleval ikoonil.
Pakkumist tehes on keelatud postitada enda kontaktandmeid (nimi, telefon, aadress jne). Me jälgime ja analüüsime pakkumisi, et vältida pettuseid ja reeglite rikkumisi.
Rikkumise puhul kasutajakonto blokeeritakse.

 

Teisi töid samas valdkonnas

Valdkonnas "Lammutustööd" on 6 aktiivset tööd

Suvila lammutamine

Asukoht: Raplamaa, Vilivere
Aega jäänud: 22h 3 min
Tehtud pakkumisi: 10

Katuse lammutamine

Asukoht: Harjumaa
Aega jäänud: 12p 22h
Tehtud pakkumisi: 6

Vanemad teated:

Vaata kõiki

Sellel veebilehel kasutatakse küpsiseid. Kasutamist jätkates nõustute küpsiste kasutamisega.

Sulge
 
Minu pakkumine

Reeglid

Pakkumise kirjelduse väli on mõeldud pakkumise detailsemaks lahti kirjutamiseks. Pikema teksti mugavaks sisestamiseks klikkige kasti paremal ülaservas oleval ikoonil.
Pakkumist tehes on keelatud postitada enda kontaktandmeid (nimi, telefon, aadress jne). Me jälgime ja analüüsime pakkumisi, et vältida pettuseid ja reeglite rikkumisi.
Rikkumise puhul kasutajakonto blokeeritakse.