+ Lisa oma töö      

Otsid ehitajat "Siseviimistlustööd" valdkonnast?

Parima pakkumise ja teostaja leidmiseks lisa oma töö.

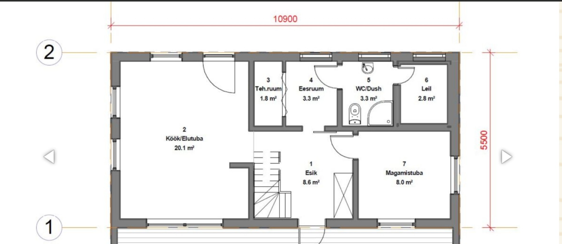
Siseviimistlus 60m2 põhjapinnaga majale

ID 68089

594 vaatamist

Prindi

  • check Pakkumiste tegemine
    kuni 19.12.2021
  • check Võitja valik kuni
    26.12.2021
  • 3 Töö teostamine
    ja hinnang
Hanke lõpp: P, 19. detsember, 2021
Maakond: Harjumaa
Muu asula: Vaskjala
Tööde algus: R, 01. aprill, 2022 (Soovituslik)
Tööde lõpp: T, 31. mai, 2022 (Soovituslik)
Ehitusmaterjalid: Töö tegija poolt
Soovin pakkumisi: Summa kogu projektile

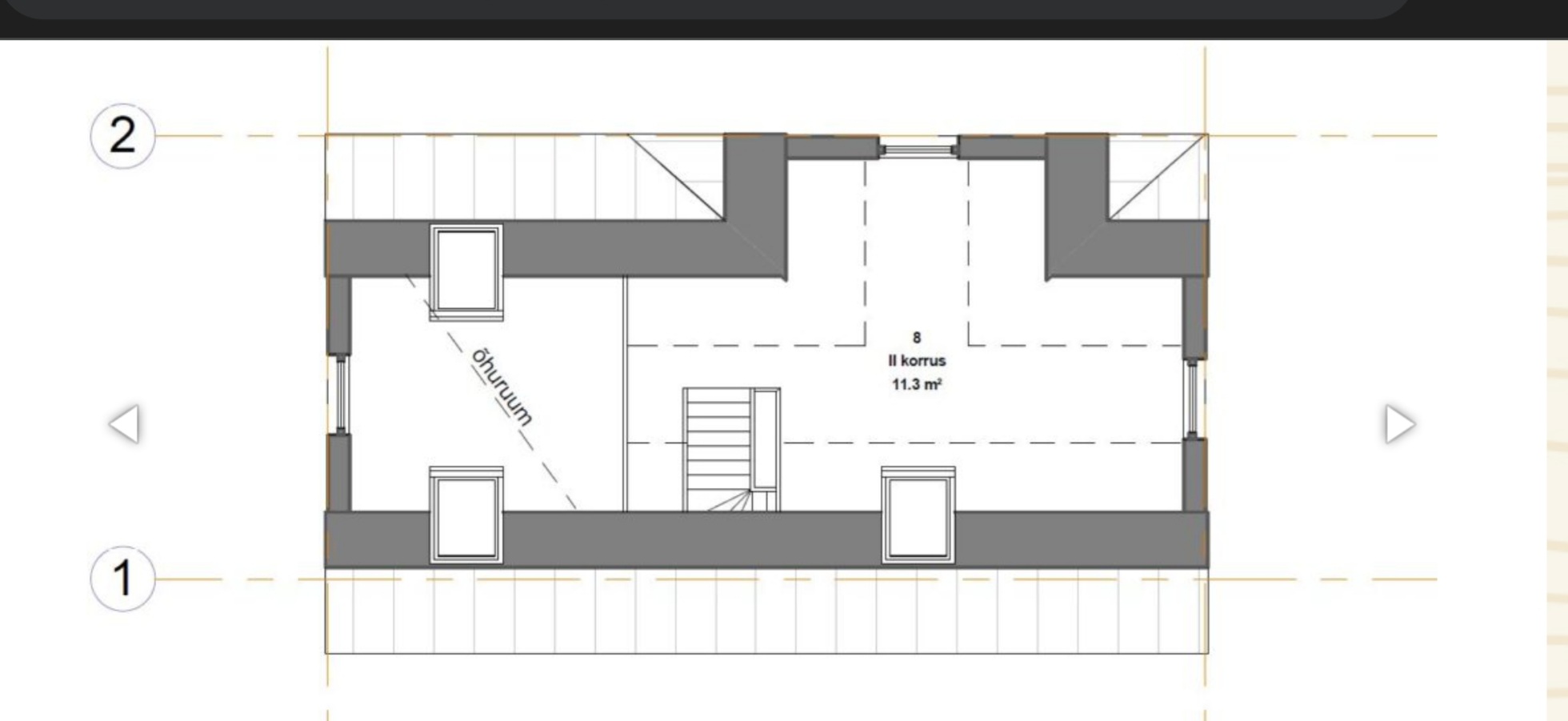
Töö sisu

Tere,
Jüri vahetus läheduses asuvale majale soovin siseviimistluse pakkumist.
Maja väljast valmis.
Olemas vahelae talad. Vaheseinte puitmaterjal. Seest valmidus kuni soojustusmaterjalini.

Kogu kipsiring
Juhtmete vedamine
karpide paigaldus
torud dušširuumi ning kööki
õhk-vesi süsteemi taha kütte radiaatori paigaldus 2.korrusele ( 1.korrus põrandaküte paigaldatud)
parketi paigaldus ca 70m2+ liistud
2/3 ulatuses vahelae paigaldus (1/3 ulatuses on avatud) avatud osa laest viimistleda
Siseuste paigaldus

Joonisel olev saun on tegelikkuses garderoobiruum, mis toast sissepääsuga.
Dušš ja wc 1 ruum, ilma vaheseinata ja vaid 1 uksega.

Palun välja tuua nii töö kui materjal eraldi.

Pildid, video ja failid

Hanke korraldaja: eraisik ID59814

Pakkumised

Pakkumisi kokku: 0

Küsimused hanke korraldajale

Hanke korraldajale ei ole veel küsimusi esitatud.

Lisa küsimus

Lisa küsimus

Minu pakkumine

Reeglid

Pakkumise kirjelduse väli on mõeldud pakkumise detailsemaks lahti kirjutamiseks. Pikema teksti mugavaks sisestamiseks klikkige kasti paremal ülaservas oleval ikoonil.
Pakkumist tehes on keelatud postitada enda kontaktandmeid (nimi, telefon, aadress jne). Me jälgime ja analüüsime pakkumisi, et vältida pettuseid ja reeglite rikkumisi.
Rikkumise puhul kasutajakonto blokeeritakse.

 

Teisi töid samas valdkonnas

Valdkonnas "Siseviimistlustööd" on 20 aktiivset tööd

Seinte pahteldus ja värvimine

Asukoht: Harjumaa, Türisalu
Aega jäänud: 2p 22h
Tehtud pakkumisi: 7

Korteri seinte ja lagede värvimine, osaline pahteldamine

Asukoht: Harjumaa, Tallinn
Aega jäänud: 22h 54 min
Tehtud pakkumisi: 4

Vanemad teated:

Vaata kõiki

Sellel veebilehel kasutatakse küpsiseid. Kasutamist jätkates nõustute küpsiste kasutamisega.

Sulge
 
Minu pakkumine

Reeglid

Pakkumise kirjelduse väli on mõeldud pakkumise detailsemaks lahti kirjutamiseks. Pikema teksti mugavaks sisestamiseks klikkige kasti paremal ülaservas oleval ikoonil.
Pakkumist tehes on keelatud postitada enda kontaktandmeid (nimi, telefon, aadress jne). Me jälgime ja analüüsime pakkumisi, et vältida pettuseid ja reeglite rikkumisi.
Rikkumise puhul kasutajakonto blokeeritakse.