+ Lisa oma töö      

Otsid ehitajat "Ventilatsiooniseadmed" valdkonnast?

Parima pakkumise ja teostaja leidmiseks lisa oma töö.

Hange on lõppenud!

Võitjaks osutus kasutaja ID 56168

Seadmete montaaz

ID 68084

491 vaatamist

Prindi

  • check Pakkumiste tegemine
    kuni 23.12.2021
  • check Võitja valik kuni
    30.12.2021
  • 3 Töö teostamine
    ja hinnang
Hanke lõpp: N, 23. detsember, 2021
Maakond: Harjumaa
Linn: Tallinn
Tööde algus: E, 17. jaanuar, 2022 (Soovituslik)
Tööde lõpp: T, 25. jaanuar, 2022 (Soovituslik)
Ehitusmaterjalid: Töö tellija poolt
Soovin pakkumisi: Summa kogu projektile

Töö sisu

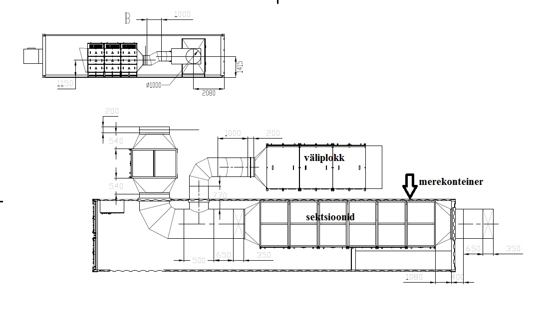
Vastavalt antud projektile ja skeemile paigaldada merekonteinerisse 6 metallist sektsiooni, vedada ventilatsiooni torustik ca 5 meetrit, lõigata konteiresisse avad. Paigaldada konteineri sisse rennid elektrikaablile ja kaablid. Valgustus ja küttekehad konteinerisse.
Konteiner asub Tallinnas Ülemistes.
Lisaks peale montaazi lõpetamist Tallinnas, tuleb Pärnus sama konteineri külge lisada ja ühendada 2 valmis sektsiooni.
Kokku tööde teostamiseks orienteeruvalt kulub 4-5 päeva Tallinnas ja 1-2 päeva Pärnus (3 inimest, üks neist on elektrik).
Tööde algus 17.jaanuaril.
NB! Ei oota kohe lõplikku pakkumist, arutame kõike kui tutvustame kogu projekti. Pigem ootame hankijat, kes oleks võimeline teostada tööd. Võimalik arutada tunnitasu alusel.

В соответсвие с предоставленным проектом и схемам установить в морской контейнер 6 металлических секций, провести вентиляционные трубы около 5 метров, вырезать в контейнере отверстия для воздуховодов. Установить лотки и в них провести кабеля. Также освещение и отопительные элементы в контейнере.
Контейнер находится в Таллине, Юлемисте, затем к этому контейнеру необходимо в Пярну подсоединить два внешних блока/секций.
Всего на работу запланирована около 4-5 дней в Таллине и 1-2 дня в Пярну (3 человека, один из них электрик).
Начало работ 17 января
NB! Не ожидаем сразу конечное предложение, все обсудим после ознакомления со всеми работами проекта, хотим найти подрядчика, готового и способного осуществить этот проект. Возможно обсудить почасовую оплату.

Pildid, video ja failid

Hanke korraldaja: eraisik ID46876

Pakkumised

Pakkumisi kokku: 1

Ettevõte Summa Käibemaks Lisatud Vestlus
Kasutaja ikoon ID56168
Pakkuja profiil Väike nool paremale
30€ Sisaldab KM Sisaldab KM 18.12.2021 Vestlus (2)

Pakkumise kirjeldus:

Tere!

30 eurot tund pluss kulumaterjalid.

Kõike head!
Hannes

Küsimused hanke korraldajale

Hanke korraldajale ei ole veel küsimusi esitatud.

Lisa küsimus

Lisa küsimus

Minu pakkumine

Reeglid

Pakkumise kirjelduse väli on mõeldud pakkumise detailsemaks lahti kirjutamiseks. Pikema teksti mugavaks sisestamiseks klikkige kasti paremal ülaservas oleval ikoonil.
Pakkumist tehes on keelatud postitada enda kontaktandmeid (nimi, telefon, aadress jne). Me jälgime ja analüüsime pakkumisi, et vältida pettuseid ja reeglite rikkumisi.
Rikkumise puhul kasutajakonto blokeeritakse.

 

Vanemad teated:

Vaata kõiki

Sellel veebilehel kasutatakse küpsiseid. Kasutamist jätkates nõustute küpsiste kasutamisega.

Sulge
 
Minu pakkumine

Reeglid

Pakkumise kirjelduse väli on mõeldud pakkumise detailsemaks lahti kirjutamiseks. Pikema teksti mugavaks sisestamiseks klikkige kasti paremal ülaservas oleval ikoonil.
Pakkumist tehes on keelatud postitada enda kontaktandmeid (nimi, telefon, aadress jne). Me jälgime ja analüüsime pakkumisi, et vältida pettuseid ja reeglite rikkumisi.
Rikkumise puhul kasutajakonto blokeeritakse.