+ Lisa oma töö      

Otsid ehitajat "Siseviimistlustööd" valdkonnast?

Parima pakkumise ja teostaja leidmiseks lisa oma töö.

Trepikodade remont

ID 68014

997 vaatamist

Prindi

  • check Pakkumiste tegemine
    kuni 11.01.2022
  • check Võitja valik kuni
    18.01.2022
  • 3 Töö teostamine
    ja hinnang
Hanke lõpp: T, 11. jaanuar, 2022
Maakond: Harjumaa
Muu asula: Kiiu
Tööde algus: T, 11. jaanuar, 2022 (Soovituslik)
Tööde lõpp: N, 31. märts, 2022 (Soovituslik)
Ehitusmaterjalid: Töö tellija poolt
Soovin pakkumisi: Summa kogu projektile

Töö sisu

KÜ ootab pakkumisi korterelamu trepikodade remondile.
- elektrijuhtmete karbikutesse paigaldus või seinasisene freesimine. El. kilpide üle värvimine
- lae ja seinte krohviparandused, pahteldus ja värvitööd
- trepikäsipuude värvimine (metall ja puitosad)
- epoksiidvärviga trepiastmed (vōimalusel tuua välja eraldi hind)

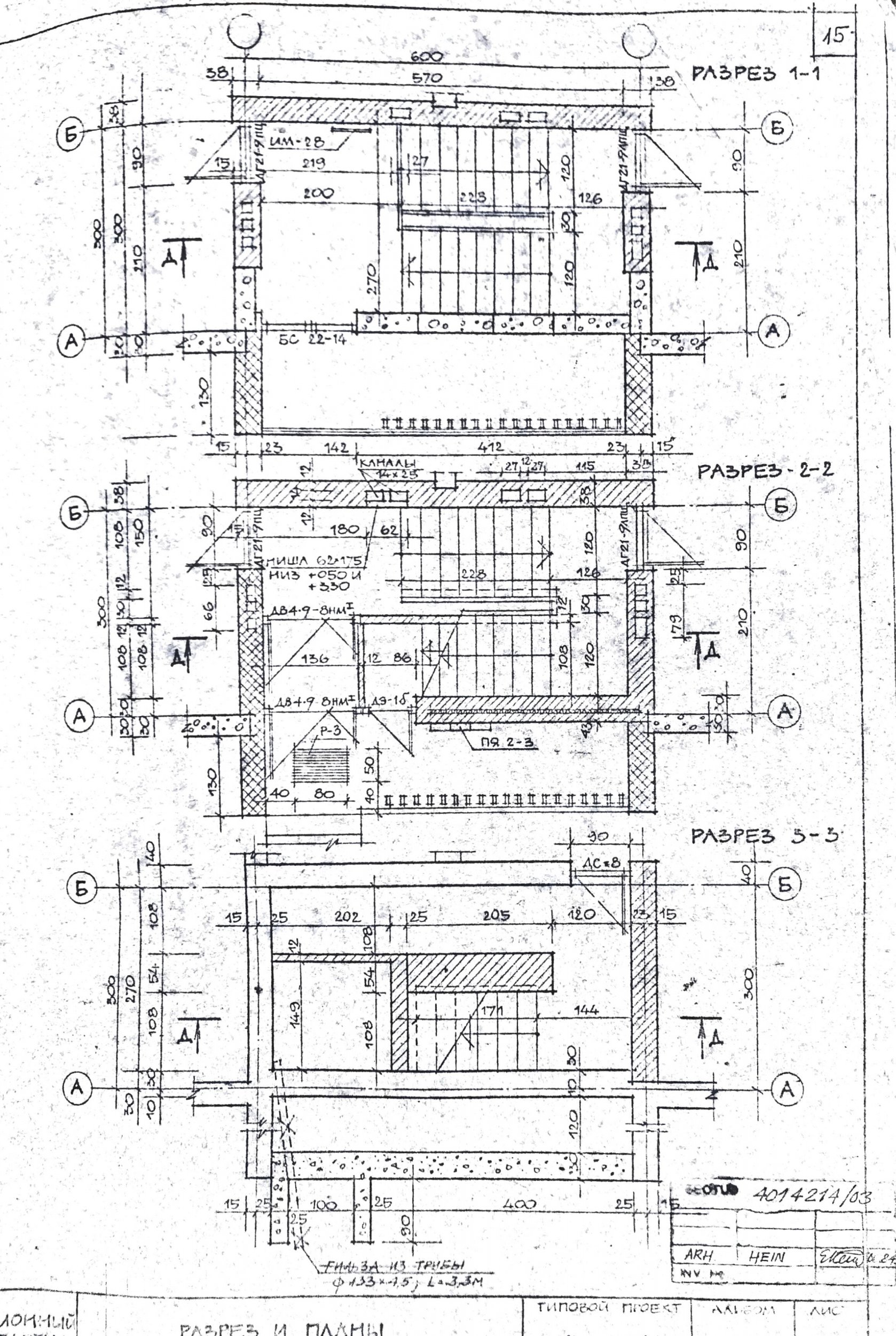
Tegemist kolmekordse eritasapinnalise ja kahe trepikojaga elamuga, kokku 10 korterit, ehitusaasta 1986.
Lisas täpsemad plaanid ja joonised koos vajalike mõõtudega. Vajadusel võimalik kohapeal hinnata ja teha vajalikud mõõdistused.
Lisatud ka referents soovitud tulemusest.

Pildid, video ja failid

Hanke korraldaja: korteriühistu ID66556

Pakkumised

Pakkumisi kokku: 2

Ettevõte Summa Käibemaks Lisatud Vestlus
Kasutaja ikoon ID54332
Pakkuja profiil Väike nool paremale
4 600€ Ikoon kell Sisaldab KM Sisaldab KM 06.01.2022 Vestlus (3)

Pakkumise kirjeldus:

Vastavalt hankele tööde teostamine hanke tellija poolsete materjalidega, kooskõlastamine materjalide objektile toimetamise osas - kas on need kättesaadavad hoiuruumis, toob need hanke tellija ise jooksvalt tööde teostamise käigus objektile või esitab tööde teostaja materjalide ostukviitungid hanke tellijale ja muud täpsustused selle protsessi korr ... Rohkem

Kasutaja ikoon ID66598
Pakkuja profiil Väike nool paremale
3 400€ Ikoon kell Sisaldab KM Sisaldab KM 11.01.2022 Vestlus (0)

Pakkumise kirjeldus:

Tere

Töödega saame alustada koheselt kui Teie rohelise tule annade.
Hind sisaldab ka epoksiidvärviga trepiastmede värvimist ja ehitusjärkset koristust.

Lugupidamisega Janek

Küsimused hanke korraldajale

Küsimus: private ID52783   03.01.2022 17:20
Tere.
Hinda pakkuda on veidi raske, kui ise ei ole näinud.
Võiksin tulla vaatama.

Teavita reeglite rikkumisest

Korraldaja vastus: 04.01.2022 11:22

Tere

Trepikojad on avatud, võite helistada ning vaatama tulla.
Kahjuks ei saa ise teid hetkel vastu võtta, kuna haige.

Terv
Rain

Teavita reeglite rikkumisest

Lisa küsimus

Lisa küsimus

Minu pakkumine

Reeglid

Pakkumise kirjelduse väli on mõeldud pakkumise detailsemaks lahti kirjutamiseks. Pikema teksti mugavaks sisestamiseks klikkige kasti paremal ülaservas oleval ikoonil.
Pakkumist tehes on keelatud postitada enda kontaktandmeid (nimi, telefon, aadress jne). Me jälgime ja analüüsime pakkumisi, et vältida pettuseid ja reeglite rikkumisi.
Rikkumise puhul kasutajakonto blokeeritakse.

 

Teisi töid samas valdkonnas

Valdkonnas "Siseviimistlustööd" on 24 aktiivset tööd

Seinte värvimine

Asukoht: Harjumaa, Tallinn
Aega jäänud: 1h 29 min
Tehtud pakkumisi: 7

Seinte pahteldus ja värvimine

Asukoht: Harjumaa, Türisalu
Aega jäänud: 3p 1h
Tehtud pakkumisi: 7

Vanemad teated:

Vaata kõiki

Sellel veebilehel kasutatakse küpsiseid. Kasutamist jätkates nõustute küpsiste kasutamisega.

Sulge
 
Minu pakkumine

Reeglid

Pakkumise kirjelduse väli on mõeldud pakkumise detailsemaks lahti kirjutamiseks. Pikema teksti mugavaks sisestamiseks klikkige kasti paremal ülaservas oleval ikoonil.
Pakkumist tehes on keelatud postitada enda kontaktandmeid (nimi, telefon, aadress jne). Me jälgime ja analüüsime pakkumisi, et vältida pettuseid ja reeglite rikkumisi.
Rikkumise puhul kasutajakonto blokeeritakse.