+ Lisa oma töö      

Otsid ehitajat "Sanitaartehnilised tööd" valdkonnast?

Parima pakkumise ja teostaja leidmiseks lisa oma töö.

Majasisese vee-kanali ja põrandakütte paigaldustööd

ID 67936

932 vaatamist

Prindi

  • check Pakkumiste tegemine
    kuni 10.12.2021
  • check Võitja valik kuni
    17.12.2021
  • 3 Töö teostamine
    ja hinnang
Hanke lõpp: R, 10. detsember, 2021
Maakond: Harjumaa
Linn: Tallinn
Tööde algus: K, 15. detsember, 2021 (Soovituslik)
Tööde lõpp: R, 31. detsember, 2021 (Soovituslik)
Ehitusmaterjalid: Töö tegija poolt
Soovin pakkumisi: Tüki- või ühikuhinda

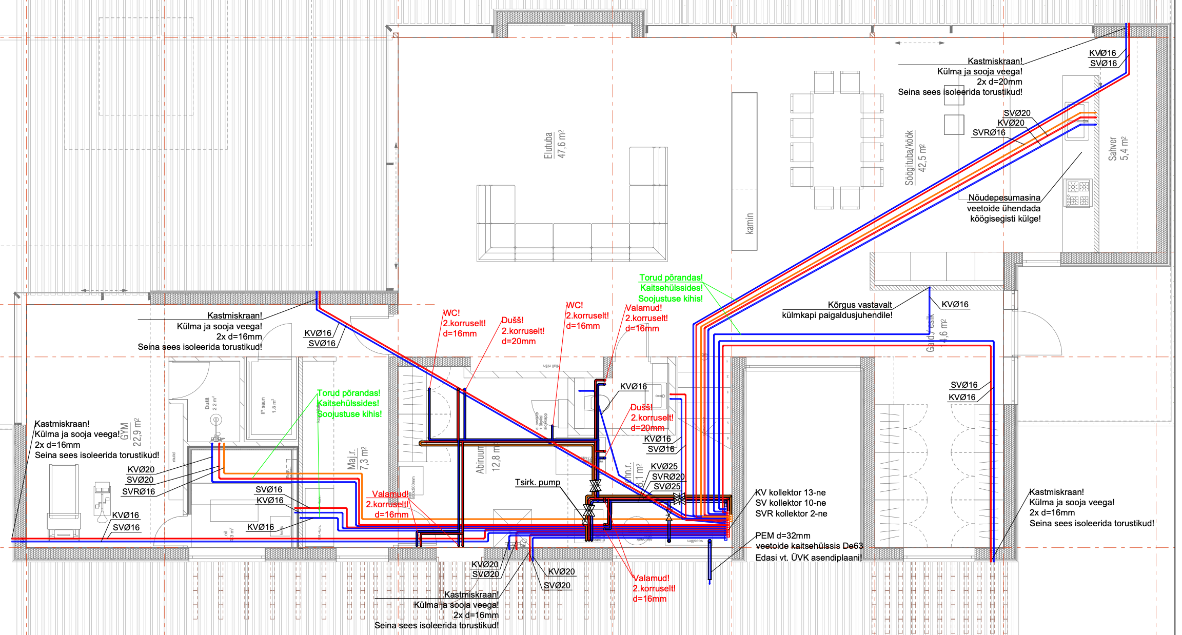
Töö sisu

Ehitatava 2k eramu sisene vesi-kanal ja põrandaküte (põrandasisesed, aknaalused konvektorid ja põrandaküte) Töö eeldab 2-3 mehe kvaliteetset töökogemust ja puhast “käekirja”, maht ca 4 päeva. Materjalid vajadusel tellijalt. Kõik töövahendid teostajatelt. Projektid olemas. Töötunni hind 25 eur neto. Töö teostamise alates 15.detsember. Objekt Tallinnas, Pirital.

Pildid, video ja failid

Hanke korraldaja: eraisik ID59409

Pakkumised

Pakkumisi kokku: 0

Küsimused hanke korraldajale

Küsimus: private ID28626   08.12.2021 07:09
Palun lisada põrandakütteprojekti joonised.

Teavita reeglite rikkumisest

Korraldaja vastus: 09.12.2021 11:42

Teostate nii vee-kanali, kui põrandakütte paigaldusi?

Teavita reeglite rikkumisest

Küsimus: private ID66408   10.12.2021 06:17
Tere,kas on võimalik lisada dwg failid?

Teavita reeglite rikkumisest

Korraldaja vastus: 10.12.2021 10:38

Hetkel mitte. Töö sisu on lisatud joonistelt nähtav. Kui konkreetselt asjaks läheb, siis jagan lisamaterjale.

Teavita reeglite rikkumisest

Lisa küsimus

Lisa küsimus

Minu pakkumine

Reeglid

Pakkumise kirjelduse väli on mõeldud pakkumise detailsemaks lahti kirjutamiseks. Pikema teksti mugavaks sisestamiseks klikkige kasti paremal ülaservas oleval ikoonil.
Pakkumist tehes on keelatud postitada enda kontaktandmeid (nimi, telefon, aadress jne). Me jälgime ja analüüsime pakkumisi, et vältida pettuseid ja reeglite rikkumisi.
Rikkumise puhul kasutajakonto blokeeritakse.

 

Teisi töid samas valdkonnas

Valdkonnas "Sanitaartehnilised tööd" on 3 aktiivset tööd

Vee- ja kanalisatsioonipüstikute vahetus

Asukoht: Harjumaa, Tallinn
Aega jäänud: 25p 1h
Tehtud pakkumisi: 3

Vannitoa dušinurga paigaldus ja veevõtu torude ümberehitus uue dušinurga ühendamiseks

Asukoht: Harjumaa, Salmistu
Aega jäänud: 7p 1h
Tehtud pakkumisi: 2

Vanemad teated:

Vaata kõiki

Sellel veebilehel kasutatakse küpsiseid. Kasutamist jätkates nõustute küpsiste kasutamisega.

Sulge
 
Minu pakkumine

Reeglid

Pakkumise kirjelduse väli on mõeldud pakkumise detailsemaks lahti kirjutamiseks. Pikema teksti mugavaks sisestamiseks klikkige kasti paremal ülaservas oleval ikoonil.
Pakkumist tehes on keelatud postitada enda kontaktandmeid (nimi, telefon, aadress jne). Me jälgime ja analüüsime pakkumisi, et vältida pettuseid ja reeglite rikkumisi.
Rikkumise puhul kasutajakonto blokeeritakse.