+ Lisa oma töö      

Otsid ehitajat "Siseviimistlustööd" valdkonnast?

Parima pakkumise ja teostaja leidmiseks lisa oma töö.

Maaler 1 toaline Põhja Tln

ID 67908

595 vaatamist

Prindi

  • check Pakkumiste tegemine
    kuni 08.12.2021
  • check Võitja valik kuni
    15.12.2021
  • 3 Töö teostamine
    ja hinnang
Hanke lõpp: K, 8. detsember, 2021
Maakond: Harjumaa
Linn: Tallinn
Tööde algus: K, 08. detsember, 2021 (Soovituslik)
Tööde lõpp: R, 31. detsember, 2021 (Soovituslik)
Ehitusmaterjalid: Töö tellija poolt
Soovin pakkumisi: Summa kogu projektile

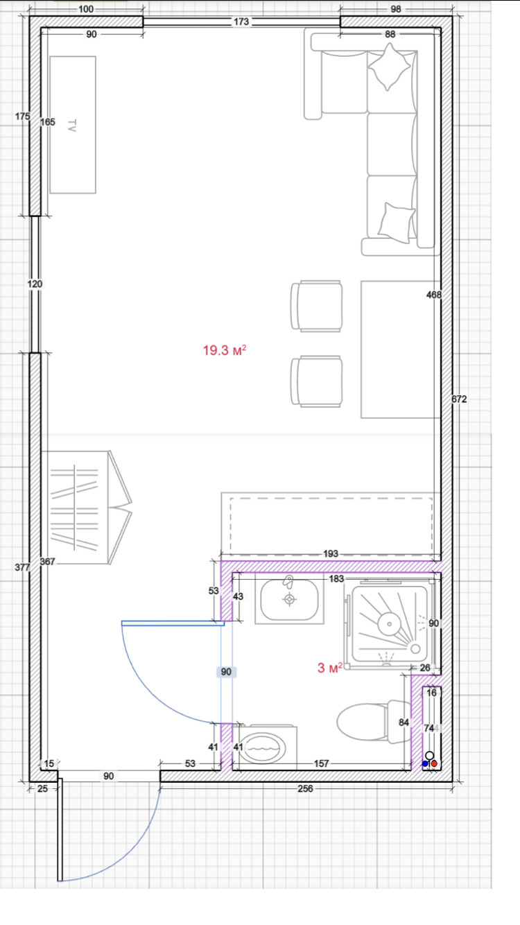
Töö sisu

Otsin maaler.

-lae värvimine
-seina värvimine
-aknad viimistleda ja värvida
-tapeedid seinale kus on güprok.

Pildid, video ja failid

Hanke korraldaja: eraisik ID66490

Pakkumised

Pakkumisi kokku: 5

Ettevõte Summa Käibemaks Lisatud Vestlus
Kasutaja ikoon ID47549
Pakkuja profiil Väike nool paremale
2 700€ KM lisandub KM lisandub 07.12.2021 Vestlus (0)

Pakkumise kirjeldus:

Hinnapakkumine maalritöödele sisaldab materjale, välja arvatud tapeeti. Peale objektiga tutvumist võib hind muutuda. Võimalik on alustada lähi päevil. Lugupidamisega Siim.

Kasutaja ikoon ID65929
Pakkuja profiil Väike nool paremale
1 900€ Sisaldab KM Sisaldab KM 08.12.2021 Vestlus (0)

Pakkumise kirjeldus:

Tere
Minu pakkumine hankes olevale töödele.
Lugupidamisega Joonas

Kasutaja ikoon ID62644
Pakkuja profiil Väike nool paremale
2 600€ Sisaldab KM Sisaldab KM 08.12.2021 Vestlus (0)

Pakkumise kirjeldus:

Pakkumine soovitud töödele, töid teostavad pikkaajalise kogemuse ja vastava pädevusega isikud.
Vastame ka meeleldi lisaküsimustele.

Lgp,
Aleksander.

Kasutaja ikoon ID44917
Pakkuja profiil Väike nool paremale
2 000€ Sisaldab KM Sisaldab KM 08.12.2021 Vestlus (0)
Kasutaja ikoon ID56337
Pakkuja profiil Väike nool paremale
2 000€ Ikoon kell Ei ole KMKR Ei ole KMKR 08.12.2021 Vestlus (0)

Pakkumise kirjeldus:

Tere

Pakkumine sisaldab:

* Pindade kinni katmist määrdumise eest
*Pindade ettevalmistust
* Seinte krohvimist(MP75)(Olenevalt kus tarvis)(aknapaled= kips+võrk+mp75+metallnurgad)
*Seinte lauspahteldust(Lr+)
*Uksepalede pahteldus(Lr+)
*Aknapalede pahteldus(Lr+)
*Seinte/lagede lihvimine
*Seinte/Lagede värvimine(Siro2)
* Koristustööd
* Prahi ... Rohkem

Küsimused hanke korraldajale

Küsimus: private ID47549   07.12.2021 09:50
Tere, millised on täpsemad mahud. Oleks võimalik tegutseda koheselt, tekkis kahe nädalane auk.

Teavita reeglite rikkumisest

Korraldaja vastus: 07.12.2021 09:58

Tere. Lisasin 2 pildi juurde.

Teavita reeglite rikkumisest

Küsimus: private ID44917   08.12.2021 10:16
Tere, meie pakkumisele ei lisandu km ja pakkumine ei sisalda km.

Teavita reeglite rikkumisest

Korraldaja vastus:
Hanke korraldaja ei ole küsimusele veel vastanud

Lisa küsimus

Lisa küsimus

Minu pakkumine

Reeglid

Pakkumise kirjelduse väli on mõeldud pakkumise detailsemaks lahti kirjutamiseks. Pikema teksti mugavaks sisestamiseks klikkige kasti paremal ülaservas oleval ikoonil.
Pakkumist tehes on keelatud postitada enda kontaktandmeid (nimi, telefon, aadress jne). Me jälgime ja analüüsime pakkumisi, et vältida pettuseid ja reeglite rikkumisi.
Rikkumise puhul kasutajakonto blokeeritakse.

 

Teisi töid samas valdkonnas

Valdkonnas "Siseviimistlustööd" on 24 aktiivset tööd

Seinte värvimine

Asukoht: Harjumaa, Tallinn
Aega jäänud: 1h 25 min
Tehtud pakkumisi: 7

Seinte pahteldus ja värvimine

Asukoht: Harjumaa, Türisalu
Aega jäänud: 3p 1h
Tehtud pakkumisi: 7

Vanemad teated:

Vaata kõiki

Sellel veebilehel kasutatakse küpsiseid. Kasutamist jätkates nõustute küpsiste kasutamisega.

Sulge
 
Minu pakkumine

Reeglid

Pakkumise kirjelduse väli on mõeldud pakkumise detailsemaks lahti kirjutamiseks. Pikema teksti mugavaks sisestamiseks klikkige kasti paremal ülaservas oleval ikoonil.
Pakkumist tehes on keelatud postitada enda kontaktandmeid (nimi, telefon, aadress jne). Me jälgime ja analüüsime pakkumisi, et vältida pettuseid ja reeglite rikkumisi.
Rikkumise puhul kasutajakonto blokeeritakse.