+ Lisa oma töö      

Otsid ehitajat "Müüritööd" valdkonnast?

Parima pakkumise ja teostaja leidmiseks lisa oma töö.

Müüritööd

ID 67824

756 vaatamist

Prindi

  • check Pakkumiste tegemine
    kuni 15.12.2021
  • check Võitja valik kuni
    22.12.2021
  • 3 Töö teostamine
    ja hinnang
Hanke lõpp: K, 15. detsember, 2021
Maakond: Harjumaa
Linn: Tallinn
Tööde algus: T, 14. detsember, 2021 (Soovituslik)
Tööde lõpp: K, 05. jaanuar, 2022 (Soovituslik)
Ehitusmaterjalid: Töö tegija poolt
Soovin pakkumisi: Summa kogu projektile

Töö sisu

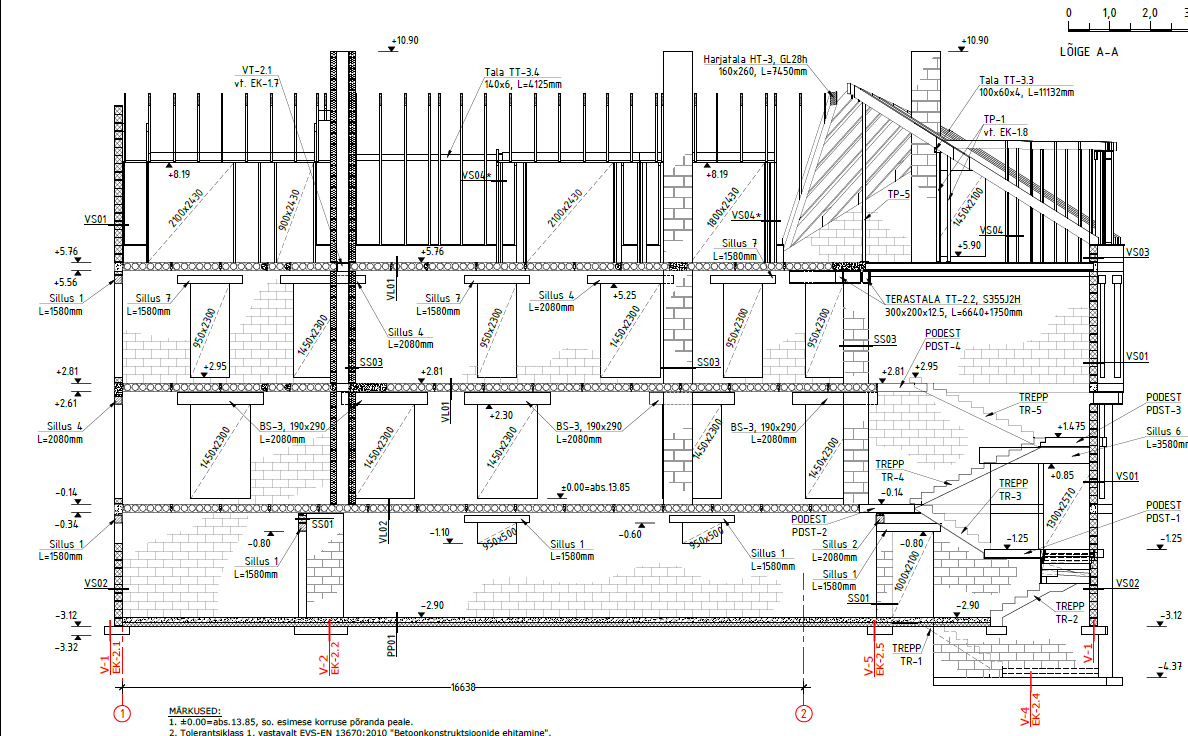
Müüritööd (betoonkivi õõnesplokk 190mm maht 180m2, 240mm 32m2, betoneeritud) koos silluste paigaldamisega. Müüri kõrgus 0 korrusel 2,54m ja 1 korrusel 2,75m.

Materjali tarne kokkuleppel. Soovi korral võib tellija tarnida põhimaterjalid (kivi, mört, armatuur, betoon, sillused).

Objektil tööde maht suurem ja koostöö sobivusel on mahud suuremad (ca 600m2 müüritöid kokku).

Pildid, video ja failid

Hanke korraldaja: ettevõte ID56602

Pakkumised

Pakkumisi kokku: 1

Ettevõte Summa Käibemaks Lisatud Vestlus
Kasutaja ikoon ID66314
Pakkuja profiil Väike nool paremale
7 376€ KM lisandub KM lisandub 04.12.2021 Vestlus (6)

Pakkumise kirjeldus:

Suurte kogemustega meeskond kiire ja kvaliteetselt valmistab müüritööd. Hinna sees ainult tööd ilma materjalideta, kui see sobib teile, siis töötame.

Küsimused hanke korraldajale

Küsimus: private ID64930   01.12.2021 19:32
Tere kas olete leidnud töö tegia

Teavita reeglite rikkumisest

Korraldaja vastus: 02.12.2021 07:25

Tere. Lepingut ei ole sõlmitud ja ootan pakkumisi.

Teavita reeglite rikkumisest

Lisa küsimus

Lisa küsimus

Minu pakkumine

Reeglid

Pakkumise kirjelduse väli on mõeldud pakkumise detailsemaks lahti kirjutamiseks. Pikema teksti mugavaks sisestamiseks klikkige kasti paremal ülaservas oleval ikoonil.
Pakkumist tehes on keelatud postitada enda kontaktandmeid (nimi, telefon, aadress jne). Me jälgime ja analüüsime pakkumisi, et vältida pettuseid ja reeglite rikkumisi.
Rikkumise puhul kasutajakonto blokeeritakse.

 

Vanemad teated:

Vaata kõiki

Sellel veebilehel kasutatakse küpsiseid. Kasutamist jätkates nõustute küpsiste kasutamisega.

Sulge
 
Minu pakkumine

Reeglid

Pakkumise kirjelduse väli on mõeldud pakkumise detailsemaks lahti kirjutamiseks. Pikema teksti mugavaks sisestamiseks klikkige kasti paremal ülaservas oleval ikoonil.
Pakkumist tehes on keelatud postitada enda kontaktandmeid (nimi, telefon, aadress jne). Me jälgime ja analüüsime pakkumisi, et vältida pettuseid ja reeglite rikkumisi.
Rikkumise puhul kasutajakonto blokeeritakse.