+ Lisa oma töö      

Otsid ehitajat "Arhitektibürood" valdkonnast?

Parima pakkumise ja teostaja leidmiseks lisa oma töö.

Hange on lõppenud!

Võitjaks osutus kasutaja ID 63676

Korraldaja hinnang tehtud tööle

5.0
05.04.2022
Töökiirus: 12345
Kvaliteet: 12345
Hind: 12345

Olen rahul! - Pille A.

Vana projekti digitaliseerimine

ID 67505

821 vaatamist

Prindi

  • check Pakkumiste tegemine
    kuni 24.11.2021
  • check Võitja valik kuni
    24.11.2021
  • 3 Töö teostamine
    ja hinnang
Hanke lõpp: K, 24. november, 2021
Maakond: Harjumaa
Linn: Tallinn
Tööde algus: R, 19. november, 2021 (Soovituslik)
Tööde lõpp: T, 30. november, 2021 (Soovituslik)
Ehitusmaterjalid: Töö tegija poolt
Soovin pakkumisi: Summa kogu projektile

Töö sisu

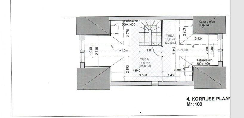
Paberkandjal oleva elamu projekti digitaliseerimine

Pildid, video ja failid

Hanke korraldaja: eraisik ID66250

Pakkumised

Pakkumisi kokku: 6

Ettevõte Summa Käibemaks Lisatud Vestlus
Kasutaja ikoon ID62360
Pakkuja profiil Väike nool paremale
500€ Ikoon kell KM lisandub KM lisandub 19.11.2021 Vestlus (4)

Pakkumise kirjeldus:

Töö võtab ca. 3-4 tööpäeva.

Kasutaja ikoon ID63676
Pakkuja profiil Väike nool paremale
480€ Ei ole KMKR Ei ole KMKR 20.11.2021 Vestlus (10)

Pakkumise kirjeldus:

Pakkumine sisaldab paberkandjal projekti digitaliseerimist. Pakkumine ei sisalda eraldi mõõdistamist.

Pakkumine sisaldab jooniste digitaliseerimist ja dokumentatsiooni digitaliseerimist.

Kasutaja ikoon ID47813
Pakkuja profiil Väike nool paremale
500€ Ei ole KMKR Ei ole KMKR 20.11.2021 Vestlus (2)

Pakkumise kirjeldus:

Tere

Hinnapakkumine sisaldab teie poolt saadetud projekti PDF või fotode digitaliseerimist. Valmis töö esitatakse DWG formaadis.

KM ei lisandu

Kasutaja ikoon ID64534
Pakkuja profiil Väike nool paremale
450€ Ei ole KMKR Ei ole KMKR 21.11.2021 Vestlus (3)

Pakkumise kirjeldus:

Teeksime joonised AutoCadiga. Majandusruumide korruse foto on väga viletsa kvaliteediga siin keskkonnas, juhul kui võidame, siis enne arvutisse ümberjoonistamist sooviks võimaluse korral paremat koopiat, võib ka paberkujul (Tallinnas).

Kasutaja ikoon ID66301
Pakkuja profiil Väike nool paremale
525€ Ei ole KMKR Ei ole KMKR 24.11.2021 Vestlus (0)

Pakkumise kirjeldus:

Ei sisaldaks: lõiked, vaateid. Ei ole ametlik inventariseerimis ega mõõdistus joonis. Ei sisaldaks MTR pädeva alkirjaga joonist. Ei sisalda kohapealseid käimist. Vormistamine AutoCad joonisena digitaalsena. Valmis 3-4 päeva.

Kasutaja ikoon ID58268
Pakkuja profiil Väike nool paremale
400€ Ei ole KMKR Ei ole KMKR 24.11.2021 Vestlus (0)

Pakkumise kirjeldus:

Tere, Pakkumise sees on vana projekti digitaliseerimine.Kuna projektiga on kiire, siis sooviks ei kõik vajalikud dokumendid oli piltidega e-mailile saadetud koos vajaliku muudatustega (või skaneritud). Dokumentide põhjal koostan 3 D mudeli ja ettevalmistan joonised.

Küsimused hanke korraldajale

Küsimus: private ID58268   22.11.2021 09:42
Tere, missugused on tööde teostamiseks tähtajad?

Teavita reeglite rikkumisest

Korraldaja vastus: 22.11.2021 17:53

Mida varem seda parem - max 1,5 nädalaga oleks vaja kahjuks juba.

Teavita reeglite rikkumisest

Lisa küsimus

Lisa küsimus

Minu pakkumine

Reeglid

Pakkumise kirjelduse väli on mõeldud pakkumise detailsemaks lahti kirjutamiseks. Pikema teksti mugavaks sisestamiseks klikkige kasti paremal ülaservas oleval ikoonil.
Pakkumist tehes on keelatud postitada enda kontaktandmeid (nimi, telefon, aadress jne). Me jälgime ja analüüsime pakkumisi, et vältida pettuseid ja reeglite rikkumisi.
Rikkumise puhul kasutajakonto blokeeritakse.

 

Vanemad teated:

Vaata kõiki

Sellel veebilehel kasutatakse küpsiseid. Kasutamist jätkates nõustute küpsiste kasutamisega.

Sulge
 
Minu pakkumine

Reeglid

Pakkumise kirjelduse väli on mõeldud pakkumise detailsemaks lahti kirjutamiseks. Pikema teksti mugavaks sisestamiseks klikkige kasti paremal ülaservas oleval ikoonil.
Pakkumist tehes on keelatud postitada enda kontaktandmeid (nimi, telefon, aadress jne). Me jälgime ja analüüsime pakkumisi, et vältida pettuseid ja reeglite rikkumisi.
Rikkumise puhul kasutajakonto blokeeritakse.