+ Lisa oma töö      

Otsid ehitajat "Eramu ehitus" valdkonnast?

Parima pakkumise ja teostaja leidmiseks lisa oma töö.

Uue maja ehitus

ID 67314

969 vaatamist

Prindi

  • check Pakkumiste tegemine
    kuni 12.12.2021
  • check Võitja valik kuni
    19.12.2021
  • 3 Töö teostamine
    ja hinnang
Hanke lõpp: P, 12. detsember, 2021
Maakond: Harjumaa
Muu asula: Anija
Tööde algus: N, 16. detsember, 2021 (Soovituslik)
Tööde lõpp: R, 16. detsember, 2022 (Soovituslik)
Ehitusmaterjalid: Töö tellija poolt
Soovin pakkumisi: Summa kogu projektile

Töö sisu

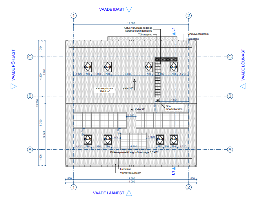
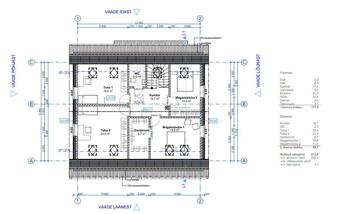
212m2 maja ning piirdeaia ehitus Harjumaal.
Geodeetilised tööd on tehtud, ehitusluba käes. Indikatiivne mahutabel manuses.

Hind võiks olla materjalid + tööd ning tööd eraldi.

Pildid, video ja failid

Hanke korraldaja: eraisik ID47412

Pakkumised

Pakkumisi kokku: 1

Ettevõte Summa Käibemaks Lisatud Vestlus
Kasutaja ikoon ID46190
Pakkuja profiil Väike nool paremale
215 000€ KM lisandub KM lisandub 19.11.2021 Vestlus (0)

Pakkumise kirjeldus:

1500 €/m2 (töö+materjal)
18 €/inimtund (töö)

Küsimused hanke korraldajale

Küsimus: private ID44110   14.11.2021 19:06
Tere ! Täpsustage palun piirdeaia mahud. Palju on puitaial ja võrkaial jooksvaid meetreid ?
Kas võrkaed on keevispaneel, rullvõrk vmt ?

Teavita reeglite rikkumisest

Korraldaja vastus: 14.11.2021 19:39

Tere, puitaed kokku ~100m, keevispaneel kokku ~223m. 5 jalgväravat + 1 autovärav automaatikaga. Asendiplaan lisatud hankesse.

Teavita reeglite rikkumisest

Küsimus: private ID44110   14.11.2021 19:42
Mis on keevispaneeli värv .... RAL6005 roheline ?

Teavita reeglite rikkumisest

Korraldaja vastus: 14.11.2021 19:59

RAL9005 Must

Teavita reeglite rikkumisest

Küsimus: private ID58131   16.11.2021 08:57
Tere!

Kas on võimalik saada joonised .DWG formaadis?

Teavita reeglite rikkumisest

Korraldaja vastus: 17.11.2021 08:46

Tere

lisatud hankesse.

Teavita reeglite rikkumisest

Lisa küsimus

Lisa küsimus

Minu pakkumine

Reeglid

Pakkumise kirjelduse väli on mõeldud pakkumise detailsemaks lahti kirjutamiseks. Pikema teksti mugavaks sisestamiseks klikkige kasti paremal ülaservas oleval ikoonil.
Pakkumist tehes on keelatud postitada enda kontaktandmeid (nimi, telefon, aadress jne). Me jälgime ja analüüsime pakkumisi, et vältida pettuseid ja reeglite rikkumisi.
Rikkumise puhul kasutajakonto blokeeritakse.

 

Vanemad teated:

Vaata kõiki

Sellel veebilehel kasutatakse küpsiseid. Kasutamist jätkates nõustute küpsiste kasutamisega.

Sulge
 
Minu pakkumine

Reeglid

Pakkumise kirjelduse väli on mõeldud pakkumise detailsemaks lahti kirjutamiseks. Pikema teksti mugavaks sisestamiseks klikkige kasti paremal ülaservas oleval ikoonil.
Pakkumist tehes on keelatud postitada enda kontaktandmeid (nimi, telefon, aadress jne). Me jälgime ja analüüsime pakkumisi, et vältida pettuseid ja reeglite rikkumisi.
Rikkumise puhul kasutajakonto blokeeritakse.