+ Lisa oma töö      

Otsid ehitajat "Viimistlustööd" valdkonnast?

Parima pakkumise ja teostaja leidmiseks lisa oma töö.

Vannitoa renoveerimine

ID 67217

498 vaatamist

Prindi

  • check Pakkumiste tegemine
    kuni 16.11.2021
  • check Võitja valik kuni
    23.11.2021
  • 3 Töö teostamine
    ja hinnang
Hanke lõpp: T, 16. november, 2021
Maakond: Harjumaa
Linn: Tallinn
Tööde algus: L, 27. november, 2021 (Soovituslik)
Tööde lõpp: P, 12. detsember, 2021 (Soovituslik)
Ehitusmaterjalid: Töö tegija poolt
Soovin pakkumisi: Summa kogu projektile

Töö sisu

Kesklinnas asuvas korteris on vaja teha renoveerimistööd peale küttetorustike vahetust. Põhimõtteliselt on kolm positsiooni:

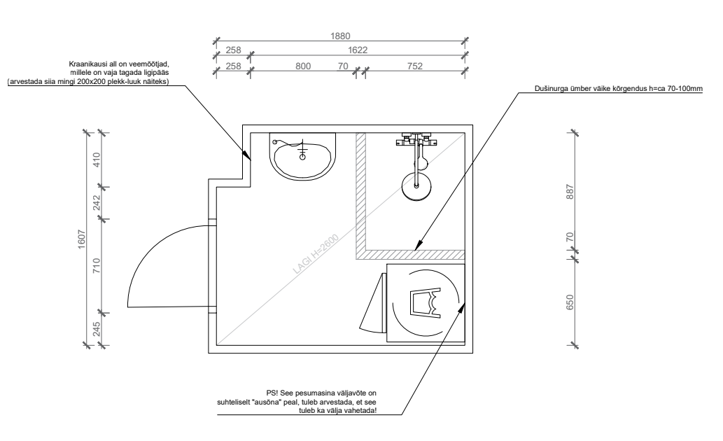
1. Vannituba (tuleks täielikult renoveerida). Seinad plaadime üle ja põrand oleks vaja täielikult välja vahetada + el. põrandküttekontuur. Lagi võimalusel säilitada kui ei saa, siis läheb vahetusse.
Ehitusmaterjalid, mis on töö tellija poolt - põrandaplaat (30x30), seinaplaadid (40x25), lae materjal (vajadusel).

2. Kööginurgas olev aknapõsk. Tuleb viimistleda ja taastada.

3. Magamistoas kahe akna vahel olev seina osa. Ei taasta tapeediga, värvime lihtsalt üle.

Töö hinda tuleks arvestada ka seinte avamine eelnevalt küttetorustiku paigaldajatele.

Hetkel peaks torustike vahetus olema 29.11-01.12, ehk enne seda oleks vaja lammutada ja peale seda taastada. Graafik võib muutuda!

Tasuta parkimine!

Pildid, video ja failid

Hanke korraldaja: eraisik ID66098

Pakkumised

Pakkumisi kokku: 2

Ettevõte Summa Käibemaks Lisatud Vestlus
Kasutaja ikoon ID58038
Pakkuja profiil Väike nool paremale
6 600€ Sisaldab KM Sisaldab KM 16.11.2021 Vestlus (0)
Kasutaja ikoon ID55746
Pakkuja profiil Väike nool paremale
6 000€ Ei ole KMKR Ei ole KMKR 16.11.2021 Vestlus (0)

Pakkumise kirjeldus:

Tere,

Oleme meeskond kes teab ja tunneb oma ala töid. Meie teenusega kaasneb ka garantii 2 aastat. Saame aidata ka teiste erinevate töödega kui teil peaks vaja minema.

Olemas ka referentsid!


Meil käibemaksu juurde ei lisandu

Küsimused hanke korraldajale

Küsimus: private ID58038   14.11.2021 14:30
Tere.
1.mitu ruutmeetrit vannitoa põrandal ?
2.mitu ruutmeetrit seinaava soojustorude jaoks tuleb lahti võtta ?

Lgp.

Teavita reeglite rikkumisest

Korraldaja vastus: 15.11.2021 08:52

Tere!

1. Vannituba on 3m2 (vannitoa plaan on pdf'na lisas näete sealt täpseid mõõte.
2. Kahjuks ma ei julge midagi kindlat öelda, aga eeldan, et kuskil 2-3m2.

Teavita reeglite rikkumisest

Küsimus: private ID58038   15.11.2021 11:19
Tere.
Jah,vabandust,ma ei pööranud tähelepanu.

Lgp.

Teavita reeglite rikkumisest

Korraldaja vastus: 15.11.2021 17:22

Tere! Sain just kinnituse, et graafik jääb täpselt nii. Ehk torustiku vahetus on vahemikus 29.11-02.12!

Teavita reeglite rikkumisest

Küsimus: private ID58038   15.11.2021 18:37
Tere.
Ok. Aitäh.

Teavita reeglite rikkumisest

Korraldaja vastus:
Hanke korraldaja ei ole küsimusele veel vastanud

Lisa küsimus

Lisa küsimus

Minu pakkumine

Reeglid

Pakkumise kirjelduse väli on mõeldud pakkumise detailsemaks lahti kirjutamiseks. Pikema teksti mugavaks sisestamiseks klikkige kasti paremal ülaservas oleval ikoonil.
Pakkumist tehes on keelatud postitada enda kontaktandmeid (nimi, telefon, aadress jne). Me jälgime ja analüüsime pakkumisi, et vältida pettuseid ja reeglite rikkumisi.
Rikkumise puhul kasutajakonto blokeeritakse.

 

Vanemad teated:

Vaata kõiki

Sellel veebilehel kasutatakse küpsiseid. Kasutamist jätkates nõustute küpsiste kasutamisega.

Sulge
 
Minu pakkumine

Reeglid

Pakkumise kirjelduse väli on mõeldud pakkumise detailsemaks lahti kirjutamiseks. Pikema teksti mugavaks sisestamiseks klikkige kasti paremal ülaservas oleval ikoonil.
Pakkumist tehes on keelatud postitada enda kontaktandmeid (nimi, telefon, aadress jne). Me jälgime ja analüüsime pakkumisi, et vältida pettuseid ja reeglite rikkumisi.
Rikkumise puhul kasutajakonto blokeeritakse.