+ Lisa oma töö      

Otsid ehitajat "Korterite remont" valdkonnast?

Parima pakkumise ja teostaja leidmiseks lisa oma töö.

Hange on lõppenud!

Võitjaks osutus kasutaja ID 56337

Korraldaja hinnang tehtud tööle

2.7
03.01.2022
Töökiirus: 12345
Kvaliteet: 12345
Hind: 12345

+töö algas kiiresti ja töömehed töötasid väga kiiresti +pikad töö vahetused -naabrid olid öise müraga rahulolematu -täpsuse ja hilinemiste õigeaegse hoiatamise puudumine -koristus oli tegemata, kuid koristus tööd olid tellitud -kogu prügi oli jäänud ruumi keskelt, kuid prügi äravedu oli hinnapakkumise sees - oli tellitud kipsitööd, kuid kipsplaadiga töömehed tööd teha ei oska (osa tellitud ja makstud töö eest jäi tegemata) - oli tellitud seina kruntimine/värvimine, kuid osa seinad jäid tegemata, sest värv sai otsa ja lisa aega neil ei olnud - oli tellitud aknapalede krohvimine ja pahteldus, aga tööd tehti väga halvasti (tohutud vahed ja krunti ei olnud) - osad tellitud tööst oli tegemata (radiaatorite nishid, ühenduskoht seina ja põranda vehel vana liistide kohal jäi lihtsalt tegemata) - kogu põrand on värviga peitsitud, kuid oli ostetud ja kasutatud kaitsepaber - kuna materjalid olid meie poolt siis kõik tööriistad oli vaja ka osta ja peale kasutamist läks kõik prügikasti, sest ehitajad ei koristanud enda järelt midagi, vaid viskasid kipsi lihtsalt ämbritesse külmuma - kõikide seadmete (puhurid, niiskusekoguja) eest tuli tellijal lisaks maksta - Alice P.

Korteri sisetööd

ID 67198

871 vaatamist

Prindi

  • check Pakkumiste tegemine
    kuni 11.11.2021
  • check Võitja valik kuni
    18.11.2021
  • 3 Töö teostamine
    ja hinnang
Hanke lõpp: N, 11. november, 2021
Maakond: Ida-Virumaa
Linn: Jõhvi
Tööde algus: T, 09. november, 2021 (Soovituslik)
Tööde lõpp: E, 13. detsember, 2021 (Soovituslik)
Ehitusmaterjalid: Töö tellija poolt
Soovin pakkumisi: Summa kogu projektile

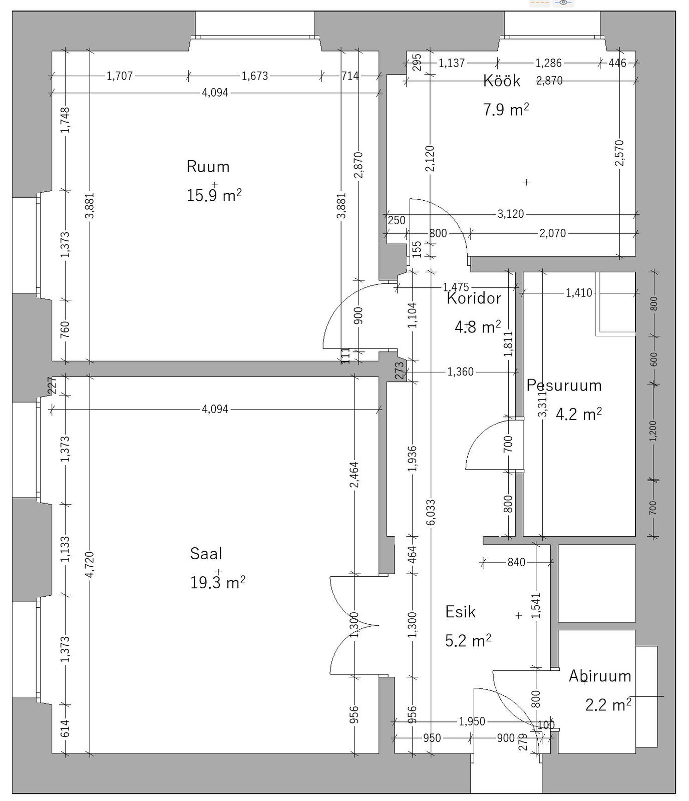
Töö sisu

1) vannitoa seinad katmine kipsiga
2) aknaavad taastamine peale akende vahetust
3) seina ettevalmistus värvimiseks

Pildid, video ja failid

Hanke korraldaja: eraisik ID66092

Pakkumised

Pakkumisi kokku: 2

Ettevõte Summa Käibemaks Lisatud Vestlus
Kasutaja ikoon ID55548
Pakkuja profiil Väike nool paremale
4 300€ KM lisandub KM lisandub 09.11.2021 Vestlus (2)

Pakkumise kirjeldus:

Tere. Tänan küsimustele vastamast.
Kahju, et hange.ee on reeglitega asja nii keeruliseks teinud, et kliendiga otse suhelda ei saa.
Aga küsimuste põhjal on mingi nägemus olemas. Kohapeal kindlasti midagi muutub ehk ma teen pakkumise maksimum summale mis see maksma võib minna. ( töörahale) kui tööd on vähem siis ka summa läheb väiksemaks.
* tö ... Rohkem

Kasutaja ikoon ID56337
Pakkuja profiil Väike nool paremale
3 500€ Ei ole KMKR Ei ole KMKR 09.11.2021 Vestlus (0)

Pakkumise kirjeldus:

Tere

Pakkumine sisaldab:

* Pindade kinni katmist määrdumise eest
*Pindade ettevalmistust
* Seinte krohvimist(MP75+võrk)
*Kipsivuugid 2x(võrk+J)
*Seinte lauspahteldust(Lr+)
*Uksepalede krohvimine(MP75)/ pahteldus(Lr+)
*Metallnurkade paigaldus
*Aknapalede krohvimine(MP75)/ pahteldus(Lr+)
*Seinte / lagede lihvimine
*Seinte / lagede värvimine ... Rohkem

Küsimused hanke korraldajale

Küsimus: private ID55548   09.11.2021 13:45
Tere kas põranda ja seinte pindala saaks (m2)

Teavita reeglite rikkumisest

Korraldaja vastus: 09.11.2021 13:54

Tere,
Lisasin hanke pildile korteri joonis. Lae kõrgused on 3m.

Teavita reeglite rikkumisest

Küsimus: private ID55548   09.11.2021 14:06
"seina ettevalmistus värvimiseks" tähendab, et kuni krunt värvini?

Teavita reeglite rikkumisest

Korraldaja vastus: 09.11.2021 14:08

Värvida pole vaja, ainult kõik augud kinni panna, ja liitumiskoht põrandaga sirgeks teha. Seinad on ise vanad ja kõverad ja see nii jääb.

Teavita reeglite rikkumisest

Küsimus: private ID55548   09.11.2021 14:10
Küsiks veel mis plaan lagedega on?
Kas tulevad uued laed või tuleb need ka pahteldada?
(kui pahteldada siis kas kumerad lae ääred jäävad?)

Teavita reeglite rikkumisest

Korraldaja vastus: 09.11.2021 14:11

Lagi jääb see mis pildil on, pahteldada pole vaja, kõik eeltööd on tehtud.

Teavita reeglite rikkumisest

Lisa küsimus

Lisa küsimus

Minu pakkumine

Reeglid

Pakkumise kirjelduse väli on mõeldud pakkumise detailsemaks lahti kirjutamiseks. Pikema teksti mugavaks sisestamiseks klikkige kasti paremal ülaservas oleval ikoonil.
Pakkumist tehes on keelatud postitada enda kontaktandmeid (nimi, telefon, aadress jne). Me jälgime ja analüüsime pakkumisi, et vältida pettuseid ja reeglite rikkumisi.
Rikkumise puhul kasutajakonto blokeeritakse.

 

Teisi töid samas valdkonnas

Valdkonnas "Korterite remont" on 2 aktiivset tööd

Vannitoa lampide paigaldus + erinevad pisiparandused korteris

Asukoht: Harjumaa, Tallinn
Aega jäänud: 1p 21h
Tehtud pakkumisi: 3

Korteri kapitaalremont ja ümberehitus (täielik siseviimistlus + elektritööd)

Asukoht: Järvamaa
Aega jäänud: 12p 21h
Tehtud pakkumisi: 0

Vanemad teated:

Vaata kõiki

Sellel veebilehel kasutatakse küpsiseid. Kasutamist jätkates nõustute küpsiste kasutamisega.

Sulge
 
Minu pakkumine

Reeglid

Pakkumise kirjelduse väli on mõeldud pakkumise detailsemaks lahti kirjutamiseks. Pikema teksti mugavaks sisestamiseks klikkige kasti paremal ülaservas oleval ikoonil.
Pakkumist tehes on keelatud postitada enda kontaktandmeid (nimi, telefon, aadress jne). Me jälgime ja analüüsime pakkumisi, et vältida pettuseid ja reeglite rikkumisi.
Rikkumise puhul kasutajakonto blokeeritakse.