+ Lisa oma töö      

Otsid ehitajat "Küttesüsteemid" valdkonnast?

Parima pakkumise ja teostaja leidmiseks lisa oma töö.

Küttetorude demontaaž ja torude paigaldus keldrikorrusele.

ID 67060

454 vaatamist

Prindi

  • check Pakkumiste tegemine
    kuni 10.11.2021
  • check Võitja valik kuni
    17.11.2021
  • 3 Töö teostamine
    ja hinnang
Hanke lõpp: K, 10. november, 2021
Maakond: Harjumaa
Linn: Tallinn
Tööde algus: K, 10. november, 2021 (Soovituslik)
Tööde lõpp: K, 17. november, 2021 (Soovituslik)
Ehitusmaterjalid: Töö tellija poolt
Soovin pakkumisi: Summa kogu projektile

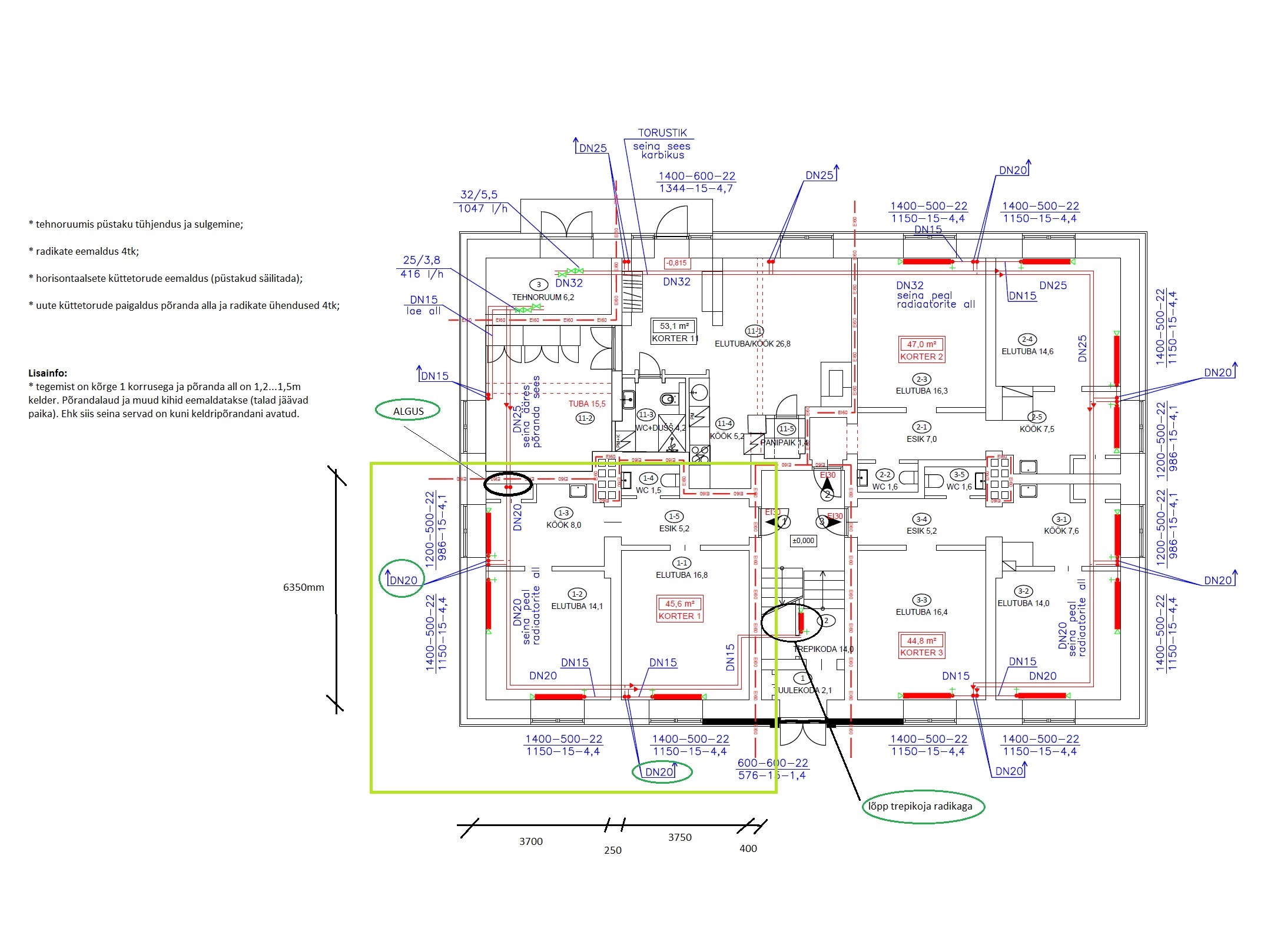
Töö sisu

Korter 2 toaline 1 korrus 4 radikat:
* radikad eemaldada;
* ol.ol torustik eemaldada (v.a püstakud 2tk);
* uute torude paigaldus põranda alla;

Täpsem kirjeldus eskiisil "korteri plaan"

Pildid, video ja failid

Hanke korraldaja: ettevõte ID27490

Pakkumised

Pakkumisi kokku: 1

Ettevõte Summa Käibemaks Lisatud Vestlus
Kasutaja ikoon ID44695
Pakkuja profiil Väike nool paremale
1 800€ KM lisandub KM lisandub 10.11.2021 Vestlus (0)

Pakkumise kirjeldus:

Tere,

Hinnale kuulub :
1. Torustiku eemaldus (v.a 2 püstakud)
2. Radiaatori tagadi ühendamine (torud jäävad põrandas)

Hind ei sisalda :
1. Puurimistööd
2. Radiaatorid (kui soovite vahetada )

Garantii 3a.

Küsimused hanke korraldajale

Küsimus: private ID44695   09.11.2021 20:08
Tere,

Kas KÜ-ga on teil kooskõlastatud ?

Teavita reeglite rikkumisest

Korraldaja vastus: 10.11.2021 12:01

Tere,
Tänan päringu eest, saadan täpsustused.
* KÜ kk on olemas;
* korteri tuleb uue lahendusega 3 radikat (diivani taha ei tule radikat)
* põranda alla arvestada Alupex küttetorud

Teavita reeglite rikkumisest

Lisa küsimus

Lisa küsimus

Minu pakkumine

Reeglid

Pakkumise kirjelduse väli on mõeldud pakkumise detailsemaks lahti kirjutamiseks. Pikema teksti mugavaks sisestamiseks klikkige kasti paremal ülaservas oleval ikoonil.
Pakkumist tehes on keelatud postitada enda kontaktandmeid (nimi, telefon, aadress jne). Me jälgime ja analüüsime pakkumisi, et vältida pettuseid ja reeglite rikkumisi.
Rikkumise puhul kasutajakonto blokeeritakse.

 

Teisi töid samas valdkonnas

Valdkonnas "Küttesüsteemid" on 2 aktiivset tööd

no-img Pilt puudub

Küttesüsteemi püstakute vahetus ja radiaatoritega ühendamine

Asukoht: Järvamaa, Paide
Aega jäänud: 3p 8h
Tehtud pakkumisi: 2

Cooper&Hunter Consol Inverter 18

Asukoht: Harjumaa, Tallinn
Aega jäänud: 8h 53 min
Tehtud pakkumisi: 1

Vanemad teated:

Vaata kõiki

Sellel veebilehel kasutatakse küpsiseid. Kasutamist jätkates nõustute küpsiste kasutamisega.

Sulge
 
Minu pakkumine

Reeglid

Pakkumise kirjelduse väli on mõeldud pakkumise detailsemaks lahti kirjutamiseks. Pikema teksti mugavaks sisestamiseks klikkige kasti paremal ülaservas oleval ikoonil.
Pakkumist tehes on keelatud postitada enda kontaktandmeid (nimi, telefon, aadress jne). Me jälgime ja analüüsime pakkumisi, et vältida pettuseid ja reeglite rikkumisi.
Rikkumise puhul kasutajakonto blokeeritakse.