+ Lisa oma töö      

Otsid ehitajat "Muu" valdkonnast?

Parima pakkumise ja teostaja leidmiseks lisa oma töö.

Kipsseinte ehitus

ID 67043

571 vaatamist

Prindi

  • check Pakkumiste tegemine
    kuni 06.11.2021
  • check Võitja valik kuni
    13.11.2021
  • 3 Töö teostamine
    ja hinnang
Hanke lõpp: L, 6. november, 2021
Maakond: Harjumaa
Linn: Tallinn
Tööde algus: N, 04. november, 2021 (Soovituslik)
Tööde lõpp: K, 17. november, 2021
Ehitusmaterjalid: Töö tellija poolt
Soovin pakkumisi: Tüki- või ühikuhinda

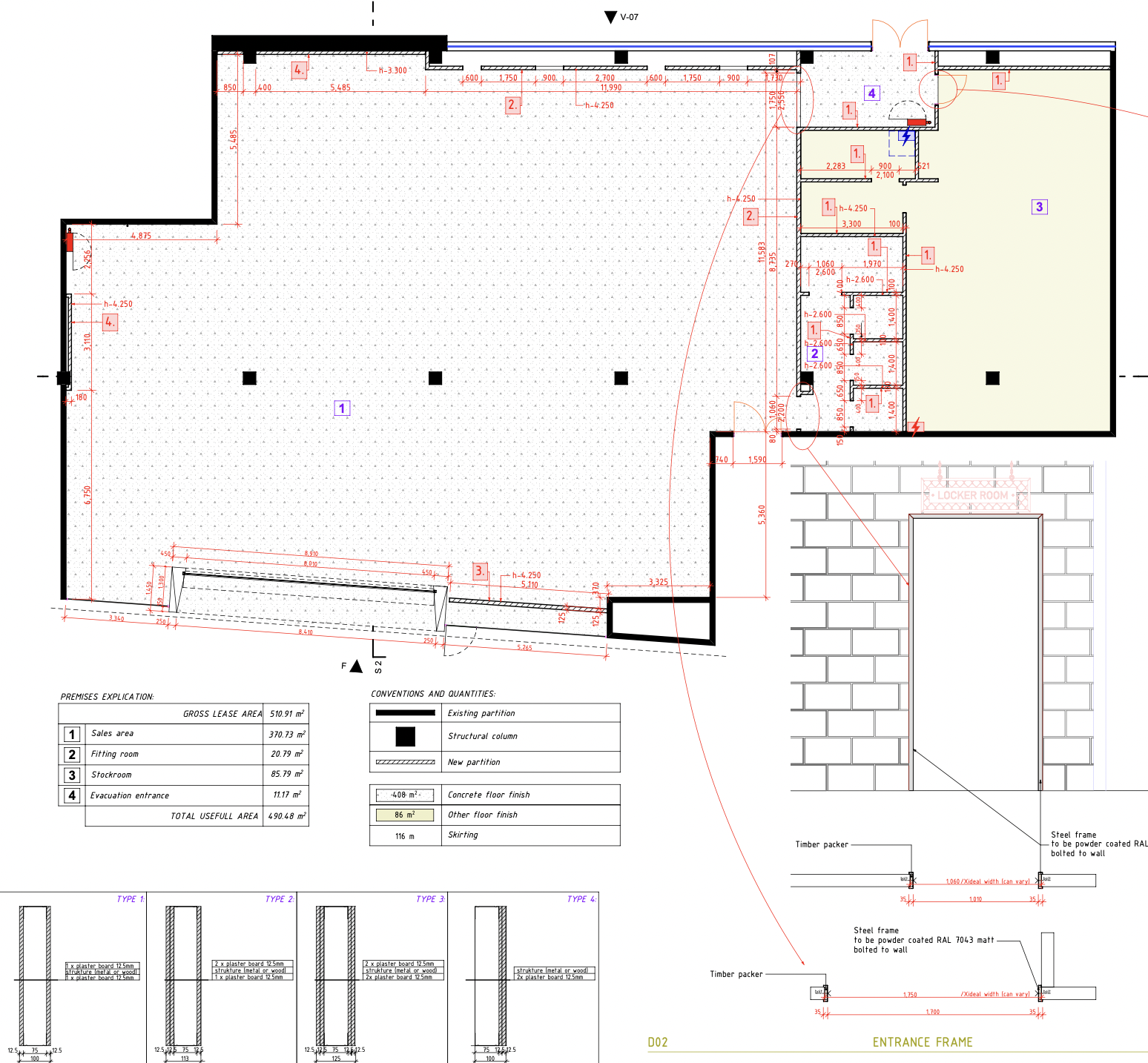
Töö sisu

Kipsseinte ehitus.
Objekt asub Lasnamäe linnaosas, suletud kaupluse pinnal.
Töö ülesandeks on erinevate kipsseinte ehitus.
Kõrgemate seinte mõõt on 4250 mm ja proovikabiinid 2600 mm.
Vajadusel palun küsida lisainfot!
Töödega peaks alustama niipea kui võimalik.
Materjali võib tarnida nii tellija, kui ka töövõtja.
Hinnapakkumise võib m2, või ka summa kogu tööle.
Tööde teostamise tähtaeg kaks nädalat

1 kips - met karkass 66 mm - 1 kips, 75 m2
2 kips - met karkass 66mm - 1 kips, 45 m2
2 kips - met karkass 66mm - 2 kips, 22 m2
0 kips - met karkass 66mm- 2 kips, 25 m2

Pildid, video ja failid

Hanke korraldaja: ettevõte ID36986

Pakkumised

Pakkumisi kokku: 3

Ettevõte Summa Käibemaks Lisatud Vestlus
Kasutaja ikoon ID62289
Pakkuja profiil Väike nool paremale
4 410€ KM lisandub KM lisandub 03.11.2021 Vestlus (0)

Pakkumise kirjeldus:

Tere,
Pakkumine tehtud etteantud m2.
Sisaldab kipseinte ehitust(karkass+kips).
Materjal (karkass,kips,kruvid jne) tellija poolt.Töödega saaks alustada koheselt.
Enne tööde alustamist ,objekti ülevaade koos tellijaga.

Lgp.
Aar

Kasutaja ikoon ID55746
Pakkuja profiil Väike nool paremale
4 700€ Ei ole KMKR Ei ole KMKR 06.11.2021 Vestlus (0)

Pakkumise kirjeldus:

Tere,

Oleme meeskond kes teab ja tunneb oma ala töid. Meie teenusega kaasneb ka garantii 2 aastat. Saame aidata ka teiste erinevate töödega kui teil peaks vaja minema.

Olemas ka referentsid!


Meil käibemaksu juurde ei lisandu

Kasutaja ikoon ID52402
Pakkuja profiil Väike nool paremale
4 400€ Ei ole KMKR Ei ole KMKR 06.11.2021 Vestlus (0)

Pakkumise kirjeldus:

Võin pakkuda ka viimistlustöid.

Küsimused hanke korraldajale

Hanke korraldajale ei ole veel küsimusi esitatud.

Lisa küsimus

Lisa küsimus

Minu pakkumine

Reeglid

Pakkumise kirjelduse väli on mõeldud pakkumise detailsemaks lahti kirjutamiseks. Pikema teksti mugavaks sisestamiseks klikkige kasti paremal ülaservas oleval ikoonil.
Pakkumist tehes on keelatud postitada enda kontaktandmeid (nimi, telefon, aadress jne). Me jälgime ja analüüsime pakkumisi, et vältida pettuseid ja reeglite rikkumisi.
Rikkumise puhul kasutajakonto blokeeritakse.

 

Teisi töid samas valdkonnas

Valdkonnas "Muu" on 2 aktiivset tööd

Muru niitmine

Asukoht: Pärnumaa, Pärnu
Aega jäänud: 9p 21h
Tehtud pakkumisi: 8

Uste valmistamine

Asukoht: Harjumaa, Tallinn
Aega jäänud: 2p 21h
Tehtud pakkumisi: 0

Vanemad teated:

Vaata kõiki

Sellel veebilehel kasutatakse küpsiseid. Kasutamist jätkates nõustute küpsiste kasutamisega.

Sulge
 
Minu pakkumine

Reeglid

Pakkumise kirjelduse väli on mõeldud pakkumise detailsemaks lahti kirjutamiseks. Pikema teksti mugavaks sisestamiseks klikkige kasti paremal ülaservas oleval ikoonil.
Pakkumist tehes on keelatud postitada enda kontaktandmeid (nimi, telefon, aadress jne). Me jälgime ja analüüsime pakkumisi, et vältida pettuseid ja reeglite rikkumisi.
Rikkumise puhul kasutajakonto blokeeritakse.