+ Lisa oma töö      

Otsid ehitajat "Vundamenditööd" valdkonnast?

Parima pakkumise ja teostaja leidmiseks lisa oma töö.

Vundament ja majakarp

ID 66608

615 vaatamist

Prindi

  • check Pakkumiste tegemine
    kuni 25.10.2021
  • check Võitja valik kuni
    01.11.2021
  • 3 Töö teostamine
    ja hinnang
Hanke lõpp: E, 25. oktoober, 2021
Maakond: Võrumaa
Muu asula: Husari
Tööde algus: T, 01. märts, 2022 (Soovituslik)
Tööde lõpp: P, 01. mai, 2022 (Soovituslik)
Ehitusmaterjalid: Töö tellija poolt
Soovin pakkumisi: Tüki- või ühikuhinda

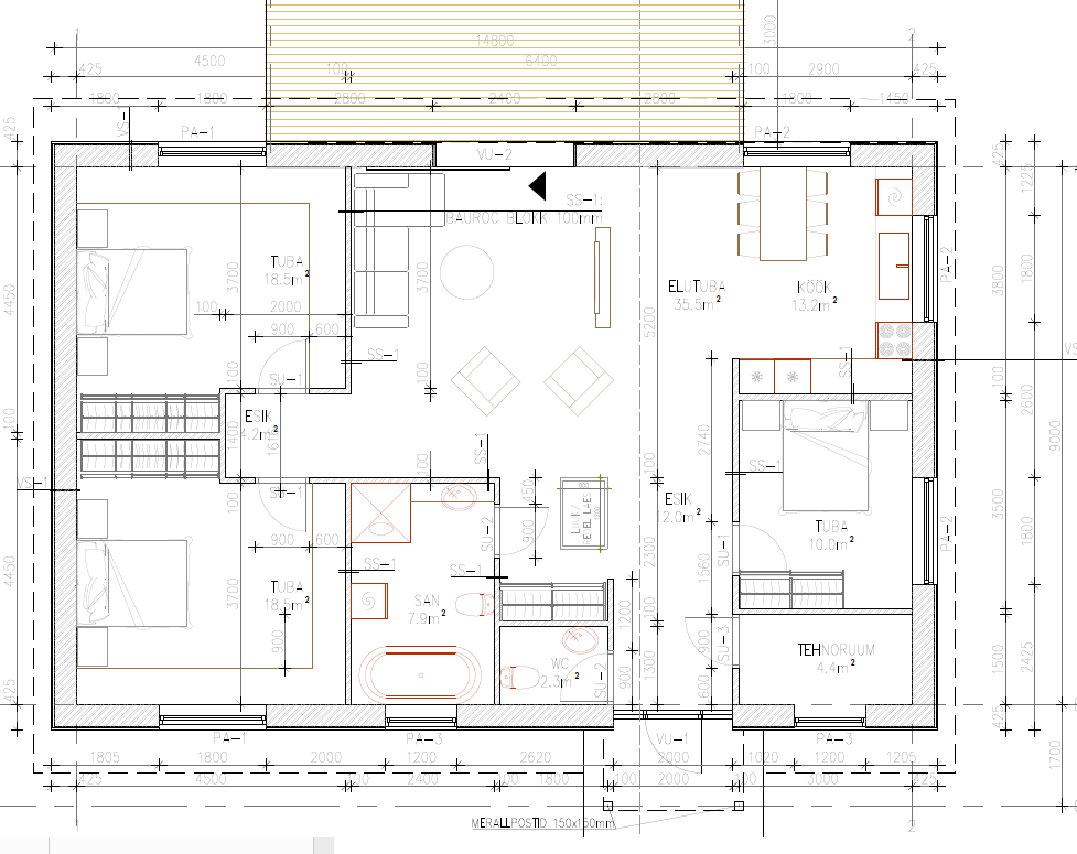
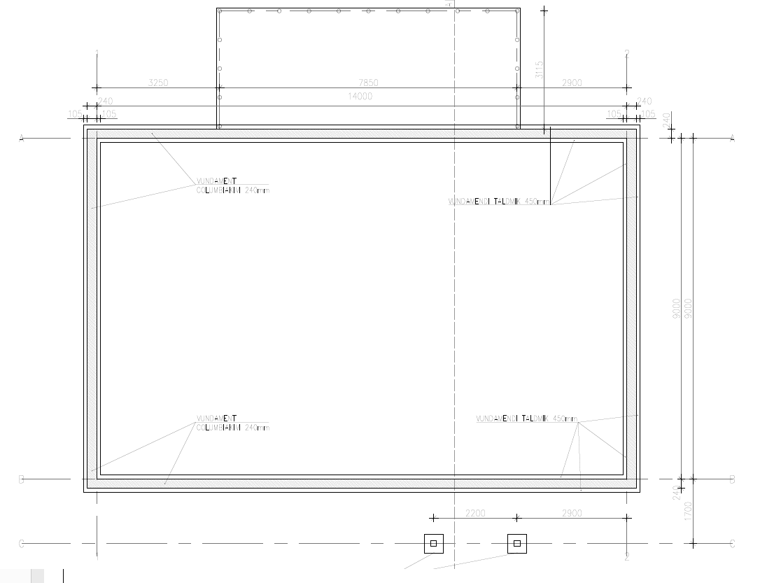
Töö sisu

Väljakaeve, kommunikatsioonide paigaldus, lintvundamendi rajamine, drenaazi paigaldus, tagasitäide, põrandaküttetoru paigaldus, põrandavalamine.
Bauroc ecoterm 375 ladumine.

Maja mõõdud 9m x 15m, seina kõrgus 3m.

Pildid, video ja failid

Hanke korraldaja: eraisik ID65760

Pakkumised

Pakkumisi kokku: 2

Ettevõte Summa Käibemaks Lisatud Vestlus
Kasutaja ikoon ID65246
Pakkuja profiil Väike nool paremale
22 500€ Ei ole KMKR Ei ole KMKR 25.10.2021 Vestlus (0)

Pakkumise kirjeldus:

Ettemaks, a

Kasutaja ikoon ID33904
Pakkuja profiil Väike nool paremale
21 845€ Ei ole KMKR Ei ole KMKR 25.10.2021 Vestlus (2)

Pakkumise kirjeldus:

Tere

Pakkumine hanke kirjelduse alusel.

Aigar

Küsimused hanke korraldajale

Hanke korraldajale ei ole veel küsimusi esitatud.

Lisa küsimus

Lisa küsimus

Minu pakkumine

Reeglid

Pakkumise kirjelduse väli on mõeldud pakkumise detailsemaks lahti kirjutamiseks. Pikema teksti mugavaks sisestamiseks klikkige kasti paremal ülaservas oleval ikoonil.
Pakkumist tehes on keelatud postitada enda kontaktandmeid (nimi, telefon, aadress jne). Me jälgime ja analüüsime pakkumisi, et vältida pettuseid ja reeglite rikkumisi.
Rikkumise puhul kasutajakonto blokeeritakse.

 

Vanemad teated:

Vaata kõiki

Sellel veebilehel kasutatakse küpsiseid. Kasutamist jätkates nõustute küpsiste kasutamisega.

Sulge
 
Minu pakkumine

Reeglid

Pakkumise kirjelduse väli on mõeldud pakkumise detailsemaks lahti kirjutamiseks. Pikema teksti mugavaks sisestamiseks klikkige kasti paremal ülaservas oleval ikoonil.
Pakkumist tehes on keelatud postitada enda kontaktandmeid (nimi, telefon, aadress jne). Me jälgime ja analüüsime pakkumisi, et vältida pettuseid ja reeglite rikkumisi.
Rikkumise puhul kasutajakonto blokeeritakse.