+ Lisa oma töö      

Otsid ehitajat "Torutööd" valdkonnast?

Parima pakkumise ja teostaja leidmiseks lisa oma töö.

Vk paigaldus äripindadel

ID 65511

311 vaatamist

Prindi

  • check Pakkumiste tegemine
    kuni 25.09.2021
  • check Võitja valik kuni
    02.10.2021
  • 3 Töö teostamine
    ja hinnang
Hanke lõpp: L, 25. september, 2021
Maakond: Harjumaa
Linn: Tallinn
Tööde algus: K, 22. september, 2021 (Soovituslik)
Tööde lõpp: N, 30. september, 2021 (Soovituslik)
Ehitusmaterjalid: Töö tellija poolt
Soovin pakkumisi: Tüki- või ühikuhinda

Töö sisu

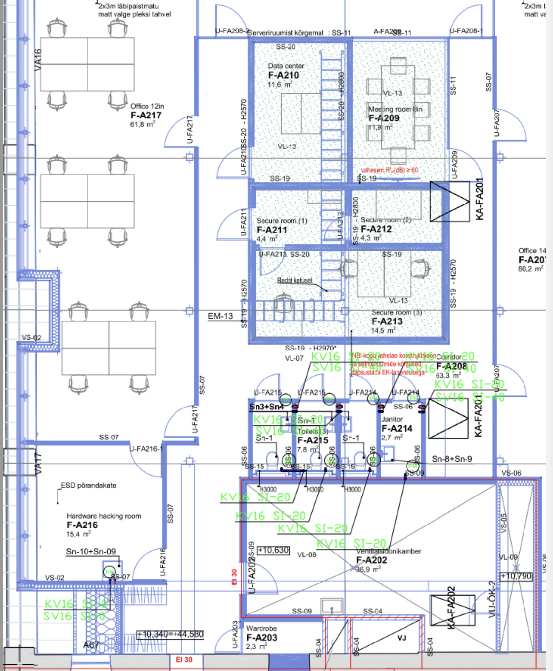
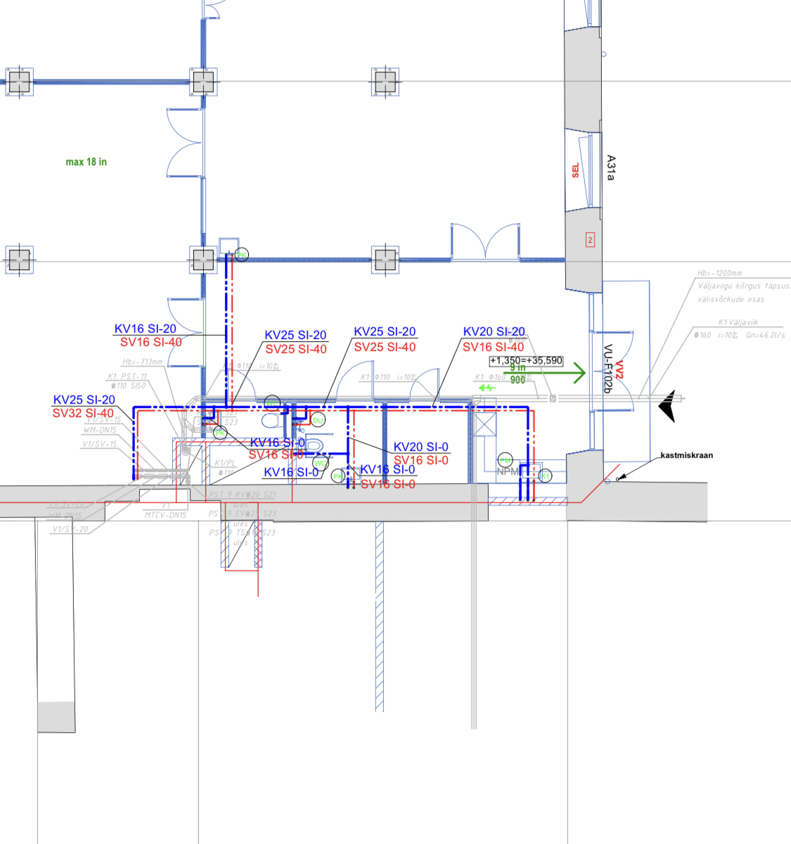
Vaja oleks paigaldada esimese, teise ja kolmanda korruse laeall veetorud ja kanalitorud koos isolatsiooniga. Püstakud on valmis ja välja ehitatud ning seinasisesed torud on seinast laealla välja toodud. Materjal on kohapeal olemas ja lisaks on vajalik paigaldada ka 7 wc raami koos kanaliyhendusega.

Pildid, video ja failid

Hanke korraldaja: ettevõte ID65133

Pakkumised

Pakkumisi kokku: 0

Küsimused hanke korraldajale

Hanke korraldajale ei ole veel küsimusi esitatud.

Lisa küsimus

Lisa küsimus

Minu pakkumine

Reeglid

Pakkumise kirjelduse väli on mõeldud pakkumise detailsemaks lahti kirjutamiseks. Pikema teksti mugavaks sisestamiseks klikkige kasti paremal ülaservas oleval ikoonil.
Pakkumist tehes on keelatud postitada enda kontaktandmeid (nimi, telefon, aadress jne). Me jälgime ja analüüsime pakkumisi, et vältida pettuseid ja reeglite rikkumisi.
Rikkumise puhul kasutajakonto blokeeritakse.

 

Teisi töid samas valdkonnas

Valdkonnas "Torutööd" on 2 aktiivset tööd

Kaarhalli soojaku torustiku renoveerimine

Asukoht: Harjumaa, Saue
Aega jäänud: 15h 38 min
Tehtud pakkumisi: 4

Köögi äravoolu paigaldus

Asukoht: Harjumaa, Tallinn
Aega jäänud: 4p 15h
Tehtud pakkumisi: 2

Vanemad teated:

Vaata kõiki

Sellel veebilehel kasutatakse küpsiseid. Kasutamist jätkates nõustute küpsiste kasutamisega.

Sulge
 
Minu pakkumine

Reeglid

Pakkumise kirjelduse väli on mõeldud pakkumise detailsemaks lahti kirjutamiseks. Pikema teksti mugavaks sisestamiseks klikkige kasti paremal ülaservas oleval ikoonil.
Pakkumist tehes on keelatud postitada enda kontaktandmeid (nimi, telefon, aadress jne). Me jälgime ja analüüsime pakkumisi, et vältida pettuseid ja reeglite rikkumisi.
Rikkumise puhul kasutajakonto blokeeritakse.