+ Lisa oma töö      

Otsid ehitajat "Müüritööd" valdkonnast?

Parima pakkumise ja teostaja leidmiseks lisa oma töö.

Silikaatmüüri ladumine

ID 65475

529 vaatamist

Prindi

  • check Pakkumiste tegemine
    kuni 24.09.2021
  • check Võitja valik kuni
    01.10.2021
  • 3 Töö teostamine
    ja hinnang
Hanke lõpp: R, 24. september, 2021
Maakond: Raplamaa
Muu asula: Nurtu-Nõlva
Tööde algus: E, 27. september, 2021 (Soovituslik)
Tööde lõpp: P, 03. oktoober, 2021 (Soovituslik)
Ehitusmaterjalid: Töö tellija poolt
Soovin pakkumisi: Tüki- või ühikuhinda

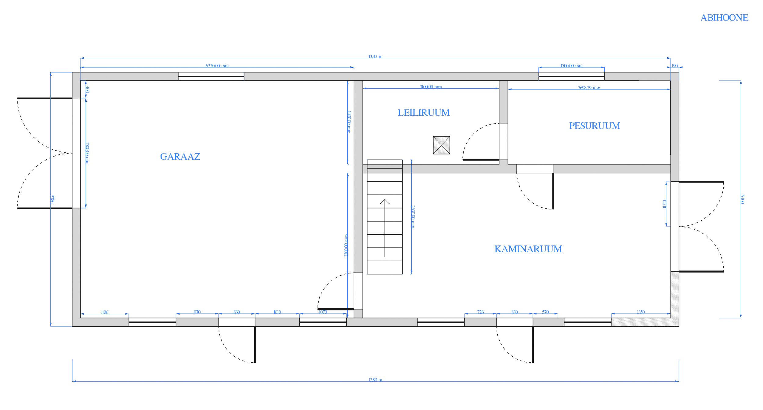
Töö sisu

Siseseinte ladumine silikaattellistest, kokku 14m ja 2.1m kõrge. Tuhaplokist välisseinte vahele. 3 ukseava, silluseid tegema ei pea. Puhast vuuki tegema ei pea. Silikaattellised, müürisegu ja armatuur on olemas.

Pildid, video ja failid

Hanke korraldaja: eraisik ID61669

Pakkumised

Pakkumisi kokku: 2

Ettevõte Summa Käibemaks Lisatud Vestlus
Kasutaja ikoon ID60861
Pakkuja profiil Väike nool paremale
1 960€ KM lisandub KM lisandub 23.09.2021 Vestlus (0)

Pakkumise kirjeldus:

Tere.
Hind on silikaat müürile paksusega 25cm.(täiskivi müürile).

Parimat
Raido

Kasutaja ikoon ID33904
Pakkuja profiil Väike nool paremale
1 900€ KM lisandub KM lisandub 24.09.2021 Vestlus (0)

Pakkumise kirjeldus:

Tere.
Pakkumine hanke kirjelduse järgi (silikaat müürile paksusega 25cm. ehk täiskivi müürile).

Koostööle lootes,
Aigar

Küsimused hanke korraldajale

Küsimus: private ID60861   23.09.2021 07:14
Tere.Kas tegemist on tãiskivi müüriga ja kas on uued või kasutatud kivid?

Teavita reeglite rikkumisest

Korraldaja vastus: 23.09.2021 09:57

Ma ei tea täpselt, mida tähendab täiskivimüür. Ma panustan sellele, et tegija mõtleb kaasa ja oskab pakkuda siseseinale sobiva parima lahenduse ise. Kivid on uued, kasutamata aga ajalises mõttes vanad, st pole teada, millal need on toodetud.

Teavita reeglite rikkumisest

Lisa küsimus

Lisa küsimus

Minu pakkumine

Reeglid

Pakkumise kirjelduse väli on mõeldud pakkumise detailsemaks lahti kirjutamiseks. Pikema teksti mugavaks sisestamiseks klikkige kasti paremal ülaservas oleval ikoonil.
Pakkumist tehes on keelatud postitada enda kontaktandmeid (nimi, telefon, aadress jne). Me jälgime ja analüüsime pakkumisi, et vältida pettuseid ja reeglite rikkumisi.
Rikkumise puhul kasutajakonto blokeeritakse.

 

Vanemad teated:

Vaata kõiki

Sellel veebilehel kasutatakse küpsiseid. Kasutamist jätkates nõustute küpsiste kasutamisega.

Sulge
 
Minu pakkumine

Reeglid

Pakkumise kirjelduse väli on mõeldud pakkumise detailsemaks lahti kirjutamiseks. Pikema teksti mugavaks sisestamiseks klikkige kasti paremal ülaservas oleval ikoonil.
Pakkumist tehes on keelatud postitada enda kontaktandmeid (nimi, telefon, aadress jne). Me jälgime ja analüüsime pakkumisi, et vältida pettuseid ja reeglite rikkumisi.
Rikkumise puhul kasutajakonto blokeeritakse.