+ Lisa oma töö      

Otsid ehitajat "Pinnasetööd" valdkonnast?

Parima pakkumise ja teostaja leidmiseks lisa oma töö.

Pinnasetööd lintvundamendi ehituseks

ID 64443

665 vaatamist

Prindi

  • check Pakkumiste tegemine
    kuni 27.11.2021
  • check Võitja valik kuni
    04.12.2021
  • 3 Töö teostamine
    ja hinnang
Hanke lõpp: L, 27. november, 2021
Maakond: Tartumaa
Linn: Tartu
Tööde algus: T, 30. november, 2021 (Soovituslik)
Tööde lõpp: P, 12. detsember, 2021 (Soovituslik)
Ehitusmaterjalid: Töö tellija poolt
Soovin pakkumisi: Summa kogu projektile

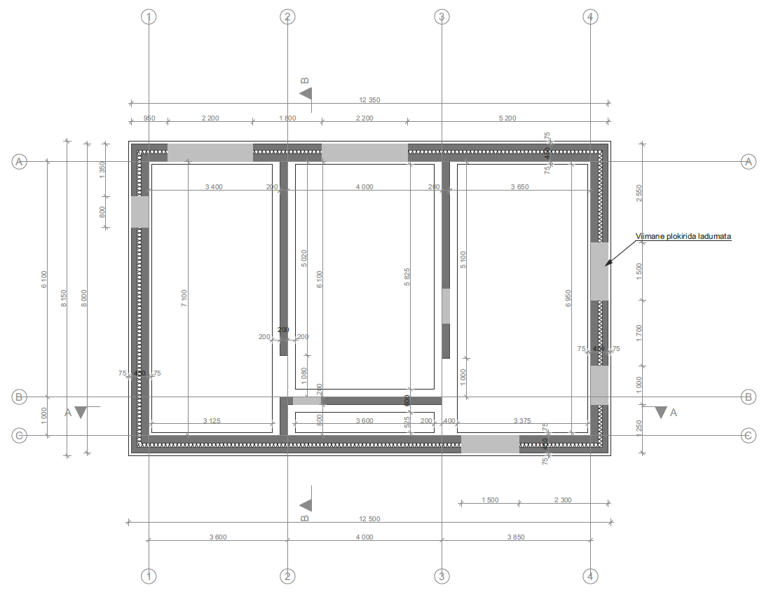
Töö sisu

Vaja kaevata maja jaoks süvend, märkida maha maja asukoht ja rajada tihendatud killustikupadi, et saaks hakata vundamenti ehitama.
Maja alune pind ~75 m2, pinnas pigem savine.
Krunt asub Tartu linnas.

Pildid, video ja failid

Hanke korraldaja: eraisik ID60382

Pakkumised

Pakkumisi kokku: 3

Ettevõte Summa Käibemaks Lisatud Vestlus
Kasutaja ikoon ID65365
Pakkuja profiil Väike nool paremale
19 795€ Ei ole KMKR Ei ole KMKR 25.11.2021 Vestlus (4)
Kasutaja ikoon ID50618
Pakkuja profiil Väike nool paremale
5 100€ KM lisandub KM lisandub 26.11.2021 Vestlus (4)

Pakkumise kirjeldus:

Hind sisaldab:
- maja mahamärkimine
- lint vundamendi jagu väljakaevet
- lint vindamendi jagu killustik
- tihendamine
- saab tasuda ilma km
Hinnas pole kogu vundamendi aluse pinnase koorimist.
Hinnas pole liigse pinnase äravedu.
Saab juurde tellida.
Teha saame uue aasta alguses või kui ilm lubab.

Kasutaja ikoon ID55746
Pakkuja profiil Väike nool paremale
12 000€ Ei ole KMKR Ei ole KMKR 27.11.2021 Vestlus (2)

Pakkumise kirjeldus:

Tere,

Oleme meeskond kes teab ja tunneb oma ala töid. Meie teenusega kaasneb ka garantii 2 aastat. Saame aidata ka teiste erinevate töödega kui teil peaks vaja minema.

Omame tööde tegemiseks üldehituse MTR tegevusluba. Leping + garantii

Olemas ka referentsid!


Meil käibemaksu juurde ei lisandu

Küsimused hanke korraldajale

Küsimus: private ID37352   25.11.2021 07:49
Tere.Kas geodeet on siis ka teie poolt?

Teavita reeglite rikkumisest

Korraldaja vastus: 25.11.2021 07:58

Geodeetiline alusplaan krundist on olemas, kui seda mõtlete.

Teavita reeglite rikkumisest

Küsimus: private ID37352   25.11.2021 08:03
No seda küll aga peale augu kaevamist on ju vaja maha märkida nurgad et saaks teljed paika .Minu poolt oleks siis tehnika,kopad,laadur ja maatihendajad.

Teavita reeglite rikkumisest

Korraldaja vastus:
Hanke korraldaja ei ole küsimusele veel vastanud

Lisa küsimus

Lisa küsimus

Minu pakkumine

Reeglid

Pakkumise kirjelduse väli on mõeldud pakkumise detailsemaks lahti kirjutamiseks. Pikema teksti mugavaks sisestamiseks klikkige kasti paremal ülaservas oleval ikoonil.
Pakkumist tehes on keelatud postitada enda kontaktandmeid (nimi, telefon, aadress jne). Me jälgime ja analüüsime pakkumisi, et vältida pettuseid ja reeglite rikkumisi.
Rikkumise puhul kasutajakonto blokeeritakse.

 

Teisi töid samas valdkonnas

Valdkonnas "Pinnasetööd" on 2 aktiivset tööd

Panduse rajamine: äärekivid, geotekstiil ja killustik

Asukoht: Harjumaa, Tänassilma
Aega jäänud: 1p 15h
Tehtud pakkumisi: 1

no-img Pilt puudub

Killustiku, liiva vedu ca 3 kanti Inglimäe karjäärist Tartusse

Asukoht: Tartumaa
Aega jäänud: 3p 15h
Tehtud pakkumisi: 0

Vanemad teated:

Vaata kõiki

Sellel veebilehel kasutatakse küpsiseid. Kasutamist jätkates nõustute küpsiste kasutamisega.

Sulge
 
Minu pakkumine

Reeglid

Pakkumise kirjelduse väli on mõeldud pakkumise detailsemaks lahti kirjutamiseks. Pikema teksti mugavaks sisestamiseks klikkige kasti paremal ülaservas oleval ikoonil.
Pakkumist tehes on keelatud postitada enda kontaktandmeid (nimi, telefon, aadress jne). Me jälgime ja analüüsime pakkumisi, et vältida pettuseid ja reeglite rikkumisi.
Rikkumise puhul kasutajakonto blokeeritakse.