+ Lisa oma töö      

Otsid ehitajat "Üldehitus" valdkonnast?

Parima pakkumise ja teostaja leidmiseks lisa oma töö.

3-toalise korteri remont Tartus

ID 64079

689 vaatamist

Prindi

  • check Pakkumiste tegemine
    kuni 25.08.2021
  • check Võitja valik kuni
    01.09.2021
  • 3 Töö teostamine
    ja hinnang
Hanke lõpp: K, 25. august, 2021
Maakond: Tartumaa
Linn: Tartu
Tööde algus: E, 23. august, 2021 (Soovituslik)
Tööde lõpp: E, 27. september, 2021 (Soovituslik)
Ehitusmaterjalid: Töö tegija poolt
Soovin pakkumisi: Summa kogu projektile

Töö sisu

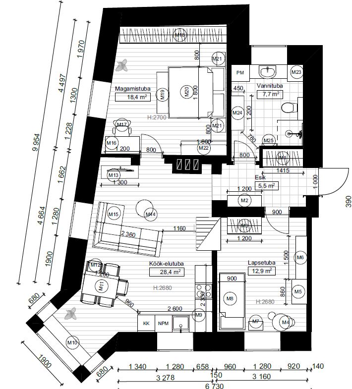
Ahiküttega III korrusel paiknevas korteris on tarvis teha täis remont. Korter on 72 m2 ja koosneb esikust, 2 magamistoast, elutoast, köögist ning vannitoast. Lagede kõrgus ca 2,7m. Elektritöid ei ole vaja.

Vajalikud tööd:

* Lammutada magamistoa ja köögi vaheline mittekandev sein ning olemasoleva san.ruumi ümbert mittekandev sein (olemasolev ja planeeritav ruumilahendus lisatud).
* Eemaldada vana WC-pott ja san.ruumis seina- ning põrandaplaatide ja ripplae eemaldamine.
* Põrandad kõikides ruumides üles võtta ja sirgeks saada ning ette valmistada parketi/plaatide paigaldamiseks.
* Uue siseseina ehitus (magamistoa ja san.ruumi vahele ning san.ruumi ja esiku vahele, sh ukseava ehitus).
* Vannitoa ehitus ja ettevalmistamine plaatimiseks (hüdroisolatsioon, santehnilised tööd (duši, kraanikausi, pesumasina ja wc poti valmidused ja paigaldus, vana boileri eemaldus ja uue paigaldus), ventilatsioon).
* Vannituppa ja esikusse paigaldada regulaatoriga põrandaküte.
* Köögis santehnilised tööd (kraanikausi ja nõudepesumasina valmidus, torutööd) ja ventilatsioon.
* Lisaks seinte/lagede pahteldamine, korteri ettevalmistamine lõppviimistluseks.
* Ehitusprahi utiliseerimine.

Materjalid ja töövahendid töö tegija poolt (v.a san.tehnika).
Kõik ilmnevad lisatööd kokkuleppel.

Lõppviimistlust (parketi paigaldamine, plaatimine, värvimine, tapetseerimine) hetkel ei soovi. Selle võtaks hiljem eraldi juurde.

Korter on tühi ja alustada võimalik koheselt.

Pildid, video ja failid

Hanke korraldaja: eraisik ID64328

Pakkumised

Pakkumisi kokku: 2

Ettevõte Summa Käibemaks Lisatud Vestlus
Kasutaja ikoon ID55746
Pakkuja profiil Väike nool paremale
8 000€ Ei ole KMKR Ei ole KMKR 25.08.2021 Vestlus (0)

Pakkumise kirjeldus:

Tere,

Oleme meeskond kes teab ja tunneb oma ala töid. Meie teenusega kaasneb ka garantii 2 aastat. Saame aidata ka teiste erinevate töödega kui teil peaks vaja minema.

Meil käibemaksu juurde ei lisandu



Parimate soovidega!!

Kasutaja ikoon ID64269
Pakkuja profiil Väike nool paremale
7 800€ Ikoon kell Sisaldab KM Sisaldab KM 25.08.2021 Vestlus (0)

Pakkumise kirjeldus:

Tere! Hetkeline hinnapakkumine,kuid oleks tarvis objektiga tutvuda.

Küsimused hanke korraldajale

Hanke korraldajale ei ole veel küsimusi esitatud.

Lisa küsimus

Lisa küsimus

Minu pakkumine

Reeglid

Pakkumise kirjelduse väli on mõeldud pakkumise detailsemaks lahti kirjutamiseks. Pikema teksti mugavaks sisestamiseks klikkige kasti paremal ülaservas oleval ikoonil.
Pakkumist tehes on keelatud postitada enda kontaktandmeid (nimi, telefon, aadress jne). Me jälgime ja analüüsime pakkumisi, et vältida pettuseid ja reeglite rikkumisi.
Rikkumise puhul kasutajakonto blokeeritakse.

 

Teisi töid samas valdkonnas

Valdkonnas "Üldehitus" on 27 aktiivset tööd

Terassi õlitamine, 13,7 ruutu

Asukoht: Harjumaa, Saue
Aega jäänud: 5p 16h
Tehtud pakkumisi: 4

Eramaja ehitus

Asukoht: Harjumaa, Suurupi
Aega jäänud: 4p 16h
Tehtud pakkumisi: 4

Vanemad teated:

Vaata kõiki

Sellel veebilehel kasutatakse küpsiseid. Kasutamist jätkates nõustute küpsiste kasutamisega.

Sulge
 
Minu pakkumine

Reeglid

Pakkumise kirjelduse väli on mõeldud pakkumise detailsemaks lahti kirjutamiseks. Pikema teksti mugavaks sisestamiseks klikkige kasti paremal ülaservas oleval ikoonil.
Pakkumist tehes on keelatud postitada enda kontaktandmeid (nimi, telefon, aadress jne). Me jälgime ja analüüsime pakkumisi, et vältida pettuseid ja reeglite rikkumisi.
Rikkumise puhul kasutajakonto blokeeritakse.