+ Lisa oma töö      

Otsid ehitajat "Renoveerimine" valdkonnast?

Parima pakkumise ja teostaja leidmiseks lisa oma töö.

Soojustamine villa või penoplastiga

ID 63797

672 vaatamist

Prindi

  • check Pakkumiste tegemine
    kuni 25.08.2021
  • check Võitja valik kuni
    01.09.2021
  • 3 Töö teostamine
    ja hinnang
Hanke lõpp: K, 25. august, 2021
Maakond: Jõgevamaa
Muu asula: Pajusi
Tööde algus: R, 13. august, 2021 (Soovituslik)
Tööde lõpp: T, 31. august, 2021 (Soovituslik)
Ehitusmaterjalid: Töö tellija poolt
Soovin pakkumisi: Summa kogu projektile

Töö sisu

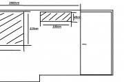
Sooviks soojustada pildil oleva osa.
Soojustamiseks sooviks siis, kas penoplasti või kivivillaga. Soojustuskiht peaks olema vähemalt 100mm
Lisaks tuleks pind peale soojustamist ka krohvida ja krohv värvida halliks mis oleks võimalikult sarnane värv telliskivile
telliskivi sein on ukse kõrval asuvast seinast eespool 13cm. Lõpptulemus peab jääma ühel tasandil.
Hind tuleks teha kogu tööle. Materjali saan osta ise, kui oleme võitjaga kokku leppinud, milliseid asju vaja on.
1. vill, penoplast
2. kinnitustüüblid
3. krunt
4. klaaskiudkangas võrk
5. dekoratiivkrohv

Pildid, video ja failid

Hanke korraldaja: eraisik ID51151

Pakkumised

Pakkumisi kokku: 1

Ettevõte Summa Käibemaks Lisatud Vestlus
Kasutaja ikoon ID50979
Pakkuja profiil Väike nool paremale
1 500€ Sisaldab KM Sisaldab KM 25.08.2021 Vestlus (6)

Küsimused hanke korraldajale

Küsimus: private ID55689   24.08.2021 06:53
Tere.
Kas ruutmeetrid oleks võimalik kokku arvutada,saaks töö tegelikust määrast teadmise.

Teavita reeglite rikkumisest

Korraldaja vastus:
Hanke korraldaja ei ole küsimusele veel vastanud

Lisa küsimus

Lisa küsimus

Minu pakkumine

Reeglid

Pakkumise kirjelduse väli on mõeldud pakkumise detailsemaks lahti kirjutamiseks. Pikema teksti mugavaks sisestamiseks klikkige kasti paremal ülaservas oleval ikoonil.
Pakkumist tehes on keelatud postitada enda kontaktandmeid (nimi, telefon, aadress jne). Me jälgime ja analüüsime pakkumisi, et vältida pettuseid ja reeglite rikkumisi.
Rikkumise puhul kasutajakonto blokeeritakse.

 

Teisi töid samas valdkonnas

Valdkonnas "Renoveerimine" on 2 aktiivset tööd

Pinkide puitdetailide vahetus

Asukoht: Harjumaa, Tallinn
Aega jäänud: 15p 12h
Tehtud pakkumisi: 14

no-img Pilt puudub

Renoveerimisprojekti koostamine

Asukoht: Läänemaa, Matsalu
Aega jäänud: 23p 12h
Tehtud pakkumisi: 2

Vanemad teated:

Vaata kõiki

Sellel veebilehel kasutatakse küpsiseid. Kasutamist jätkates nõustute küpsiste kasutamisega.

Sulge
 
Minu pakkumine

Reeglid

Pakkumise kirjelduse väli on mõeldud pakkumise detailsemaks lahti kirjutamiseks. Pikema teksti mugavaks sisestamiseks klikkige kasti paremal ülaservas oleval ikoonil.
Pakkumist tehes on keelatud postitada enda kontaktandmeid (nimi, telefon, aadress jne). Me jälgime ja analüüsime pakkumisi, et vältida pettuseid ja reeglite rikkumisi.
Rikkumise puhul kasutajakonto blokeeritakse.