+ Lisa oma töö      

Otsid ehitajat "Vundamenditööd" valdkonnast?

Parima pakkumise ja teostaja leidmiseks lisa oma töö.

Eramu juurdeehituse vundamendi ehitamine, Tallinnas Nõmmel

ID 63557

635 vaatamist

Prindi

  • check Pakkumiste tegemine
    kuni 20.08.2021
  • check Võitja valik kuni
    27.08.2021
  • 3 Töö teostamine
    ja hinnang
Hanke lõpp: R, 20. august, 2021
Maakond: Harjumaa
Linn: Tallinn
Tööde algus: E, 30. august, 2021 (Soovituslik)
Tööde lõpp: E, 20. september, 2021 (Soovituslik)
Ehitusmaterjalid: Töö tellija poolt
Soovin pakkumisi: Summa kogu projektile

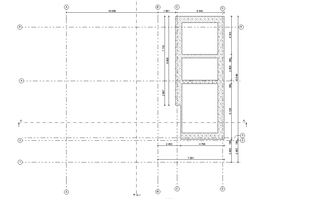
Töö sisu

Otsime ehitajat eramu juurdeehituse vundamenditööde teostamiseks.
Tööde hulka kuulub:
1) olemasoleva killustikupadja tasandamine ja tihendamine;
2) betoonist vundamendi taldmiku rajamine;
3) Columbia kivi 140 mm õõnesplokist koos XPS soojustusega vundamendi rajamine kuni hoone 0 kõrguseni.

Olemasolev olukord: väljakaeve on tehtud, vundamendi alused torustikud on paigaldatud, killustikalus on ehitamisel.

Tööd teostada vastavalt projektile, st vundamendi taldmik tuleb betoneerida (valmis taldmikuvorme ei kasuta), seinad rajada 140 mm Columbia kivi õõnesplokist.

Hinda soovime ainult tööle, materjalid on Tellija poolt.
Põrandaplaadi rajamise ja tagasitäite töid ei ole vaja hinnapakkumisse arvestada.

Tööde teostamise aeg: esimesel võimalusel.

Pildid, video ja failid

Hanke korraldaja: eraisik ID64043

Pakkumised

Pakkumisi kokku: 0

Küsimused hanke korraldajale

Küsimus: private ID29437   18.08.2021 16:05
Tere, Kas vundamendi taldmiku betoon tuleb teha kohapeal või tellija tellib PUMI-ga ? Kas Columbia kivi õõnesplokid täidetakse betooniga kui jah, siis kas tellija tellib betooni või tehakse kohapeal segumasinaga? Kas põranda soojustamine ja valamine kuulub ka hanke sisse? Hanke sisu on killustiku tihendamine aga piltidelt on näha et liiv on juba sisse kallatud? Lp Meelis

Teavita reeglite rikkumisest

Korraldaja vastus: 18.08.2021 16:15

Tere! Taldmiku betooni jaoks tellib tellija PUMI. Columbia kivi õõnesplokid täidetakse betooniga ja tellija tellib betooni. Põranda soojustamine ja valamine seekord hanke sisse ei jää. Kraavi põhjas on killustik, keskel olev väljakaevatud liiv on jäetud välja viimata, et hiljem saaks tasandada põranda osa. Kõike head, Madis

Teavita reeglite rikkumisest

Lisa küsimus

Lisa küsimus

Minu pakkumine

Reeglid

Pakkumise kirjelduse väli on mõeldud pakkumise detailsemaks lahti kirjutamiseks. Pikema teksti mugavaks sisestamiseks klikkige kasti paremal ülaservas oleval ikoonil.
Pakkumist tehes on keelatud postitada enda kontaktandmeid (nimi, telefon, aadress jne). Me jälgime ja analüüsime pakkumisi, et vältida pettuseid ja reeglite rikkumisi.
Rikkumise puhul kasutajakonto blokeeritakse.

 

Vanemad teated:

Vaata kõiki

Sellel veebilehel kasutatakse küpsiseid. Kasutamist jätkates nõustute küpsiste kasutamisega.

Sulge
 
Minu pakkumine

Reeglid

Pakkumise kirjelduse väli on mõeldud pakkumise detailsemaks lahti kirjutamiseks. Pikema teksti mugavaks sisestamiseks klikkige kasti paremal ülaservas oleval ikoonil.
Pakkumist tehes on keelatud postitada enda kontaktandmeid (nimi, telefon, aadress jne). Me jälgime ja analüüsime pakkumisi, et vältida pettuseid ja reeglite rikkumisi.
Rikkumise puhul kasutajakonto blokeeritakse.