+ Lisa oma töö      

Otsid ehitajat "Põrandatööd" valdkonnast?

Parima pakkumise ja teostaja leidmiseks lisa oma töö.

Tarkett põranda pvc paigaldus

ID 63466

488 vaatamist

Prindi

  • check Pakkumiste tegemine
    kuni 05.08.2021
  • check Võitja valik kuni
    12.08.2021
  • 3 Töö teostamine
    ja hinnang
Hanke lõpp: N, 5. august, 2021
Maakond: Harjumaa
Muu asula: Soodevahe
Tööde algus: E, 09. august, 2021 (Soovituslik)
Tööde lõpp: E, 23. august, 2021 (Soovituslik)
Ehitusmaterjalid: Töö tellija poolt
Soovin pakkumisi: Tüki- või ühikuhinda

Töö sisu

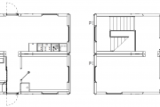
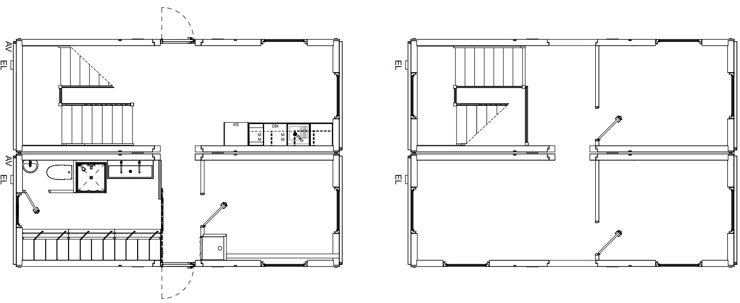
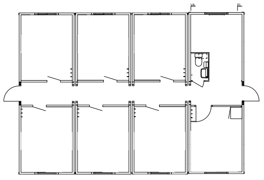
10ne uue soojaku põranda katmine Tarkett Eclipse pvc kattega +80mm ülespööre seinale ruumi perimeetris.
Soojaku netopind 2610x8090mm
paigaldus pikki ühe pika vuugiga.
Viiel soojakul kanalisatsiooni läbiviigud ning ühel trepiava 2610x ca 3000

Täpsemalt http://www.lincona.ee/product/uhiskondlik-pvc-eclipse-premium-12-2/
Liimina kasutame Liim, Eurocol 522/220 PVC, 20kg (110886)
Aluspind on Durelis P5 puitlaastplaat, sile ja lihvitud.

Pildid, video ja failid

Hanke korraldaja: ettevõte ID63992

Pakkumised

Pakkumisi kokku: 0

Küsimused hanke korraldajale

Hanke korraldajale ei ole veel küsimusi esitatud.

Lisa küsimus

Lisa küsimus

Minu pakkumine

Reeglid

Pakkumise kirjelduse väli on mõeldud pakkumise detailsemaks lahti kirjutamiseks. Pikema teksti mugavaks sisestamiseks klikkige kasti paremal ülaservas oleval ikoonil.
Pakkumist tehes on keelatud postitada enda kontaktandmeid (nimi, telefon, aadress jne). Me jälgime ja analüüsime pakkumisi, et vältida pettuseid ja reeglite rikkumisi.
Rikkumise puhul kasutajakonto blokeeritakse.

 

Teisi töid samas valdkonnas

Valdkonnas "Põrandatööd" on 2 aktiivset tööd

Talumaja põrandate valamine/ehitus koos küttetorustiku paigaldusega

Asukoht: Raplamaa, Purila
Aega jäänud: 29p 12h
Tehtud pakkumisi: 1

Puitpõranda tasandamine seguga

Asukoht: Harjumaa, Tallinn
Aega jäänud: 3p 12h
Tehtud pakkumisi: 0

Vanemad teated:

Vaata kõiki

Sellel veebilehel kasutatakse küpsiseid. Kasutamist jätkates nõustute küpsiste kasutamisega.

Sulge
 
Minu pakkumine

Reeglid

Pakkumise kirjelduse väli on mõeldud pakkumise detailsemaks lahti kirjutamiseks. Pikema teksti mugavaks sisestamiseks klikkige kasti paremal ülaservas oleval ikoonil.
Pakkumist tehes on keelatud postitada enda kontaktandmeid (nimi, telefon, aadress jne). Me jälgime ja analüüsime pakkumisi, et vältida pettuseid ja reeglite rikkumisi.
Rikkumise puhul kasutajakonto blokeeritakse.